Nowoczesne 3-pokojowe mieszkanie z balkonem w Łostowicach Gdańsk, Łostowice, Pastelowa - 54,74m2
677 000
zł
12 367,56 zł/m2
POWIERZCHNIA
54,74 m2
PIĘTRO
4 / 5
LICZBA POKOI
3
PARKING
miejsce parkingowe
Szczegóły oferty EX946380 Data dodania: 8 dni temu
- Kategoria Mieszkania na sprzedaż
- Lokalizacja pomorskie, Gdańsk, Łostowice, Pastelowa
- Powierzchnia całkowita54,74 m2
-
Cena
677 000 zł
- Cena za m2 12 367,56 zł/m2
- Liczba pokoi 3
- Piętro 4
- Liczba pięter w budynku 5
- Typ budynkublok
- Rok budowy 2027
- Forma własności Własność
- Informacje dodatkowe:
- miejsce parkingowe, balkon
Lokalizacja
Opis oferty
Zakup bezpośrednio od dewelopera — bez prowizji i bez podatku PCC
Termin oddania: IV kwartał 2027
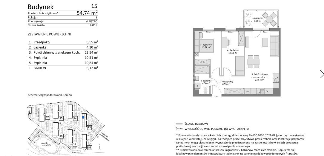
Na sprzedaż 3‑pokojowe mieszkanie o powierzchni 54,74 m², położone na 4. piętrze nowego osiedla z dużymi odstępami między budynkami, co zapewnia prywatność, ciszę i komfort codziennego życia. Mieszkanie oferuje przestronny salon z aneksem (22,54 m²) z wyjściem na balkon 6,12 m², dwie ustawne sypialnie (10,84 m² i 10,51 m²), łazienkę 4,30 m² oraz wygodny przedpokój 6,55 m². Okolica zapewnia pełną infrastrukturę i szybki dojazd do kluczowych części Gdańska — Śródmieścia, Wrzeszcza, Oliwy i obwodnicy — co sprawia, że lokal idealnie nadaje się zarówno do zamieszkania, jak i jako inwestycja.
W ofercie również inne mieszkania w tej inwestycji.
Oferujemy darmowe sprawdzenie zdolności kredytowej oraz promocyjne pakiety wykończenia pod klucz przygotowane specjalnie dla naszych klientów.
15.51
Zainteresowany? Zadzwoń teraz i umów się na spotkanie online
Numer oferty: EX946380
Termin oddania: IV kwartał 2027
Na sprzedaż 3‑pokojowe mieszkanie o powierzchni 54,74 m², położone na 4. piętrze nowego osiedla z dużymi odstępami między budynkami, co zapewnia prywatność, ciszę i komfort codziennego życia. Mieszkanie oferuje przestronny salon z aneksem (22,54 m²) z wyjściem na balkon 6,12 m², dwie ustawne sypialnie (10,84 m² i 10,51 m²), łazienkę 4,30 m² oraz wygodny przedpokój 6,55 m². Okolica zapewnia pełną infrastrukturę i szybki dojazd do kluczowych części Gdańska — Śródmieścia, Wrzeszcza, Oliwy i obwodnicy — co sprawia, że lokal idealnie nadaje się zarówno do zamieszkania, jak i jako inwestycja.
W ofercie również inne mieszkania w tej inwestycji.
Oferujemy darmowe sprawdzenie zdolności kredytowej oraz promocyjne pakiety wykończenia pod klucz przygotowane specjalnie dla naszych klientów.
15.51
Zainteresowany? Zadzwoń teraz i umów się na spotkanie online
Numer oferty: EX946380
Statystyki ogłoszenia:
Podobne nieruchomości