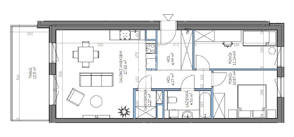
Przestronne 3-pokojowe mieszkanie na Kapuściskach, 65,58 m2 Bydgoszcz, Kapuściska, Sandomierska - 65,58m2
649 242
zł
9 900 zł/m2
POWIERZCHNIA
65,58 m2
PIĘTRO
1 / 5
LICZBA POKOI
3
PARKING
-
Szczegóły oferty 3974/14150/OMS Data dodania: 28 dni temu
- Kategoria Mieszkania na sprzedaż
- Lokalizacja kujawsko-pomorskie, Bydgoszcz, Kapuściska, Sandomierska
- Powierzchnia całkowita65,58 m2
-
Cena
649 242 zł
- Cena za m2 9 900 zł/m2
- Liczba pokoi 3
- Piętro 1
- Liczba pięter w budynku 5
- Typ budynkublok
- Rok budowy 2023
- Materiał silikat
- Kuchniaaneks kuchenny
- Informacje dodatkowe:
- winda, ogrzewanie miejskie
- Okolica:
- szkoła, przedszkole, las, park
Lokalizacja
Opis oferty
Oferta wysłana z programu dla biur nieruchomości ASARI CRM (asaricrm.com)
Numer oferty: 3974/14150/OMS
Statystyki ogłoszenia:
Podobne nieruchomości