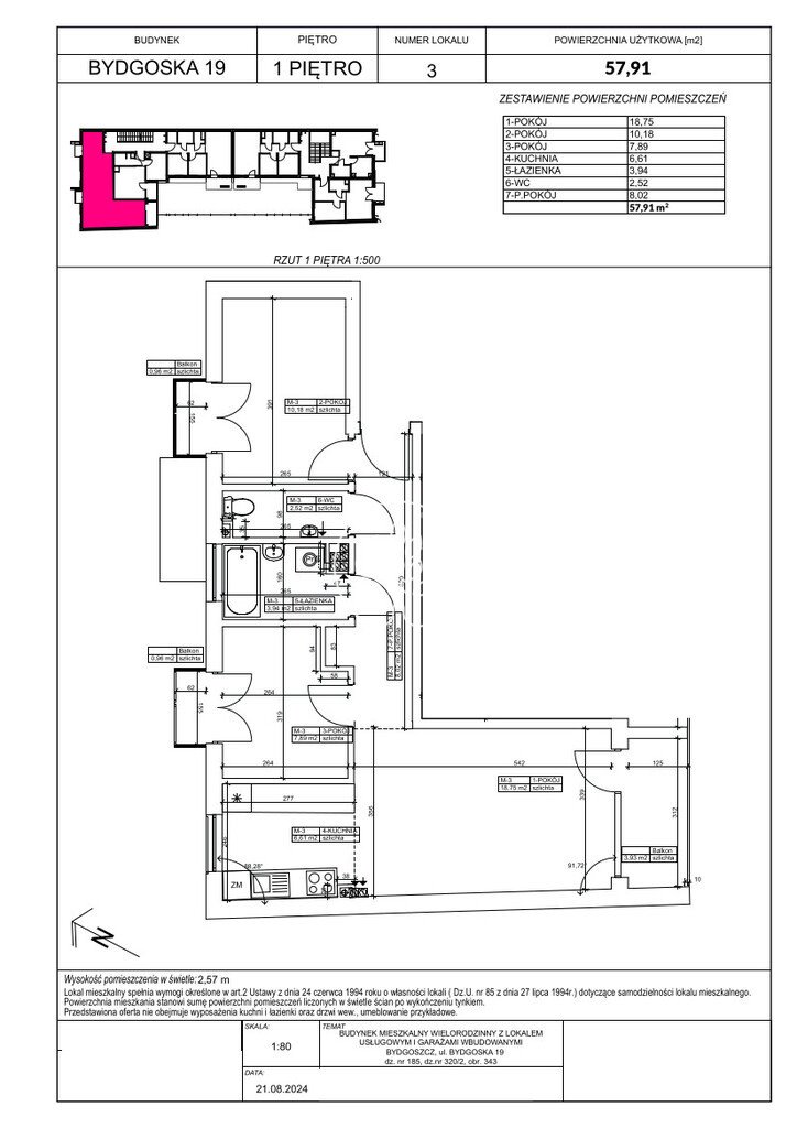
Przestronne 3-pokojowe mieszkanie w Fordonie, 57,91 m2 Bydgoszcz, Fordon, Bydgoska - 57,91m2
575 900
zł
9 944,74 zł/m2
POWIERZCHNIA
57,91 m2
PIĘTRO
1 / 2
LICZBA POKOI
3
PARKING
-
Szczegóły oferty 11851/14150/OMS Data dodania: 29 dni temu
- Kategoria Mieszkania na sprzedaż
- Lokalizacja kujawsko-pomorskie, Bydgoszcz, Fordon, Bydgoska
- Powierzchnia całkowita57,91 m2
-
Cena
575 900 zł
- Cena za m2 9 944,74 zł/m2
- Liczba pokoi 3
- Piętro 1
- Liczba pięter w budynku 2
- Typ budynkublok
- Rok budowy 2024
- Materiał inny
- Informacje dodatkowe:
- winda, ogrzewanie centralne
Lokalizacja
Opis oferty
Oferta wysłana z programu dla biur nieruchomości ASARI CRM (asaricrm.com)
Numer oferty: 11851/14150/OMS
Statystyki ogłoszenia:
Podobne nieruchomości