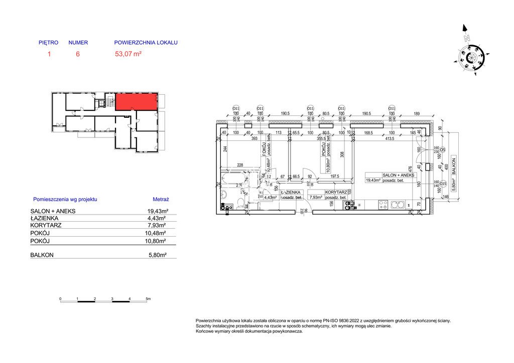
Przestronne 3-pokojowe mieszkanie na sprzedaż w Bocianowie Bydgoszcz, Bocianowo, Hetmańska - 53,07m2
578 463
zł
10 900 zł/m2
POWIERZCHNIA
53,07 m2
PIĘTRO
1 / 3
LICZBA POKOI
3
PARKING
-
Szczegóły oferty 14865/14150/OMS Data dodania: 28 dni temu
- Kategoria Mieszkania na sprzedaż
- Lokalizacja kujawsko-pomorskie, Bydgoszcz, Bocianowo, Hetmańska
- Powierzchnia całkowita53,07 m2
-
Cena
578 463 zł
- Cena za m2 10 900 zł/m2
- Liczba pokoi 3
- Piętro 1
- Liczba pięter w budynku 3
- Dostępne od31.05.2026r.
- Typ budynkublok
- Rok budowy 2026
- Materiał inny
- Informacje dodatkowe:
- winda
Lokalizacja
Opis oferty
Oferta wysłana z programu dla biur nieruchomości ASARI CRM (asaricrm.com)
Numer oferty: 14865/14150/OMS
Statystyki ogłoszenia:
Podobne nieruchomości