Dwupokojowe mieszkanie po remoncie, loggia, piwnica Warszawa, Praga-Południe, Garwolińska - 47,9m2
Oferta na wyłączność
595 000 zł 12 421,71 zł/m2POWIERZCHNIA
47,90 m2
PIĘTRO
3 / 4
LICZBA POKOI
2
PARKING
-
Szczegóły oferty 839/9046/OMS
- Kategoria Mieszkania na sprzedaż
- Lokalizacja mazowieckie, Warszawa, Praga-Południe, Garwolińska
- Powierzchnia całkowita47,90 m2
-
Cena
595 000 zł
-
Czynsz administracyjny
990 zł
- Cena za m2 12 421,71 zł/m2
- Liczba pokoi 2
- Piętro 3
- Liczba pięter w budynku 4
- Typ budynkublok
- Rok budowy 1959
- Forma własności własność
- Materiał cegła
- Kuchniaoddzielna
- Informacje dodatkowe:
- winda, ogrzewanie miejskie, piwnica
- Okolica:
- park
Lokalizacja
Opis oferty
Na sprzedaż dwupokojowe, narożne mieszkanie na Pradze-Południe, w Osiedlu Młodych.
Lokal znajduje się na trzecim piętrze w budynku z 1959 roku, wybudowanym w technologii tradycyjnej (cegła).
Mieszkanie jest funkcjonalnie rozplanowane, przearanżowane, po generalnym remoncie, doprowadzone do stanu deweloperskiego.
Budynek dobrze utrzymany, po modernizacji instalacji, z nową platformą windową.
Budynek otoczony zielenią, z okien roztacza się widok na korony drzew.
Dodatkową powierzchnię stanowi piwnica (3,9 m²) wpisana do księgi wieczystej.
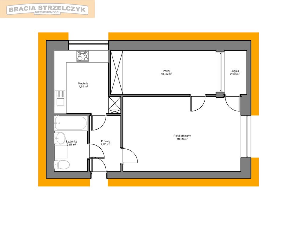
ROZKŁAD MIESZKANIA:
Możliwość aranżacji wnętrza według własnych potrzeb, lokal idealnie przygotowany do prac wykończeniowych.
LOKALIZACJA:
Mieszkanie zlokalizowane jest w sąsiedztwie niskiej zabudowy:
ASPEKTY PRAWNE:
Księga wieczysta bez obciążeń – możliwość zakupu na kredyt.
Piwnica o powierzchni 3,9 m² wpisana do KW.
Czynsz administracyjny: 990 zł.
Podatek od nieruchomości: 88 zł/rok.
Lokal wolny od zaraz, dostępny po sprzedaży.
Zapraszam do kontaktu w celu umówienia prezentacji! ------------------------------------ Właścicielem wszelkich praw, w tym praw autorskich do ogłoszenia oraz jego poszczególnych elementów jest Strzelczyk sp. z o.o. Wszelkie prawa zastrzeżone. Kopiowanie, rozpowszechnianie lub wykorzystywanie treści wykraczające poza dozwolony użytek jest zabronione. Niniejsze ogłoszenie ma jedynie charakter informacyjny i nie stanowi oferty handlowej w rozumieniu art. 66 § 1 Kodeksu cywilnego. Jeśli rozważasz sprzedaż swojej nieruchomości – skontaktuj się z nami: + 48 22pokaż telefon www.strzelczyk.pl ------------------------------------ Oferta wysłana z programu dla biur nieruchomości ASARI CRM (asaricrm.com)
Numer oferty: 839/9046/OMS
Lokal znajduje się na trzecim piętrze w budynku z 1959 roku, wybudowanym w technologii tradycyjnej (cegła).
Mieszkanie jest funkcjonalnie rozplanowane, przearanżowane, po generalnym remoncie, doprowadzone do stanu deweloperskiego.
Budynek dobrze utrzymany, po modernizacji instalacji, z nową platformą windową.
Budynek otoczony zielenią, z okien roztacza się widok na korony drzew.
Dodatkową powierzchnię stanowi piwnica (3,9 m²) wpisana do księgi wieczystej.
ROZKŁAD MIESZKANIA:
- pokój dzienny z wyjściem na loggię, doświetlony dużym oknem,
- wejście do sypialni z pokoju dziennego,
- kuchnia oddzielna, z oknem i wnęką na lodówkę,
- łazienka z miejscem na wannę,
- przedpokój.
Możliwość aranżacji wnętrza według własnych potrzeb, lokal idealnie przygotowany do prac wykończeniowych.
LOKALIZACJA:
Mieszkanie zlokalizowane jest w sąsiedztwie niskiej zabudowy:
- 100 m do przystanku autobusowego,
- 600 m do przystanku tramwajowego,
- 800 m do węzła komunikacyjnego Rondo Wiatraczna,
- 200 m do Parku J. Polińskiego.
ASPEKTY PRAWNE:
Zapraszam do kontaktu w celu umówienia prezentacji! ------------------------------------ Właścicielem wszelkich praw, w tym praw autorskich do ogłoszenia oraz jego poszczególnych elementów jest Strzelczyk sp. z o.o. Wszelkie prawa zastrzeżone. Kopiowanie, rozpowszechnianie lub wykorzystywanie treści wykraczające poza dozwolony użytek jest zabronione. Niniejsze ogłoszenie ma jedynie charakter informacyjny i nie stanowi oferty handlowej w rozumieniu art. 66 § 1 Kodeksu cywilnego. Jeśli rozważasz sprzedaż swojej nieruchomości – skontaktuj się z nami: + 48 22pokaż telefon www.strzelczyk.pl ------------------------------------ Oferta wysłana z programu dla biur nieruchomości ASARI CRM (asaricrm.com)
Numer oferty: 839/9046/OMS
Statystyki ogłoszenia:
Podobne nieruchomości