ico powierzchnia

POWIERZCHNIA

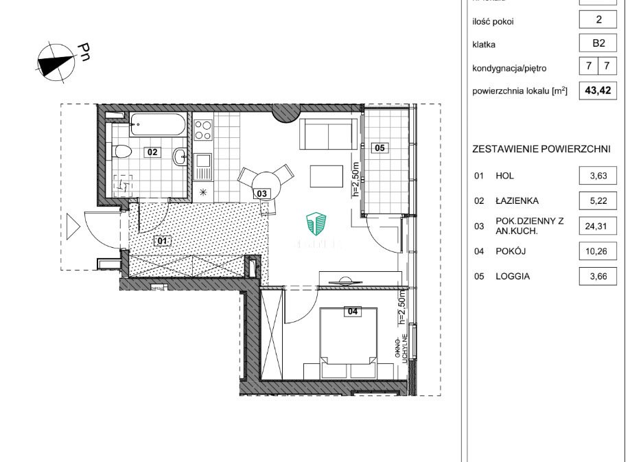
43,42 m2

ico pietro

PIĘTRO

7 / 30

ico liczba pokoi

LICZBA POKOI

2

ico parking

PARKING

-

Szczegóły oferty 179/6007/OMS Data dodania: 2 dni temu

  • Kategoria Mieszkania na sprzedaż
  • Lokalizacja zachodniopomorskie, Szczecin, Śródmieście-Centrum, al. Wyzwolenia
  • Powierzchnia całkowita43,42 m2
  • Cena

    700 000 zł

    Reklama ico Sprawdź ratę Sprawdź ratę RSSO 6,71%
    na dz. 24.11.25
    trade ico trade ico trade
  • Cena za m2 16 121,60 zł/m2
  • Liczba pokoi 2
  • Piętro 7
  • Liczba pięter w budynku 30
  • Dostępne od5.11.2025r.
  • Typ budynkuapartamentowiec
  • Rok budowy 2022
  • Forma własności własność
  • Materiał inny
  • Kuchniaaneks kuchenny
Informacje dodatkowe:
winda, ogrzewanie miejskie, balkon, ochrona, umeblowane, kablówka, internet

Lokalizacja

Szczecin, Śródmieście-Centrum, al. Wyzwolenia

Opis oferty

Obiekt Hanza Tower Apartamenty położony jest w centrum miejscowości Szczecin, znajduje się w pobliżu licznych atrakcji, takich jak Galaxy, Katedra św. Jakuba i Park Żeromskiego. Obiekt zapewnia dla mieszkańców kryty basen, jacuzzi, sauna, portier, wanny spa oraz bezpłatne WiFi.

Mieszkanie wyposażone jest w klimatyzację oraz balkon typu Loggia.

Na SPRZEDAŻ atrakcyjny apartament dwu pokojowy, znajduje się na 7 piętrze budynku apartamentowo-handlowo, biurowym Hanza Tower

Lokal w standardzie deweloperskim z widokiem na panoramę miasta od północnego wschodu.

Polecam do wydania od zaraz.

Oferta wysłana z programu dla biur nieruchomości ASARI CRM (asaricrm.com)


Numer oferty: 179/6007/OMS
Nr licencji zawodowej: 23581

Statystyki ogłoszenia:

oko

Podobne nieruchomości