Mieszkanie dwupokojowe na sprzedaż Rzeszów, Władysława Broniewskiego - 30,0m2
420 000
zł
14 000 zł/m2
POWIERZCHNIA
30,00 m2
PIĘTRO
2 / 4
LICZBA POKOI
2
PARKING
-
Szczegóły oferty 5032/14016/OMS
- Kategoria Mieszkania na sprzedaż
- Lokalizacja podkarpackie, Rzeszów, Władysława Broniewskiego
- Powierzchnia całkowita30 m2
-
Cena
420 000 zł
-
Czynsz administracyjny
430 zł
- Cena za m2 14 000 zł/m2
- Liczba pokoi 2
- Piętro 2
- Liczba pięter w budynku 4
- Typ budynkublok
- Rok budowy 1970
- Materiał wielka płyta
- Kuchniaaneks kuchenny
- Informacje dodatkowe:
- ogrzewanie miejskie, balkon, piwnica
- Okolica:
- szkoła, przedszkole
Lokalizacja
Opis oferty
ATUTY
• MIESZKANIE 2-POKOJOWE • 30 m² • SALON Z ANEKSEM KUCHENNYM • BALKON • PIWNICA • INWESTYCYJNE
Oferujemy jasne i dobrze doświetlone mieszkanie o powierzchni 30 m² zlokalizowane na osiedlu Baranówka w Rzeszowie.
Mieszkanie po generalnym remoncie – wykończone z dbałością o detale, gotowe do wprowadzenia bez żadnych dodatkowych nakładów finansowych. Wymienione wszystkie instalacje, nowoczesna kuchnia oraz łazienka, dodatkowo funkcjonalny układ pomieszczeń – idealne zarówno do zamieszkania, jak i pod inwestycję.
Lokal znajduje się na 2 piętrze w 4-piętrowym bloku.
Do mieszkania przynależy piwnica. Przy budynku dostępny jest duży parking samochodowy.
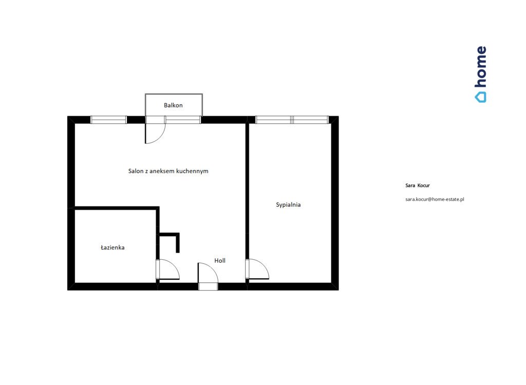
Układ pomieszczeń:
Lokalizacja:
Osiedle Baranówka to samowystarczalne osiedle, łączące kameralną zabudowę z nowoczesną infrastrukturą i dużą ilością zieleni. Z miejscami do aktywnego wypoczynku, rozbudowaną siecią usług i opinią dobrze skomunikowanego, rodzinnego zakątka Rzeszowa.
Dlaczego warto skorzystać z usług naszego biura nieruchomości?
Zapewniamy kompleksowe wsparcie na każdym etapie transakcji, dbając o bezpieczeństwo, komfort i spokój naszych Klientów. W ramach współpracy oferujemy m.in.:
Zadzwoń i umów się na prezentację!
Patrycja Wilamowicz- opiekun oferty
+48 5pokaż telefon
patrycja.wiskontaktuj się
Opis dodatkowy dołączany w eksporcie:
Oferta wysłana z programu dla biur nieruchomości ASARI CRM (asaricrm.com)
Numer oferty: 5032/14016/OMS
• MIESZKANIE 2-POKOJOWE • 30 m² • SALON Z ANEKSEM KUCHENNYM • BALKON • PIWNICA • INWESTYCYJNE
Oferujemy jasne i dobrze doświetlone mieszkanie o powierzchni 30 m² zlokalizowane na osiedlu Baranówka w Rzeszowie.
Mieszkanie po generalnym remoncie – wykończone z dbałością o detale, gotowe do wprowadzenia bez żadnych dodatkowych nakładów finansowych. Wymienione wszystkie instalacje, nowoczesna kuchnia oraz łazienka, dodatkowo funkcjonalny układ pomieszczeń – idealne zarówno do zamieszkania, jak i pod inwestycję.
Lokal znajduje się na 2 piętrze w 4-piętrowym bloku.
Do mieszkania przynależy piwnica. Przy budynku dostępny jest duży parking samochodowy.
Układ pomieszczeń:
- Salon z aneksem kuchennym z bezpośrednim wyjściem na balkon
- Sypialnia
- Łazienka
- Przedpokój
Lokalizacja:
Osiedle Baranówka to samowystarczalne osiedle, łączące kameralną zabudowę z nowoczesną infrastrukturą i dużą ilością zieleni. Z miejscami do aktywnego wypoczynku, rozbudowaną siecią usług i opinią dobrze skomunikowanego, rodzinnego zakątka Rzeszowa.
Dlaczego warto skorzystać z usług naszego biura nieruchomości?
Zapewniamy kompleksowe wsparcie na każdym etapie transakcji, dbając o bezpieczeństwo, komfort i spokój naszych Klientów. W ramach współpracy oferujemy m.in.:
- szczegółową analizę i weryfikację stanu prawnego nieruchomości,
- profesjonalne przygotowanie umowy przedwstępnej lub rezerwacyjnej,
- kompletowanie i weryfikację dokumentów niezbędnych do zawarcia aktu notarialnego,
- sprawne, bezpieczne i bezproblemowe przeprowadzenie całej transakcji,
- prawidłowe przekazanie nieruchomości, w tym przepisanie liczników oraz umów z instytucjami.
Zadzwoń i umów się na prezentację!
Patrycja Wilamowicz- opiekun oferty
+48 5pokaż telefon
patrycja.wiskontaktuj się
Opis dodatkowy dołączany w eksporcie:
Oferta wysłana z programu dla biur nieruchomości ASARI CRM (asaricrm.com)
Numer oferty: 5032/14016/OMS
Statystyki ogłoszenia:
Podobne nieruchomości