Mieszkanie dwupokojowe na sprzedaż Poznań, Wilda, ul. 28 Czerwca 1956 r. - 33,14m2
309 000
zł
9 324,08 zł/m2
POWIERZCHNIA
33,14 m2
PIĘTRO
1 / 2
LICZBA POKOI
2
PARKING
-
Szczegóły Data dodania: 21 dni temu
- Kategoria Mieszkania na sprzedaż
- Lokalizacja wielkopolskie, Poznań, Wilda, ul. 28 Czerwca 1956 r.
- Powierzchnia całkowita33,14 m2
-
Cena
309 000 zł
- Cena za m2 9 324,08 zł/m2
- Liczba pokoi 2
- Piętro 1
- Liczba pięter w budynku 2
- Typ budynkukamienica
- Materiał cegła
Lokalizacja
Opis oferty
Zachęcam do zapoznania się z ofertą sprzedaży mieszkania dwupokojowego w kamienicy, lokalizacja: Poznań, ul. 28 Czerwca 1956r./271.
Mieszkanie obecnie wynajmowane. To idealna propozycja zarówno dla inwestora, jak i dla osób poszukujących lokalu do własnego zamieszkania.
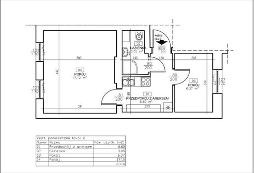
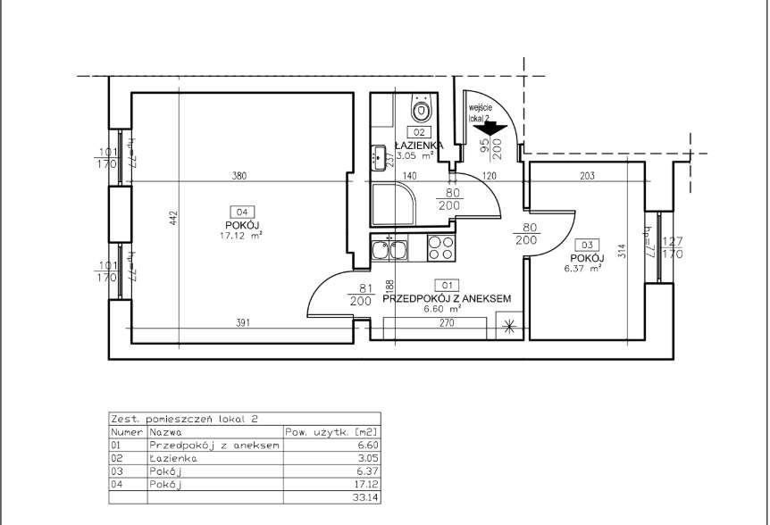
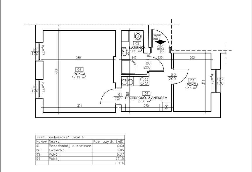
Układ mieszkania:
przedpokój z aneksem o powierzchni: 6,60 m2łazienka z WC o powierzchni: 3,05 m2pokój nr 1 o powierzchni: 17,12 m2pokój nr 2 o powierzchni: 6,37
Informacje techniczne:
Ogrzewanie: wspólna instalacja grzewcza w kamienicyBudynek murowany, oparty na zewnętrznych i wewnętrznych ścianach konstrukcyjnychŚciany nośne: cegła ceramiczna na zaprawie wapienno-piaskowejGrubość ścian: zewnętrzne 30–60 cm, wewnętrzne z cegły pełnej
Instalacje:
wodno-kanalizacyjnaelektrycznacentralnego ogrzewaniatelekomunikacyjna
Dodatkowe informacje:
Lokal sprzedawany jako pełne prawo własnościIdealne pod wynajem lub zamieszkanieSpokojna i dobrze skomunikowana okolica PoznaniaW pobliżu: sklepy, przystanki komunikacji miejskiej, szkoła i tereny rekreacyjne
Zachęcamy również do zapoznania się z pozostałymi ofertami mieszkań na sprzedaż w tej kamienicy oraz z ofertą sprzedaży całego budynku.
Zainteresowanych proszę o kontakt:
Dagmara Żak tel. 5.7.1.0.2.3.6.3.3
Statystyki ogłoszenia:
Podobne nieruchomości