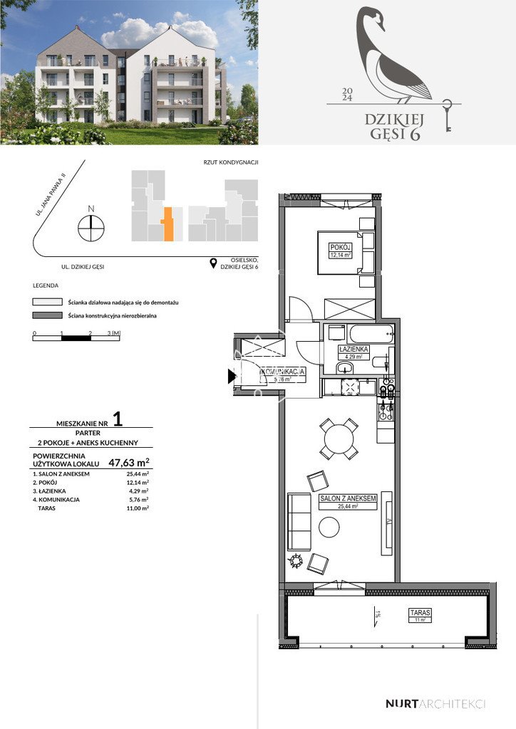
ico powierzchnia

POWIERZCHNIA

47,64 m2

ico pietro

PIĘTRO

parter / 3

ico liczba pokoi

LICZBA POKOI

2

ico parking

PARKING

miejsce parkingowe

Szczegóły oferty 12922/14150/OMS Data dodania: wczoraj

  • Kategoria Mieszkania na sprzedaż
  • Lokalizacja kujawsko-pomorskie, Osielsko, Dzikiej Gęsi
  • Powierzchnia całkowita47,64 m2
  • Cena

    452 580 zł

    Reklama ico Sprawdź ratę Sprawdź ratę RSSO 6,11% na dz. 16.03.26 trade ico trade ico trade
  • Cena za m2 9 500 zł/m2
  • Liczba pokoi 2
  • Piętro Parter
  • Liczba pięter w budynku 3
  • Dostępne od31.12.2025r.
  • Typ budynkublok
  • Rok budowy 2025
  • Materiał inny
  • Kuchniaaneks kuchenny
Informacje dodatkowe:
winda, ogrzewanie centralne, miejsce parkingowe
Okolica:
szkoła, przedszkole, las

Lokalizacja

Osielsko, Dzikiej Gęsi

Opis oferty

Oferta wysłana z programu dla biur nieruchomości ASARI CRM (asaricrm.com)


Numer oferty: 12922/14150/OMS

Statystyki ogłoszenia:

oko

Podobne nieruchomości