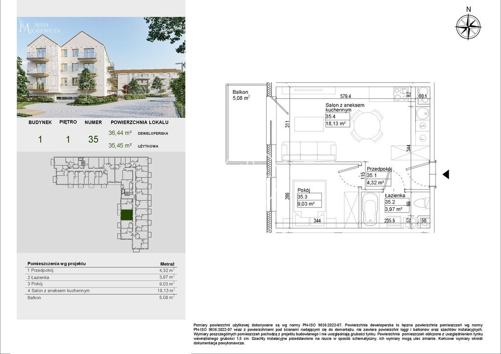
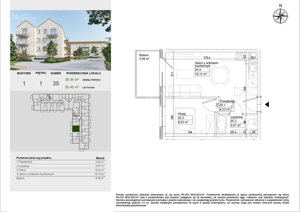
ico powierzchnia

POWIERZCHNIA

35,45 m2

ico pietro

PIĘTRO

1 / 3

ico liczba pokoi

LICZBA POKOI

2

ico parking

PARKING

-

Szczegóły oferty 15202/14150/OMS Data dodania: wczoraj

  • Kategoria Mieszkania na sprzedaż
  • Lokalizacja kujawsko-pomorskie, Osielsko, Aleja Adama Mickiewicza
  • Powierzchnia całkowita35,45 m2
  • Cena

    343 865 zł

    Reklama ico Sprawdź ratę Sprawdź ratę RSSO 6,26% na dz. 16.02.26 trade ico trade ico trade
  • Cena za m2 9 700 zł/m2
  • Liczba pokoi 2
  • Piętro 1
  • Liczba pięter w budynku 3
  • Dostępne od1.07.2027r.
  • Typ budynkublok
  • Rok budowy 2027
  • Materiał inny
Informacje dodatkowe:
winda, ogrzewanie centralne
Okolica:
przedszkole, las, park

Lokalizacja

Osielsko, Aleja Adama Mickiewicza

Opis oferty

Oferta wysłana z programu dla biur nieruchomości ASARI CRM (asaricrm.com)


Numer oferty: 15202/14150/OMS

Statystyki ogłoszenia:

oko

Podobne nieruchomości