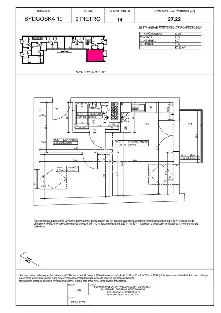
Atrakcyjne 2-pokojowe mieszkanie w Fordonie, 37,22 m2 Bydgoszcz, Fordon, Bydgoska - 37,22m2
396 900
zł
10 663,62 zł/m2
POWIERZCHNIA
37,22 m2
PIĘTRO
2 / 2
LICZBA POKOI
2
PARKING
-
Szczegóły oferty 11862/14150/OMS Data dodania: 29 dni temu
- Kategoria Mieszkania na sprzedaż
- Lokalizacja kujawsko-pomorskie, Bydgoszcz, Fordon, Bydgoska
- Powierzchnia całkowita37,22 m2
-
Cena
396 900 zł
- Cena za m2 10 663,62 zł/m2
- Liczba pokoi 2
- Piętro 2
- Liczba pięter w budynku 2
- Typ budynkublok
- Rok budowy 2024
- Materiał inny
- Informacje dodatkowe:
- winda, ogrzewanie centralne
Lokalizacja
Opis oferty
Oferta wysłana z programu dla biur nieruchomości ASARI CRM (asaricrm.com)
Numer oferty: 11862/14150/OMS
Statystyki ogłoszenia:
Podobne nieruchomości