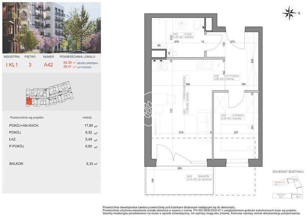
Dwupokojowe mieszkanie na sprzedaż w Bocianowie, 38,41 m2 Bydgoszcz, Bocianowo, Pomorska - 38,41m2
384 100
zł
10 000 zł/m2
POWIERZCHNIA
38,41 m2
PIĘTRO
3 / 5
LICZBA POKOI
2
PARKING
miejsce parkingowe
Szczegóły oferty 15258/14150/OMS Data dodania: dzisiaj
- Kategoria Mieszkania na sprzedaż
- Lokalizacja kujawsko-pomorskie, Bydgoszcz, Bocianowo, Pomorska
- Powierzchnia całkowita38,41 m2
-
Cena
384 100 zł
- Cena za m2 10 000 zł/m2
- Liczba pokoi 2
- Piętro 3
- Liczba pięter w budynku 5
- Dostępne od1.10.2026r.
- Typ budynkublok
- Rok budowy 2026
- Materiał inny
- Informacje dodatkowe:
- winda, ogrzewanie miejskie, miejsce parkingowe
- Okolica:
- szkoła, przedszkole, park
Lokalizacja
Opis oferty
Oferta wysłana z programu dla biur nieruchomości ASARI CRM (asaricrm.com)
Numer oferty: 15258/14150/OMS
Statystyki ogłoszenia:
Podobne nieruchomości