Przestronne 2-pokojowe mieszkanie na sprzedaż w Bocianowie Bydgoszcz, Bocianowo, Pomorska - 33,93m2
363 051
zł
10 700 zł/m2
POWIERZCHNIA
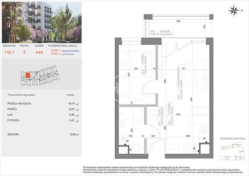
33,93 m2
PIĘTRO
3 / 5
LICZBA POKOI
2
PARKING
miejsce parkingowe
Szczegóły oferty 15260/14150/OMS Data dodania: dzisiaj
- Kategoria Mieszkania na sprzedaż
- Lokalizacja kujawsko-pomorskie, Bydgoszcz, Bocianowo, Pomorska
- Powierzchnia całkowita33,93 m2
-
Cena
363 051 zł
- Cena za m2 10 700 zł/m2
- Liczba pokoi 2
- Piętro 3
- Liczba pięter w budynku 5
- Dostępne od1.10.2026r.
- Typ budynkublok
- Rok budowy 2026
- Materiał inny
- Informacje dodatkowe:
- winda, ogrzewanie miejskie, miejsce parkingowe
- Okolica:
- szkoła, przedszkole, park
Lokalizacja
Opis oferty
Oferta wysłana z programu dla biur nieruchomości ASARI CRM (asaricrm.com)
Numer oferty: 15260/14150/OMS
Statystyki ogłoszenia:
Podobne nieruchomości