Przestronne 2-pokojowe mieszkanie na sprzedaż w Bydgoszczy Bydgoszcz, Bocianowo, Hetmańska - 35,78m2
407 892
zł
11 400 zł/m2
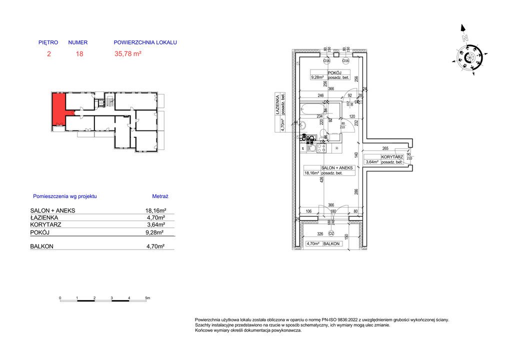
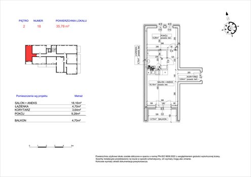
POWIERZCHNIA
35,78 m2
PIĘTRO
2 / 3
LICZBA POKOI
2
PARKING
-
Szczegóły oferty 14877/14150/OMS Data dodania: 28 dni temu
- Kategoria Mieszkania na sprzedaż
- Lokalizacja kujawsko-pomorskie, Bydgoszcz, Bocianowo, Hetmańska
- Powierzchnia całkowita35,78 m2
-
Cena
407 892 zł
- Cena za m2 11 400 zł/m2
- Liczba pokoi 2
- Piętro 2
- Liczba pięter w budynku 3
- Dostępne od31.05.2026r.
- Typ budynkublok
- Rok budowy 2026
- Materiał inny
- Informacje dodatkowe:
- winda
Lokalizacja
Opis oferty
Oferta wysłana z programu dla biur nieruchomości ASARI CRM (asaricrm.com)
Numer oferty: 14877/14150/OMS
Statystyki ogłoszenia:
Podobne nieruchomości