Urokliwe 4-pokojowe mieszkanie na poddaszu, wymaga remontu Olsztyn - 105,8m2
POWIERZCHNIA
105,80 m2
PIĘTRO
-
LICZBA POKOI
4
PARKING
-
Szczegóły oferty NET-MS-1899 Data dodania: wczoraj
- Kategoria Mieszkania na sprzedaż
- Lokalizacja warmińsko-mazurskie, Olsztyn
- Powierzchnia całkowita105,80 m2
-
Cena
640 000 zł
- Cena za m2 6 049,15 zł/m2
- Liczba pokoi 4
- Liczba pięter w budynku 4
- Typ budynkukamienica
- Materiał inny
- Informacje dodatkowe:
- umeblowane
Lokalizacja
Opis oferty
Prezydent Olsztyna ogłasza przetarg ustny nieograniczony na sprzedaż lokalu mieszkalnego stanowiącego własność Gminy Olsztyn.
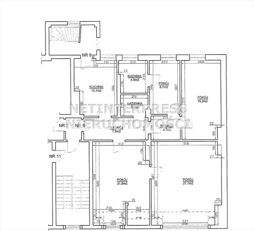
1. Przedmiotem sprzedaży jest lokal nr 8 położony na poddaszu 4-kondygnacyjnego budynku nr 69 zlokalizowanego przy ul. Partyzantów w Olsztynie, z jednoczesną sprzedażą 103/1000 części wspólnych budynku oraz gruntu pod budynkiem objętym księgą wieczystą nr OL1O/000pokaż telefon (obr.72, dz. nr 245 o powierzchni 303 m²) wraz ze sprzedażą udziału wynoszącego 103/1000 cz. w prawie własności gruntu, przeznaczonego do racjonalnej obsługi budynku, składającego się z działek o nr ewidencyjnym 246/1 i 6/8 obr. 72 o łącznej powierzchni 123 m². Nieruchomość ta objęta jest księgą wieczystą nr OL1O/000pokaż telefon.
Powierzchnia użytkowa lokalu wynosi 105,8 m². W skład lokalu wchodzą: cztery pokoje, dwie kuchnie, łazienka oraz dwa przedpokoje. Lokal wymaga remontu.
Budynek nr 69 przy ul. Partyzantów w obrębie działki nr 245 wpisany jest do rejestru zabytków woj. warmińsko-mazurskiego i podlega ochronie konserwatorskiej. Wszelkie prace w budynku należy wykonywać zgodnie z zapisem ustawy z dnia 23.07.2003r. o ochronie zabytków i opiece nad zabytkami (t.j. Dz.U. z 2024 r. poz. 1292) po uzyskaniu zezwolenia Wojewódzkiego Konserwatora Zabytków.
W myśl art. 3 ust 4 pkt 1 ustawy z dn. 29.08.2014 o charakterystyce energetycznej budynków (t. j. Dz. U. z 2024 poz. 101) przy sprzedaży budynku wpisanego do rejestru zabytków nie występuje obowiązek sporządzenia i przekazania nabywcy świadectwa charakterystyki energetycznej.
Nieruchomość wolna jest od obciążeń oraz nie jest przedmiotem zobowiązań.
2 . Cenę wywoławczą nieruchomości ustalono na kwotę 640 000,00 zł, w tym:
· cena lokalu: 601 600,00 zł,
· cena gruntu: 38 400,00 , w tym:
· cena gruntu pod budynkiem, działka nr 245: 27 313,00 zł,
· cena gruntu do obsługi budynku, działki nr 246/1 i 6/8: 11 087,00 zł,
Sprzedaż lokalu, znajdującego się w przedmiotowym budynku jest zwolniona z podatku VAT zgodnie z art. 43 ust. 1 pkt 10 oraz art. 29a ust. 8 ustawy z dnia 11 marca 2004 r. o podatku od towarów i usług (t.j. Dz.U. 2025 r. poz. 775 ze zm.).
Na podstawie art. 68 ust. 3 ustawy z dnia 21 sierpnia 1997r. o gospodarce nieruchomościami /Dz.U. z 2024 r. poz. 1145 ze zm./ wylicytowaną cenę lokalu oraz cenę udziału w gruncie pod budynkiem, na wniosek nabywcy, obniża się o 50%.
Cena nieruchomości ustalona w przetargu podlega zapłacie nie później niż na dwa dni przed zawarciem umowy przenoszącej własność.
Koszty sporządzenia umowy notarialnej oraz opłaty sądowe związane z dokonaniem wpisów w księdze wieczystej ponosi nabywca.
3. Przetarg odbędzie się 17 kwietnia 2026 r. o godz. 11:30 w siedzibie Urzędu Miasta Olsztyna pl. Jana Pawła II 1, w sali 219, II piętro.
Wadium w wysokości 64 000,00 zł należy wpłacić na rachunek Urzędu Miasta Olsztyna prowadzony przez Bank Handlowy S.A. nr rachunku: 77 1030 15pokaż telefon najpóźniej do dnia 13 kwietnia 2026 r.
Wpłacone wadium winno znajdować się na rachunku Urzędu Miasta Olsztyna najpóźniej w dniu 13 kwietnia 2026 r.
Wadium wpłacone przez uczestnika przetargu, który przetarg wygrał, zostanie zaliczone na poczet ceny nabycia nieruchomości.
Pozostałym uczestnikom przetargu, wadium zostanie zwrócone nie później niż przed upływem 3 dni, od dnia rozstrzygnięcia przetargu, na podane konto bankowe.
4. Informacje dodatkowe.
Uczestnicy przetargu zobowiązani są posiadać dokumenty tożsamości. Podmioty inne niż osoby fizyczne dodatkowo muszą przedłożyć do wglądu aktualny wypis z odpowiedniego rejestru.
Jeżeli uczestnik jest reprezentowany przez pełnomocnika, konieczne jest przedłożenie oryginału pełnomocnictwa upoważniającego do działania na każdym etapie postępowania przetargowego z potwierdzeniem wniesienia opłaty skarbowej z tytułu pełnomocnictwa, jeżeli wniesienie takiej opłaty wynika z przepisów ustawy z dnia 16.11.2006 r. o opłacie skarbowej (t. j. Dz. U. z 2025 r. poz. 1154 ze zm.).
W przypadku zamiaru nabycia nieruchomości w ramach wspólności ustawowej małżeńskiej, wadium winno być wpłacone w imieniu obojga współmałżonków. Do przetargu winni przystąpić oboje małżonkowie, chyba że zostanie przedłożona pisemna zgoda wyrażona przez nieobecnego małżonka do uczestnictwa w przetargu w jego imieniu oraz składania oświadczeń zmierzających do odpłatnego nabycia nieruchomości.
Uchylenie się nabywcy wyłonionego w drodze przetargu od podpisania aktu notarialnego w terminie wyznaczonym przez Prezydenta Olsztyna spowoduje przepadek wpłaconego wadium.
W przypadku, gdy nabywcą nieruchomości ustalony zostanie cudzoziemiec, w rozumieniu ustawy z dnia 24.03.1920 r. o nabywaniu nieruchomości przez cudzoziemców ( t. j. Dz. U. z 2017 r. poz. 2278) , do zawarcia umowy notarialnej nabywca winien przedłożyć zezwolenie, jeżeli uzyskanie zezwolenia wynika z przepisów cytowanej wyżej ustawy.
Prezydent Olsztyna zastrzega sobie prawo do odwołania przetargu.
Szczegółowych informacji udziela Wydział Polityki Lokalowej Urzędu Miasta Olsztyna, budynek przy ul. Wyzwolenia 30, pokój 303, tel. (89)pokaż telefon.
Osoby zainteresowane nabyciem przedmiotowego lokalu mogą go oglądać w terminie ustalonym z administratorem/pracownikiem Zakładu Lokali i Budynków Komunalnych, tel. (89)pokaż telefon
Ogłoszenia o przetargach organizowanych przez Prezydenta Olsztyna dostępne są na stronach internetowych www.olsztyn.eu, www.infopublikator.pl oraz w Biuletynie Informacji Publicznej, prowadzonym przez Urząd Miasta Olsztyna pod adresem bip.olsztyn.eu oraz na Elektronicznej Tablicy Ogłoszeń Urzędu Miasta Olsztyna.
Oferta wysłana z systemu Galactica Virgo
Numer oferty: NET-MS-1899
Statystyki ogłoszenia:
Podobne nieruchomości