Mieszkanie czteropokojowe na sprzedaż
Lublin, Czuby,
Kaczeńcowa
1 573 600 PLN
14 000 zł/m2
Opis
Chciałbym Państwu zaoferować super APARTAMENT w bardzo atrakcyjnej lokalizacji.
Lublin CZUBY ul: Kaczeńcowa.
Stan deweloperski, odbiór IIIQ 2026r
APARTAMENT:
*PRESTIŻ, LUKSUS I WYGODA*
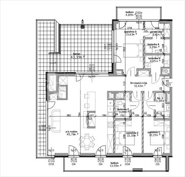
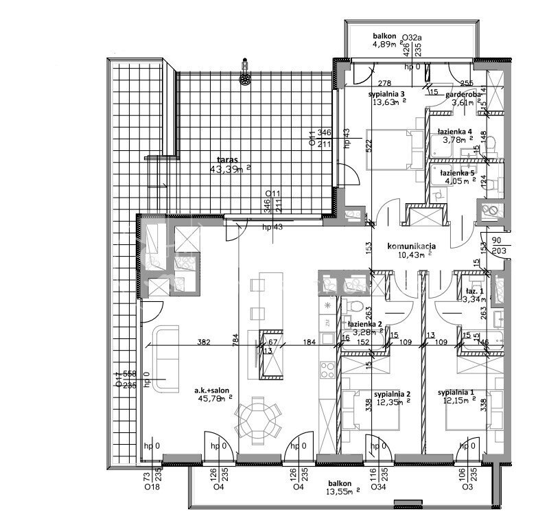
-112m2 z tarasem 43m2 plus dwa balkony 4,89 i 13,55m2
Mieszkanie rozkładowe z wystawą okienną na trzy strony świata(wschód, południe i zachód) w skład którego wchodzi :
-salon z aneksem 45,78m2 z wyjściem na taras i duży balkon
- sypialnia główna 13,63m2 z przynależną do niej garderobą 3,61m2 i łazienką 3,78m2 oraz z prywatnym balkonem
- sypialnia 12,35m2 z łazienką lub garderobą i wejściem na duży balkon który usytuowany jest na wschód
- sypialnia 12,15m2 z łazienką lub garderobą i wejściem na duży balkon który usytuowany jest na wschód
- łazienka 4,05m2
-komunikacja 10,43m2
Atuty:
- PRESTIŻ
- doskonała lokalizacja
- nieruchomości znajduje się na 4 piętrze w budynku 5 piętrowym
- stan deweloperski
* będą Państwo mieli możliwość wykończenia mieszkania pod siebie!!!
* mieszkanie zaprojektowane z myślą aby spełnić wszystkie oczekiwania klienta
- wystawa okienna na wschód, południe i zachód
- funkcjonalność
LOKALIZACJA
Inwestycja usytuowana w bardzo atrakcyjnej lokalizacji, wśród licznej zieleni w samym sercu osiedla z lat 90tych.
Bogata infrastruktura, szybki dojazd do centrum jak również na wylotówkę z miasta.
w okolicy znajdują się :
- liczne sklepy, Biedronka, Stokrotka, Lidl, centrum handlowe Orkana
- piekarnia Orlikowski po sąsiedzku
- liczne restauracje jak Stół i Wół w okolicy
- Spa Orkana
- Luxmed
- szpital 500m
- szkoła podstawowa
- przedszkole
- kościół
- klub osiedlowy
- liczne tereny zielone, do Rezerwatu Stary Gaj 700m2
- ścieżka rowerowa prowadząca nad sam zalew
- skatepark
- boiska do gry w piłkę
- place zabaw
FINANSE:
- mieszkanie 1 573 600zł
- miejsce parkingowe w garażu podziemnym 50 000zł
- komórka lokatorska 4000zł za m2
KUPUJĄCY:
- JEST ZWOLNIONY Z PODATKU 2% PCC !!!
- NIE PŁACI ŻADNEJ PROWIZJI !!!
POSIADAMY W SPRZDAŻY MIESZKANIA OD:
- 25m2 do 112m2
- z ogródkami i tarasami
SKONTAKTUJ SIĘ ZE MNĄ PO WIĘCEJ !!!!
Zapraszamy także do naszego oddziału w Lublinie znajdującego się przy ulicy Juliusza Ligonia 1
Grzegorz Woźniak
Doradca ds. nieruchomości
+48 668 479 499
grzegorz.wozniak@rewersnieruchomosci.pl
REWERS Nieruchomości
Ul: Juliusza Ligonia 1
20-805 Lublin
Rewers Nieruchomości
Biuro 789 563 579
biuro@rewersnieruchomosci.p Oferta wysłana z programu dla biur nieruchomości ASARI CRM (asaricrm.com)
Więcej
Chciałbym Państwu zaoferować super APARTAMENT w bardzo atrakcyjnej lokalizacji.
Lublin CZUBY ul: Kaczeńcowa.
Stan deweloperski, odbiór IIIQ 2026r
APARTAMENT:
*PRESTIŻ, LUKSUS I WYGODA*
-112m2 z tarasem 43m2 plus dwa balkony 4,89 i 13,55m2
Mieszkanie rozkładowe z wystawą okienną na trzy strony świata(wschód, południe i zachód) w skład którego wchodzi :
-salon z aneksem 45,78m2 z wyjściem na taras i duży balkon
- sypialnia główna 13,63m2 z przynależną do niej garderobą 3,61m2 i łazienką 3,78m2 oraz z prywatnym balkonem
- sypialnia 12,35m2 z łazienką lub garderobą i wejściem na duży balkon który usytuowany jest na wschód
- sypialnia 12,15m2 z łazienką lub garderobą i wejściem na duży balkon który usytuowany jest na wschód
- łazienka 4,05m2
-komunikacja 10,43m2
Atuty:
- PRESTIŻ
- doskonała lokalizacja
- nieruchomości znajduje się na 4 piętrze w budynku 5 piętrowym
- stan deweloperski
* będą Państwo mieli możliwość wykończenia mieszkania pod siebie!!!
* mieszkanie zaprojektowane z myślą aby spełnić wszystkie oczekiwania klienta
- wystawa okienna na wschód, południe i zachód
- funkcjonalność
LOKALIZACJA
Inwestycja usytuowana w bardzo atrakcyjnej lokalizacji, wśród licznej zieleni w samym sercu osiedla z lat 90tych.
Bogata infrastruktura, szybki dojazd do centrum jak również na wylotówkę z miasta.
w okolicy znajdują się :
- liczne sklepy, Biedronka, Stokrotka, Lidl, centrum handlowe Orkana
- piekarnia Orlikowski po sąsiedzku
- liczne restauracje jak Stół i Wół w okolicy
- Spa Orkana
- Luxmed
- szpital 500m
- szkoła podstawowa
- przedszkole
- kościół
- klub osiedlowy
- liczne tereny zielone, do Rezerwatu Stary Gaj 700m2
- ścieżka rowerowa prowadząca nad sam zalew
- skatepark
- boiska do gry w piłkę
- place zabaw
FINANSE:
- mieszkanie 1 573 600zł
- miejsce parkingowe w garażu podziemnym 50 000zł
- komórka lokatorska 4000zł za m2
KUPUJĄCY:
- JEST ZWOLNIONY Z PODATKU 2% PCC !!!
- NIE PŁACI ŻADNEJ PROWIZJI !!!
POSIADAMY W SPRZDAŻY MIESZKANIA OD:
- 25m2 do 112m2
- z ogródkami i tarasami
SKONTAKTUJ SIĘ ZE MNĄ PO WIĘCEJ !!!!
Zapraszamy także do naszego oddziału w Lublinie znajdującego się przy ulicy Juliusza Ligonia 1
Grzegorz Woźniak
Doradca ds. nieruchomości
+48 668 479 499
grzegorz.wozniak@rewersnieruchomosci.pl
REWERS Nieruchomości
Ul: Juliusza Ligonia 1
20-805 Lublin
Rewers Nieruchomości
Biuro 789 563 579
biuro@rewersnieruchomosci.p Oferta wysłana z programu dla biur nieruchomości ASARI CRM (asaricrm.com)
- Mieszkanie:
- na sprzedaż
- Liczba pokoi:
- 4
- Powierzchnia całkowita:
- 112,40 m2
- Lokalizacja:
- województwo: lubelskie powiat: Lublin gmina: Lublin miejscowość: Lublin dzielnica: Czuby ulica: Kaczeńcowa