Przestronne 4-pokojowe mieszkanie z tarasem i garażem Gdynia, Dąbrowa, Sojowa - 84,8m2
Oferta na wyłączność
900 000 zł 10 613,21 zł/m2POWIERZCHNIA
84,80 m2
PIĘTRO
2 / 4
LICZBA POKOI
4
PARKING
miejsce parkingowe
Szczegóły oferty 3M897930 Data dodania: wczoraj
- Kategoria Mieszkania na sprzedaż
- Lokalizacja pomorskie, Gdynia, Dąbrowa, Sojowa
- Powierzchnia całkowita84,80 m2
-
Cena
900 000 zł
- Cena za m2 10 613,21 zł/m2
- Liczba pokoi 4
- Piętro 2
- Liczba pięter w budynku 4
- Typ budynkuinny
- Rok budowy 2000
- Forma własności Własność
- Informacje dodatkowe:
- miejsce parkingowe
Lokalizacja
Opis oferty
Zdjęcia w przygotowaniu.
Komfortowe 4‑pokojowe mieszkanie 84,80 m² z tarasem i miejscem w hali garażowej | Gdynia
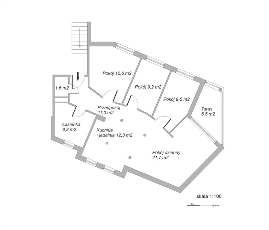
Przedmiotem sprzedaży jest przestronne, funkcjonalne mieszkanie o powierzchni 84,80 m², położone na 2. piętrze kameralnego budynku z 2000 roku. Lokal wyróżnia się świetnym układem, dużą ilością naturalnego światła oraz spokojnym otoczeniem pełnym zieleni.
Układ pomieszczeń
- Salon - 21 m²
- Kuchnia z jadalnią - 12 m²
- Trzy niezależne pokoje - 12,6 m² | 9,2 m² | 9,5 m²
- Łazienka z oknem - 8,3 m² (wanna + prysznic)
- Garderoba - 1,6 m²
- Przedpokój - 11 m²
- Taras - 8,5 m²
- Między dwoma pokojami - dwustronna szafa w zabudowie
Mieszkanie jest dwustronne, o bardzo korzystnej ekspozycji:
- sypialnie: południowy zachód,
- taras: zachód,
- kuchnia i łazienka: północny wschód.
Standard wykończenia
- Kuchnia umeblowana, wyposażona w piekarnik, płytę grzewczą i pochłaniacz, w zabudowie zmywarka
- Fronty mebli po renowacji,
- Na podłogach panele i kafle
- Łazienka z oknem, wanną i prysznicem
- Ściany gładkie, malowane
- Okna PCV
- Za oknami dużo zieleni, co zapewnia prywatność i przyjemny widok
Mieszkanie gotowe do zamieszkania.
Dodatkowe udogodnienia
- Miejsce postojowe w hali garażowej - dodatkowo płatne 50 000 zł (obligatoryjnie)
- Komórka lokatorska 2,8 m² - tuż obok miejsca parkingowego
Lokalizacja
Budynek położony jest w miejscu zapewniającym:
- szybki dojazd do Obwodnicy Trójmiasta,
- wygodne połączenia z centrum Gdyni (autobusy, trolejbusy),
- w pobliżu: szkoła, przedszkole, poczta, sklepy, punkty usługowe, supermarkety.
Okolica jest spokojna, zielona i przyjazna rodzinom.
Dlaczego warto
- duży metraż i świetny układ
- taras z zachodnią ekspozycją
- łazienka z oknem
- miejsce w hali garażowej + komórka
- zielone otoczenie
- szybki dostęp do komunikacji i obwodnicy
Zapraszam na prezentację — to mieszkanie naprawdę warto zobaczyć na żywo.
Numer oferty: 3M897930
Komfortowe 4‑pokojowe mieszkanie 84,80 m² z tarasem i miejscem w hali garażowej | Gdynia
Przedmiotem sprzedaży jest przestronne, funkcjonalne mieszkanie o powierzchni 84,80 m², położone na 2. piętrze kameralnego budynku z 2000 roku. Lokal wyróżnia się świetnym układem, dużą ilością naturalnego światła oraz spokojnym otoczeniem pełnym zieleni.
Układ pomieszczeń
- Salon - 21 m²
- Kuchnia z jadalnią - 12 m²
- Trzy niezależne pokoje - 12,6 m² | 9,2 m² | 9,5 m²
- Łazienka z oknem - 8,3 m² (wanna + prysznic)
- Garderoba - 1,6 m²
- Przedpokój - 11 m²
- Taras - 8,5 m²
- Między dwoma pokojami - dwustronna szafa w zabudowie
Mieszkanie jest dwustronne, o bardzo korzystnej ekspozycji:
- sypialnie: południowy zachód,
- taras: zachód,
- kuchnia i łazienka: północny wschód.
Standard wykończenia
- Kuchnia umeblowana, wyposażona w piekarnik, płytę grzewczą i pochłaniacz, w zabudowie zmywarka
- Fronty mebli po renowacji,
- Na podłogach panele i kafle
- Łazienka z oknem, wanną i prysznicem
- Ściany gładkie, malowane
- Okna PCV
- Za oknami dużo zieleni, co zapewnia prywatność i przyjemny widok
Mieszkanie gotowe do zamieszkania.
Dodatkowe udogodnienia
- Miejsce postojowe w hali garażowej - dodatkowo płatne 50 000 zł (obligatoryjnie)
- Komórka lokatorska 2,8 m² - tuż obok miejsca parkingowego
Lokalizacja
Budynek położony jest w miejscu zapewniającym:
- szybki dojazd do Obwodnicy Trójmiasta,
- wygodne połączenia z centrum Gdyni (autobusy, trolejbusy),
- w pobliżu: szkoła, przedszkole, poczta, sklepy, punkty usługowe, supermarkety.
Okolica jest spokojna, zielona i przyjazna rodzinom.
Dlaczego warto
- duży metraż i świetny układ
- taras z zachodnią ekspozycją
- łazienka z oknem
- miejsce w hali garażowej + komórka
- zielone otoczenie
- szybki dostęp do komunikacji i obwodnicy
Zapraszam na prezentację — to mieszkanie naprawdę warto zobaczyć na żywo.
Numer oferty: 3M897930
Statystyki ogłoszenia:
Podobne nieruchomości