Nowoczesny apartament 4 pokoi z balkonem i widokiem na zieleń Gdańsk, Zaspa, Leszczyńskich - 100,92m2
2 300 976
zł
22 800 zł/m2
POWIERZCHNIA
100,92 m2
PIĘTRO
4 / 5
LICZBA POKOI
4
PARKING
miejsce parkingowe
Szczegóły oferty 542556 Data dodania: dzisiaj
- Kategoria Mieszkania na sprzedaż
- Lokalizacja pomorskie, Gdańsk, Zaspa, Leszczyńskich
- Powierzchnia całkowita100,92 m2
-
Cena
2 300 976 zł
- Cena za m2 22 800 zł/m2
- Liczba pokoi 4
- Piętro 4
- Liczba pięter w budynku 5
- Typ budynkublok
- Rok budowy 2026
- Forma własności Własność
- Informacje dodatkowe:
- miejsce parkingowe, balkon
- Okolica:
- park
Lokalizacja
Opis oferty
Nowoczesne apartamenty z widokiem na zieleń, w doskonale skomunikowanej części Gdańska, wykończone w wysokim standardzie.
Zakup od dewelopera, bez 2% podatku PCC i prowizji.
Atuty inwestycji:
- Elegancka architektura pięciopiętrowych budynków i wysoki standard części wspólnych z dwupoziomowym klimatyzowanym lobby.
- Inteligentny system zarządzania oświetleniem, urządzeniami elektronicznymi i bezpieczeństwem w mieszkaniu.
- Wyjątkowa lokalizacja w sercu Gdańska przy Parku Millenium z doskonałym dostępem do komunikacji i usług miejskich.
- Komfort na co dzień zapewniają prywatna strefa fitness oraz zielone patio do wypoczynku.
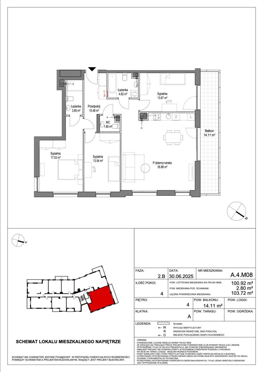
Układ mieszkania:
- pokój dzienny z aneksem kuchennym,
- 3 sypialnie,
- 2 łazienki,
- toaleta,
- przedpokój,
- balkon 14,11 m2.
Dodatkowe informacje:
Lokal sprzedawany jest wraz z komórką lokatorską oraz miejscem postojowym.
Piętro: 5/5
Liczba pokoi: 4
Termin realizacji inwestycji: 4Q2026
W razie jakichkolwiek pytań zachęcamy do kontaktu pod podany niżej numer.
Serdecznie zapraszamy na prezentacje inwestycji!
Osoba do kontaktu: Dawid Dragan
Tel. +48 7pokaż telefon
Powyższa oferta ma charakter informacyjny i nie stanowi oferty handlowej w rozumieniu art. 66 §1 Kodeksu Cywilnego.
Numer oferty: 542556
Zakup od dewelopera, bez 2% podatku PCC i prowizji.
Atuty inwestycji:
- Elegancka architektura pięciopiętrowych budynków i wysoki standard części wspólnych z dwupoziomowym klimatyzowanym lobby.
- Inteligentny system zarządzania oświetleniem, urządzeniami elektronicznymi i bezpieczeństwem w mieszkaniu.
- Wyjątkowa lokalizacja w sercu Gdańska przy Parku Millenium z doskonałym dostępem do komunikacji i usług miejskich.
- Komfort na co dzień zapewniają prywatna strefa fitness oraz zielone patio do wypoczynku.
Układ mieszkania:
- pokój dzienny z aneksem kuchennym,
- 3 sypialnie,
- 2 łazienki,
- toaleta,
- przedpokój,
- balkon 14,11 m2.
Dodatkowe informacje:
Lokal sprzedawany jest wraz z komórką lokatorską oraz miejscem postojowym.
Piętro: 5/5
Liczba pokoi: 4
Termin realizacji inwestycji: 4Q2026
W razie jakichkolwiek pytań zachęcamy do kontaktu pod podany niżej numer.
Serdecznie zapraszamy na prezentacje inwestycji!
Osoba do kontaktu: Dawid Dragan
Tel. +48 7pokaż telefon
Powyższa oferta ma charakter informacyjny i nie stanowi oferty handlowej w rozumieniu art. 66 §1 Kodeksu Cywilnego.
Numer oferty: 542556
Statystyki ogłoszenia:
Podobne nieruchomości