Obiekt usługowy 2422 m2 z biurami i magazynem w Zawadach Białystok, Zawady - 2422,0m2
Oferta na wyłączność
12 000 000 zł 4 954,58 zł/m2POWIERZCHNIA
2422,00 m2
PRZEZNACZENIE
-
PIĘTRO
-
Szczegóły oferty ESC-BS-827 Data dodania: 2 dni temu
- Kategoria Lokale użytkowe na sprzedaż
- Lokalizacja podlaskie, Białystok, Zawady
- Powierzchnia całkowita2 422 m2
-
Cena
12 000 000 zł
- Cena za m2 4 954,58 zł/m2
- Forma własności Współwłasność
- Informacje dodatkowe:
- klimatyzacja, ogrzewanie
Lokalizacja
Opis oferty
Obiekt usługowy w północnej części Białegostoku.
Do sprzedaży nieruchomość zabudowana budynkiem usługowym o łącznej powierzchni 2422 m2. Obiekt został wzniesiony na działce o powierzchni 7087 m2.
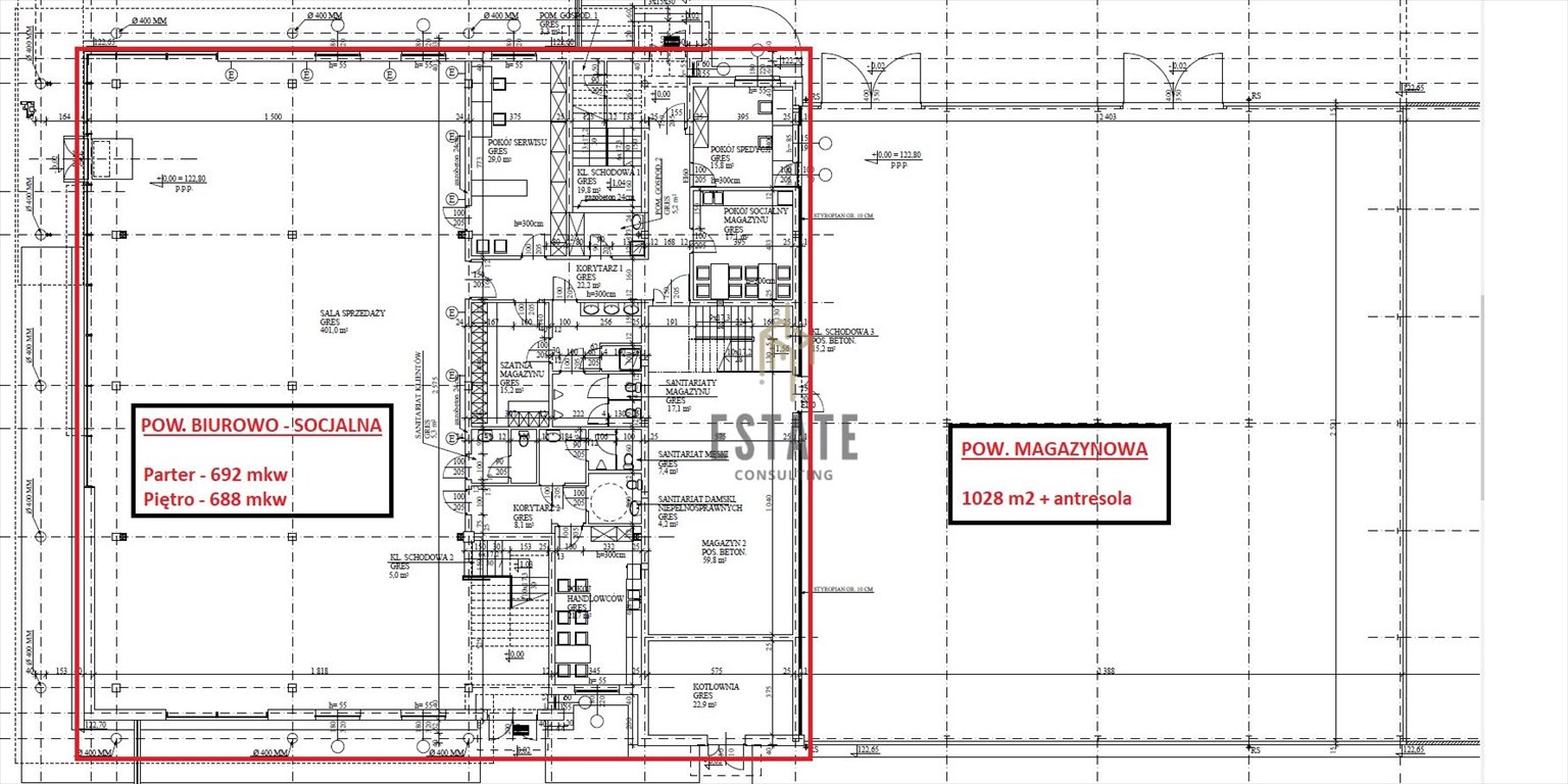
Część biurowa - dwukondygnacyjna, murowana z dużymi przeszkleniami fasadowymi. Powierzchnia parteru - 692m2, powierzchnia piętra - 688 m2. Wnętrze klimatyzowane i wentylowane z odzyskiem ciepła (rekuperacja).
Część magazynowa o konstrukcji stalowej z poszyciem z płyty warstwowej wypełnionej styropianem. Powierzchnia 1028 m2 + antresola (około 500m2).. Wysokość od 7,5 m do 8,3 m.
LOKALIZACJA: północna część Białegostoku w sąsiedztwie parku handlowego oraz zabudowy usługowej, z dogodnym połączeniem komunikacyjnym do Trasy Generalskiej;
FUNKCJA: handlowo-usługowa połączona z magazynem wysokiego składowania. Na parterze przewidziano część ekspozycyjną wraz z działem handlowym i częścią socjalną oraz magazyn wysokiego składowania z dobudowaną antresolą o nośności 500kg/m2. Piętro użytkowane jest na cele biurowe.
Cena 12.000.000 zł netto.
Polecamy.
::DODATKOWE INFORMACJE
Prąd: jest
Gaz: jest
Woda: jest
Dojazd: ASFALTOWA
Otoczenie: działki zabudowane
Ogrzewanie: C.O. GAZOWE
Kanalizacja: tak
Komunikacja publ.: autobus miejski
Odległość do komunikacji publicznej [m]: 200
Winda: NIE
Przystosowania dla niepełnosprawnych: TAK
Klimatyzacja: TAK
Sieć komputerowa: TAK
Możliwość parkowania: tak
Własny parking: TAK
Naziemn. miejsc parking.: 50
Wejście: od ulicy
Liczba wejść: 2
Położenie obiektu: na obrzeżach miasta
Kategoria biurowca: A
Opłaty wg liczników: woda, prąd, gaz
Rok budowy: 2013
Ostatnia modernizacja: 2017
Liczba kondyg. biurowych: 2
Liczba pomieszczeń magazynowych: 1
Powierzchnia pomieszczeń magazynowych [m2]: 1028
Liczba pomieszczeń socjalnych: 1
::LINK DO STRONY
http://www.estateconsulting.pl/oferta.aspx?id=6711635
::KONTAKT DO AGENTA
Danuta Sadowska
600pokaż telefon
sadowska@skontaktuj się
::DANE BIURA
Estate Consulting
Ogrodowa 4/U7
15-011 Białystok
600pokaż telefon
www.estateconsulting.pl
Pośrednik odpowiedzialny zawodowo za wykonanie umowy pośrednictwa: Danuta Sadowska (licencja nr: 6924)
Oferta wysłana z systemu Galactica Virgo
Numer oferty: ESC-BS-827
Nr licencji zawodowej: 6924
Statystyki ogłoszenia: