Kawalerka na sprzedaż Trzebieszowice - 40,66m2
50 000
zł
1 229,71 zł/m2
POWIERZCHNIA
40,66 m2
PIĘTRO
-
LICZBA POKOI
1
PARKING
-
Szczegóły oferty 12226/3186/OMS Data dodania: dzisiaj
- Kategoria Mieszkania na sprzedaż
- Lokalizacja dolnośląskie, Trzebieszowice
- Powierzchnia całkowita40,66 m2
-
Cena
50 000 zł
- Cena za m2 1 229,71 zł/m2
- Liczba pokoi 1
- Materiał inny
Lokalizacja
Opis oferty
W lewym górnym rogu dokumentu
pieczęć podłużna Burmistrz Lądka-Zdroju
Ogłoszenie Nr IF.6840.40.3.2025.403 Burmistrza Lądka-Zdroju z dnia 3 kwietnia 2026 r.
o II przetargu ustnym nieograniczonym na sprzedaż lokalu mieszkalnego nr 9 położonego w budynku w miejscowości Trzebieszowice nr 42
wraz z udziałem w częściach wspólnych budynku i gruntu
Burmistrz Lądka-Zdroju działając na podstawie art. 38 ust. 1 i 2 ustawy z dnia 21 sierpnia 1997 r. o gospodarce nieruchomościami (t.j. Dz.U. z 2026 r., poz. 399) oraz Rozporządzenia Rady Ministrów z dnia 14 września 2004 r. w sprawie sposobu i trybu przeprowadzenia przetargów oraz rokowań na zbycie nieruchomości (t.j. Dz. U. z 2021 r., poz. 2213), ogłasza II ustny przetarg nieograniczony na sprzedaż niżej opisanej nieruchomości stanowiącej własność Gminy Lądek-Zdrój.
Położenie
nieruchomości
Trzebieszowice 42
Nr działki
Obręb
686
obręb Trzebieszowice
Powierzchnia 0,1100 ha
Księga
Wieczysta
SW1K/001
04450/7
Opis
nieruchomości
Przedmiotem sprzedaży jest samodzielny lokal mieszkalny nr 9 położony na parterze budynku mieszkalnego, wielorodzinnego w miejscowości Trzebieszowice nr 42. Budynek mieszkalny o powierzchni użytkowej 357,02 m2 posadowiony jest na działce gruntu oznaczonej geodezyjnym numerem 686 (AM-1), obręb Trzebieszowice o powierzchni 0,1100 ha, dla której Sąd Rejonowy w Kłodzku prowadzi księgę wieczystą nr SW1K/001pokaż telefon. Na przedmiotowym gruncie znajduje się również zespół komórek lokatorskich o konstrukcji stalowej.
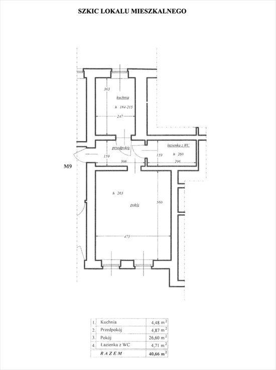
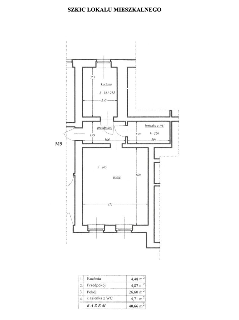
Powierzchnia lokalu: 40,66 m2
Skład lokalu: 1 pokój, kuchnia, przedpokój, łazienka z WC
Udział w częściach wspólnych budynku i gruntu: 114/ 1000
Wyposażenie w instalacje: elektryczna 250V, wodno-kanalizacyjna wewnętrzna, szambo, studnia – hydrofor, brak instalacji gazowej. Brak sieci wodno-kanalizacyjnej.
Ogrzewanie: w kuchni trzon kuchenny węglowy z podkową
Stan techniczny lokalu: słaby, atrakcyjność lokalu słaba.
Z uwagi na jego stan techniczny wymaga wykonania szeregu remontów. Okna w lokalu są skrzynkowe, drewniane nadają się do wymiany wraz z parapetami. Drzwi płytowe drewniane, stare. Ściany i sufity w lokalu tynkowane i malowane, wymagają remontu. Na sufitach tynki popękane, do remontu. Ściany w kuchni i w łazience – wyłożone płytkami glazurowanymi po zalaniu zniszczone. Na podłodze w pokoju wykładzina PCV, w kuchni panele i płytki, a w przedpokoju i łazience płytki terakota – wszystko po zalaniu zniszczone. Całość armatury sanitarnej wymaga wymiany. W lokalu brak jest wentylacji nawiewno-wywiewnej.
Cena wywoławcza
50 000,00 zł
(pięćdziesiąt tysięcy złotych 00/100)
Wadium 5 000,00 zł
Przeznaczenie nieruchomości
Teren, na którym znajduje się budynek, w miejscowym planie zagospodarowania przestrzennego zatwierdzonym uchwałą Rady Miejskiej Lądka-Zdroju Nr LI/326/2017 z dnia 28 grudnia 2017 r., w sprawie uchwalenia miejscowego planu zagospodarowania przestrzennego miejscowości Trzebieszowice (Dz. Urzęd. Woj. Dolnośląskiego z 2018 r., poz. 2627) oznaczony jest symbolem 17 MN/U - przeznaczenie: zabudowa mieszkaniowa jednorodzinna, rozumiana jako budynek mieszkalny jednorodzinny wolno stojący lub w zabudowie bliźniaczej, zabudowa usługowa, rzemieślnicza i drobnej wytwórczości, w tym obiekty handlowe o powierzchni sprzedaży do 250 m2, dopuszcza się realizację zabudowy usługowej dla celów publicznych, zabudowa usług turystyki, sportu i rekreacji, zabudowa letniskowa.
Pełny tekst miejscowego planu zagospodarowania przestrzennego znajduje się w Biuletynie Informacji Publicznej Urzędu Miasta i Gminy Lądek-Zdrój na stronie: https://bip.ladek.pl/menu-przedmiotowe/godpodarka-przestrzenna/plany-miejscowe/
Podatek VAT
Sprzedaż lokalu jest zwolniona od podatku od towarów i usług, na podstawie art. 43 ust.1 pkt 10 oraz art. 29 a ust. 8 ustawy z dnia 11 marca 2004 r. o podatku od towarów i usług (t.j. Dz. U. z 2025 r., poz. 775) w związku z tym, że od zasiedlenia lokalu upłynęło więcej niż dwa lata.
Obciążenia
Nieruchomość wolna jest od wszelkich obciążeń na rzecz osób trzecich i nie jest przedmiotem zobowiązań. Nie istnieją żadne niewykonane roszczenia prywatno - prawne osób trzecich, a nadto nie toczą się żadne postępowania administracyjne lub sądowe, których byłaby przedmiotem. Nabywca przejmuje nieruchomość w stanie istniejącym. Zbywca nie ponosi odpowiedzialności za wady ukryte nieruchomości, będącej przedmiotem przetargu.
Koszty umowy
Wszelkie koszty związane z zawarciem umowy notarialnej przenoszącej własność jak: taksa notarialna wraz z podatkiem VAT, opłaty sądowe i opłaty za wypisy aktu notarialnego obciążają nabywcę.
Nabywca przejmuje nieruchomość w stanie istniejącym
Nabywcę, od dnia nabycia nieruchomości, wiążą wszelkie uchwały podjęte wcześniej przez Wspólnotę Mieszkaniową. Do czasu podjęcia innych uchwał przez Wspólnotę Mieszkaniową dotychczasowy sposób zarządu odnosić się będzie do nabywcy niniejszego lokalu. Nabywca lokalu i współwłasności budynku ponosi wszystkie koszty i wydatki związane z utrzymaniem, eksploatacją i remontem lokalu, a także części wspólnych budynku i gruntu stosownie do wielkości posiadanych udziałów w częściach wspólnych.
Uwagi
Zgodnie z art. 169 ust. 1 ustawy z dnia 20 lipca 2017 r. Prawo wodne ( t.j. Dz.U. z 2025 r., poz. 960 ze zm.) dla obszarów narażonych na niebezpieczeństwo powodzi wskazanych we wstępnej ocenie ryzyka powodziowego sporządza się mapy zagrożenia powodziowego. Część przedmiotowej nieruchomości na mapie zagrożenia powodziowego dostępnej na hydroportalu - publicznym portalu dotyczącym tematyki wodnej pod adresem http://mapy.isok.gov.pl, położona jest w części na obszarze, na którym prawdopodobieństwo wystąpienia powodzi jest średnie i wynosi 1% (raz na 100 lat) oraz na obszarze na którym prawdopodobieństwo wystąpienia powodzi jest niskie i wynosi 0,2% (raz na 500 lat) lub na których istnieje prawdopodobieństwo zdarzenia ekstremalnego.
Procedura sprzedaży
Niniejsze ogłoszenie wywiesza się na tablicy ogłoszeń w siedzibie Urzędu Miasta i Gminy Lądek-Zdrój przy ul. Rynek 31 od 3 kwietnia 2026 r. do 13 maja 2026 r., a także będzie ono podane do publicznej wiadomości przez ogłoszenie w prasie codziennej www.monitorurzedowy.pl oraz zamieszczenie na stronach internetowych tut. Urzędu w Biuletynie Informacji Publicznej w zakładce-Nieruchomości komunalne oraz na stronie www.ladek.pl w zakładce – Oferty inwestycyjne/ nieruchomości na sprzedaż.
Nieruchomość można obejrzeć po wcześniejszym, telefonicznym uzgodnieniu z Lądeckimi Usługami Komunalnymi Sp. z o.o. z/s przy ul. Fabrycznej Nr 7a w Lądku-Zdroju. Numer telefonu 74 pokaż telefon wew. 15.
Terminy poprzednich przetargów: 14.01.2026 r. – I ustny przetarg ograniczony, 17.03.2026 r. – I ustny nieograniczony.
PRZETARG ODBĘDZIE SIĘ
dnia 13 maja 2026 r. o godz. 10:00
w Urzędzie Miasta i Gminy Lądek-Zdrój, ul. Rynek 31- pokój nr 26 na II piętrze
Cena wywoławcza wynosi: 50 000,00 zł (pięćdziesiąt tysięcy złotych 00/100)
Wadium: 5 000,00 zł (pięć tysięcy złotych 00/100)
Postąpienie minimalne: o wysokości postąpienia decydują uczestnicy przetargu, z tym, że postąpienie nie może wynosić mniej niż 1% ceny wywoławczej z zaokrągleniem w górę do pełnych dziesiątek złotych, tj. 500,00 zł (pięćset złotych 00/100).
2. Wadium uczestnika, który wygrał przetarg zostanie zaliczone na poczet ceny sprzedaży. Pozostałym uczestnikom wadium zostanie zwrócone niezwłocznie, jednak nie później niż w ciągu 3 dni od dnia odpowiednio: odwołania, zamknięcia, unieważnienia przetargu lub jego zakończenia wynikiem negatywnym. Wadium przepada na rzecz Gminy Lądek-Zdrój, w razie uchylenia się uczestnika przetargu, który wygrał przetarg od zawarcia umowy sprzedaży w terminie podanym w zawiadomieniu.
3. W celu ustalenia listy uczestników przetargu osoby fizyczne zobowiązane są przedstawić komisji przetargowej dokument stwierdzający ich tożsamość i obywatelstwo, osoby fizyczne prowadzące działalność gospodarczą - aktualny wydruk z centralnej ewidencji i informacji o działalności gospodarczej, umowę spółki cywilnej.
4. W przypadku uczestnictwa w przetargu pełnomocnika reprezentującego osobę fizyczną należy okazać odpowiednie pełnomocnictwo (w oryginale lub kopii potwierdzonej za zgodność z oryginałem przez notariusza).
5. W przypadku uczestnictwa w przetargu osoby prawnej należy w dniu przetargu dostarczyć wypis z właściwego dla danego podmiotu rejestru. W przypadku reprezentowania osoby prawnej przez pełnomocnika należy okazać odpowiednie pełnomocnictwo (w oryginale lub kopii potwierdzonej za zgodność z oryginałem).
6. W przypadku uczestnictwa w przetargu jednego z małżonków zaleca się przedłożenie pisemnego oświadczenia woli drugiego małżonka o wyrażeniu zgody na nabycie nieruchomości ze środków pochodzących z majątku wspólnego lub złożenie przez osobę przystępującą do przetargu oświadczenia o woli nabycia nieruchomości z majątku osobistego – art. 37 § 1 ustawy z dnia 25 lutego 1964 r. Kodeks rodzinny i opiekuńczy (t.j. Dz.U. z 2023 r. poz. 2809 z późn. zm.).
7. Osoba będąca cudzoziemcem w rozumieniu ustawy z dnia 24 marca 1920 r. o nabywaniu nieruchomości przez cudzoziemców (t.j. Dz. U z 2017 r. poz. 2278) zobowiązana jest w dniu zawarcia umowy przeniesienia własności nieruchomości będącej przedmiotem przetargu, przedłożyć wydane na zasadach i w sytuacjach przewidzianych ustawą zezwolenie właściwego ministra na nabycie tej nieruchomości, chyba że zajdą przewidziane powołaną ustawą przesłanki wyłączające wymóg uzyskania takiego zezwolenia.
8. Przetarg może się odbyć, chociażby zakwalifikowano do przetargu tylko jednego oferenta spełniającego warunki określone w ogłoszeniu i jeżeli choć jeden uczestnik zaoferuje, co najmniej jedno postąpienie powyżej ceny wywoławczej. Po ustaniu zgłaszania postąpień przewodniczący komisji przetargowej wywołuje trzykrotnie ostatnią, najwyższą cenę i zamyka przetarg, a następnie ogłasza imię i nazwisko albo nazwę lub firmę osoby, która przetarg wygrała.
9. Uczestnik przetargu może zaskarżyć czynności związane z jego przeprowadzeniem do Burmistrza Lądka- Zdroju w terminie 7 dni od dnia ogłoszenia wyniku przetargu.
10. Ustalenie terminu zawarcia umowy notarialnej nastąpi do 21 dni licząc od daty przetargu. Burmistrz Lądka-Zdroju zastrzega sobie możliwość odwołania przetargu z uzasadnionej przyczyny oraz odstąpienia od zawarcia umowy w razie stwierdzenia, że przetarg został przeprowadzony z naruszeniem prawa.
11. Cena nieruchomości sprzedawanej w drodze przetargu podlega zapłacie nie później niż do dnia zawarcia umowy przenoszącej własność.
12. Dodatkowe informacje dotyczące nieruchomości oraz warunków jej sprzedaży jak również pełną treść ogłoszenia o przetargu można uzyskać, od poniedziałku do piątku w godzinach pracy Urzędu Miasta i Gminy Lądek-Zdrój, ul. Rynek 31 pokój nr 24, tel. 74 8pokaż telefon, geodeskontaktuj się.
W prawym dolnym rogu dokumentu pieczęć podłużna o treści
Z upoważnienia Burmistrza
Zastępca Burmistrza Lądka-Zdroju Kazimierz Szkudlarek
– podpis nieczytelny”
Informację wytworzył:
Justyna Pożarycka
Informację zweryfikował:
Jolanta Pelczarska-Mlak
Data wytworzenia:
03.04.2026 r.
Kontakt: Urząd Miasta i Gminy Lądek-Zdrój tel: (74)pokaż telefon geodeskontaktuj się
Numer oferty: 12226/3186/OMS
pieczęć podłużna Burmistrz Lądka-Zdroju
Ogłoszenie Nr IF.6840.40.3.2025.403 Burmistrza Lądka-Zdroju z dnia 3 kwietnia 2026 r.
o II przetargu ustnym nieograniczonym na sprzedaż lokalu mieszkalnego nr 9 położonego w budynku w miejscowości Trzebieszowice nr 42
wraz z udziałem w częściach wspólnych budynku i gruntu
Burmistrz Lądka-Zdroju działając na podstawie art. 38 ust. 1 i 2 ustawy z dnia 21 sierpnia 1997 r. o gospodarce nieruchomościami (t.j. Dz.U. z 2026 r., poz. 399) oraz Rozporządzenia Rady Ministrów z dnia 14 września 2004 r. w sprawie sposobu i trybu przeprowadzenia przetargów oraz rokowań na zbycie nieruchomości (t.j. Dz. U. z 2021 r., poz. 2213), ogłasza II ustny przetarg nieograniczony na sprzedaż niżej opisanej nieruchomości stanowiącej własność Gminy Lądek-Zdrój.
Położenie
nieruchomości
Trzebieszowice 42
Nr działki
Obręb
686
obręb Trzebieszowice
Powierzchnia 0,1100 ha
Księga
Wieczysta
SW1K/001
04450/7
Opis
nieruchomości
Przedmiotem sprzedaży jest samodzielny lokal mieszkalny nr 9 położony na parterze budynku mieszkalnego, wielorodzinnego w miejscowości Trzebieszowice nr 42. Budynek mieszkalny o powierzchni użytkowej 357,02 m2 posadowiony jest na działce gruntu oznaczonej geodezyjnym numerem 686 (AM-1), obręb Trzebieszowice o powierzchni 0,1100 ha, dla której Sąd Rejonowy w Kłodzku prowadzi księgę wieczystą nr SW1K/001pokaż telefon. Na przedmiotowym gruncie znajduje się również zespół komórek lokatorskich o konstrukcji stalowej.
Powierzchnia lokalu: 40,66 m2
Skład lokalu: 1 pokój, kuchnia, przedpokój, łazienka z WC
Udział w częściach wspólnych budynku i gruntu: 114/ 1000
Wyposażenie w instalacje: elektryczna 250V, wodno-kanalizacyjna wewnętrzna, szambo, studnia – hydrofor, brak instalacji gazowej. Brak sieci wodno-kanalizacyjnej.
Ogrzewanie: w kuchni trzon kuchenny węglowy z podkową
Stan techniczny lokalu: słaby, atrakcyjność lokalu słaba.
Z uwagi na jego stan techniczny wymaga wykonania szeregu remontów. Okna w lokalu są skrzynkowe, drewniane nadają się do wymiany wraz z parapetami. Drzwi płytowe drewniane, stare. Ściany i sufity w lokalu tynkowane i malowane, wymagają remontu. Na sufitach tynki popękane, do remontu. Ściany w kuchni i w łazience – wyłożone płytkami glazurowanymi po zalaniu zniszczone. Na podłodze w pokoju wykładzina PCV, w kuchni panele i płytki, a w przedpokoju i łazience płytki terakota – wszystko po zalaniu zniszczone. Całość armatury sanitarnej wymaga wymiany. W lokalu brak jest wentylacji nawiewno-wywiewnej.
Cena wywoławcza
50 000,00 zł
(pięćdziesiąt tysięcy złotych 00/100)
Wadium 5 000,00 zł
Przeznaczenie nieruchomości
Teren, na którym znajduje się budynek, w miejscowym planie zagospodarowania przestrzennego zatwierdzonym uchwałą Rady Miejskiej Lądka-Zdroju Nr LI/326/2017 z dnia 28 grudnia 2017 r., w sprawie uchwalenia miejscowego planu zagospodarowania przestrzennego miejscowości Trzebieszowice (Dz. Urzęd. Woj. Dolnośląskiego z 2018 r., poz. 2627) oznaczony jest symbolem 17 MN/U - przeznaczenie: zabudowa mieszkaniowa jednorodzinna, rozumiana jako budynek mieszkalny jednorodzinny wolno stojący lub w zabudowie bliźniaczej, zabudowa usługowa, rzemieślnicza i drobnej wytwórczości, w tym obiekty handlowe o powierzchni sprzedaży do 250 m2, dopuszcza się realizację zabudowy usługowej dla celów publicznych, zabudowa usług turystyki, sportu i rekreacji, zabudowa letniskowa.
Pełny tekst miejscowego planu zagospodarowania przestrzennego znajduje się w Biuletynie Informacji Publicznej Urzędu Miasta i Gminy Lądek-Zdrój na stronie: https://bip.ladek.pl/menu-przedmiotowe/godpodarka-przestrzenna/plany-miejscowe/
Podatek VAT
Sprzedaż lokalu jest zwolniona od podatku od towarów i usług, na podstawie art. 43 ust.1 pkt 10 oraz art. 29 a ust. 8 ustawy z dnia 11 marca 2004 r. o podatku od towarów i usług (t.j. Dz. U. z 2025 r., poz. 775) w związku z tym, że od zasiedlenia lokalu upłynęło więcej niż dwa lata.
Obciążenia
Nieruchomość wolna jest od wszelkich obciążeń na rzecz osób trzecich i nie jest przedmiotem zobowiązań. Nie istnieją żadne niewykonane roszczenia prywatno - prawne osób trzecich, a nadto nie toczą się żadne postępowania administracyjne lub sądowe, których byłaby przedmiotem. Nabywca przejmuje nieruchomość w stanie istniejącym. Zbywca nie ponosi odpowiedzialności za wady ukryte nieruchomości, będącej przedmiotem przetargu.
Koszty umowy
Wszelkie koszty związane z zawarciem umowy notarialnej przenoszącej własność jak: taksa notarialna wraz z podatkiem VAT, opłaty sądowe i opłaty za wypisy aktu notarialnego obciążają nabywcę.
Nabywca przejmuje nieruchomość w stanie istniejącym
Nabywcę, od dnia nabycia nieruchomości, wiążą wszelkie uchwały podjęte wcześniej przez Wspólnotę Mieszkaniową. Do czasu podjęcia innych uchwał przez Wspólnotę Mieszkaniową dotychczasowy sposób zarządu odnosić się będzie do nabywcy niniejszego lokalu. Nabywca lokalu i współwłasności budynku ponosi wszystkie koszty i wydatki związane z utrzymaniem, eksploatacją i remontem lokalu, a także części wspólnych budynku i gruntu stosownie do wielkości posiadanych udziałów w częściach wspólnych.
Uwagi
Zgodnie z art. 169 ust. 1 ustawy z dnia 20 lipca 2017 r. Prawo wodne ( t.j. Dz.U. z 2025 r., poz. 960 ze zm.) dla obszarów narażonych na niebezpieczeństwo powodzi wskazanych we wstępnej ocenie ryzyka powodziowego sporządza się mapy zagrożenia powodziowego. Część przedmiotowej nieruchomości na mapie zagrożenia powodziowego dostępnej na hydroportalu - publicznym portalu dotyczącym tematyki wodnej pod adresem http://mapy.isok.gov.pl, położona jest w części na obszarze, na którym prawdopodobieństwo wystąpienia powodzi jest średnie i wynosi 1% (raz na 100 lat) oraz na obszarze na którym prawdopodobieństwo wystąpienia powodzi jest niskie i wynosi 0,2% (raz na 500 lat) lub na których istnieje prawdopodobieństwo zdarzenia ekstremalnego.
Procedura sprzedaży
Niniejsze ogłoszenie wywiesza się na tablicy ogłoszeń w siedzibie Urzędu Miasta i Gminy Lądek-Zdrój przy ul. Rynek 31 od 3 kwietnia 2026 r. do 13 maja 2026 r., a także będzie ono podane do publicznej wiadomości przez ogłoszenie w prasie codziennej www.monitorurzedowy.pl oraz zamieszczenie na stronach internetowych tut. Urzędu w Biuletynie Informacji Publicznej w zakładce-Nieruchomości komunalne oraz na stronie www.ladek.pl w zakładce – Oferty inwestycyjne/ nieruchomości na sprzedaż.
Nieruchomość można obejrzeć po wcześniejszym, telefonicznym uzgodnieniu z Lądeckimi Usługami Komunalnymi Sp. z o.o. z/s przy ul. Fabrycznej Nr 7a w Lądku-Zdroju. Numer telefonu 74 pokaż telefon wew. 15.
Terminy poprzednich przetargów: 14.01.2026 r. – I ustny przetarg ograniczony, 17.03.2026 r. – I ustny nieograniczony.
PRZETARG ODBĘDZIE SIĘ
dnia 13 maja 2026 r. o godz. 10:00
w Urzędzie Miasta i Gminy Lądek-Zdrój, ul. Rynek 31- pokój nr 26 na II piętrze
Cena wywoławcza wynosi: 50 000,00 zł (pięćdziesiąt tysięcy złotych 00/100)
Wadium: 5 000,00 zł (pięć tysięcy złotych 00/100)
Postąpienie minimalne: o wysokości postąpienia decydują uczestnicy przetargu, z tym, że postąpienie nie może wynosić mniej niż 1% ceny wywoławczej z zaokrągleniem w górę do pełnych dziesiątek złotych, tj. 500,00 zł (pięćset złotych 00/100).
2. Wadium uczestnika, który wygrał przetarg zostanie zaliczone na poczet ceny sprzedaży. Pozostałym uczestnikom wadium zostanie zwrócone niezwłocznie, jednak nie później niż w ciągu 3 dni od dnia odpowiednio: odwołania, zamknięcia, unieważnienia przetargu lub jego zakończenia wynikiem negatywnym. Wadium przepada na rzecz Gminy Lądek-Zdrój, w razie uchylenia się uczestnika przetargu, który wygrał przetarg od zawarcia umowy sprzedaży w terminie podanym w zawiadomieniu.
3. W celu ustalenia listy uczestników przetargu osoby fizyczne zobowiązane są przedstawić komisji przetargowej dokument stwierdzający ich tożsamość i obywatelstwo, osoby fizyczne prowadzące działalność gospodarczą - aktualny wydruk z centralnej ewidencji i informacji o działalności gospodarczej, umowę spółki cywilnej.
4. W przypadku uczestnictwa w przetargu pełnomocnika reprezentującego osobę fizyczną należy okazać odpowiednie pełnomocnictwo (w oryginale lub kopii potwierdzonej za zgodność z oryginałem przez notariusza).
5. W przypadku uczestnictwa w przetargu osoby prawnej należy w dniu przetargu dostarczyć wypis z właściwego dla danego podmiotu rejestru. W przypadku reprezentowania osoby prawnej przez pełnomocnika należy okazać odpowiednie pełnomocnictwo (w oryginale lub kopii potwierdzonej za zgodność z oryginałem).
6. W przypadku uczestnictwa w przetargu jednego z małżonków zaleca się przedłożenie pisemnego oświadczenia woli drugiego małżonka o wyrażeniu zgody na nabycie nieruchomości ze środków pochodzących z majątku wspólnego lub złożenie przez osobę przystępującą do przetargu oświadczenia o woli nabycia nieruchomości z majątku osobistego – art. 37 § 1 ustawy z dnia 25 lutego 1964 r. Kodeks rodzinny i opiekuńczy (t.j. Dz.U. z 2023 r. poz. 2809 z późn. zm.).
7. Osoba będąca cudzoziemcem w rozumieniu ustawy z dnia 24 marca 1920 r. o nabywaniu nieruchomości przez cudzoziemców (t.j. Dz. U z 2017 r. poz. 2278) zobowiązana jest w dniu zawarcia umowy przeniesienia własności nieruchomości będącej przedmiotem przetargu, przedłożyć wydane na zasadach i w sytuacjach przewidzianych ustawą zezwolenie właściwego ministra na nabycie tej nieruchomości, chyba że zajdą przewidziane powołaną ustawą przesłanki wyłączające wymóg uzyskania takiego zezwolenia.
8. Przetarg może się odbyć, chociażby zakwalifikowano do przetargu tylko jednego oferenta spełniającego warunki określone w ogłoszeniu i jeżeli choć jeden uczestnik zaoferuje, co najmniej jedno postąpienie powyżej ceny wywoławczej. Po ustaniu zgłaszania postąpień przewodniczący komisji przetargowej wywołuje trzykrotnie ostatnią, najwyższą cenę i zamyka przetarg, a następnie ogłasza imię i nazwisko albo nazwę lub firmę osoby, która przetarg wygrała.
9. Uczestnik przetargu może zaskarżyć czynności związane z jego przeprowadzeniem do Burmistrza Lądka- Zdroju w terminie 7 dni od dnia ogłoszenia wyniku przetargu.
10. Ustalenie terminu zawarcia umowy notarialnej nastąpi do 21 dni licząc od daty przetargu. Burmistrz Lądka-Zdroju zastrzega sobie możliwość odwołania przetargu z uzasadnionej przyczyny oraz odstąpienia od zawarcia umowy w razie stwierdzenia, że przetarg został przeprowadzony z naruszeniem prawa.
11. Cena nieruchomości sprzedawanej w drodze przetargu podlega zapłacie nie później niż do dnia zawarcia umowy przenoszącej własność.
12. Dodatkowe informacje dotyczące nieruchomości oraz warunków jej sprzedaży jak również pełną treść ogłoszenia o przetargu można uzyskać, od poniedziałku do piątku w godzinach pracy Urzędu Miasta i Gminy Lądek-Zdrój, ul. Rynek 31 pokój nr 24, tel. 74 8pokaż telefon, geodeskontaktuj się.
W prawym dolnym rogu dokumentu pieczęć podłużna o treści
Z upoważnienia Burmistrza
Zastępca Burmistrza Lądka-Zdroju Kazimierz Szkudlarek
– podpis nieczytelny”
Informację wytworzył:
Justyna Pożarycka
Informację zweryfikował:
Jolanta Pelczarska-Mlak
Data wytworzenia:
03.04.2026 r.
Kontakt: Urząd Miasta i Gminy Lądek-Zdrój tel: (74)pokaż telefon geodeskontaktuj się
Numer oferty: 12226/3186/OMS
Statystyki ogłoszenia: