Nowoczesne kawalerki w centrum Szczecina – adaptacja poddasza Szczecin, Śródmieście-Centrum, Bohaterów Getta Warszawskiego - 32,4m2
398 550
zł
12 300,93 zł/m2
POWIERZCHNIA
32,40 m2
PIĘTRO
4 / 4
LICZBA POKOI
1
PARKING
-
Szczegóły oferty BON48633
- Kategoria Mieszkania na sprzedaż
- Lokalizacja zachodniopomorskie, Szczecin, Śródmieście-Centrum, Bohaterów Getta Warszawskiego
- Powierzchnia całkowita32,40 m2
-
Cena
398 550 zł
-
Czynsz administracyjny
300 zł
- Cena za m2 12 300,93 zł/m2
- Liczba pokoi 1
- Piętro 4
- Liczba pięter w budynku 4
- Typ budynkukamienica
- Rok budowy 2026
- Forma własności własność
- Materiał cegła
- Kuchniaaneks kuchenny
- Informacje dodatkowe:
- ogrzewanie centralne
Lokalizacja
Opis oferty
Planujesz skredytować to marzenie – zadzwoń.
Nowa inwestycja znanego dewelopera - adaptacja poddasza w kamienicy z 1930 roku, w centrum miasta, oddanie w sierpniu 2026.
Zamieszkaj w nowym mieszkaniu-stan deweloperski do wykończenia wg własnego uznania.
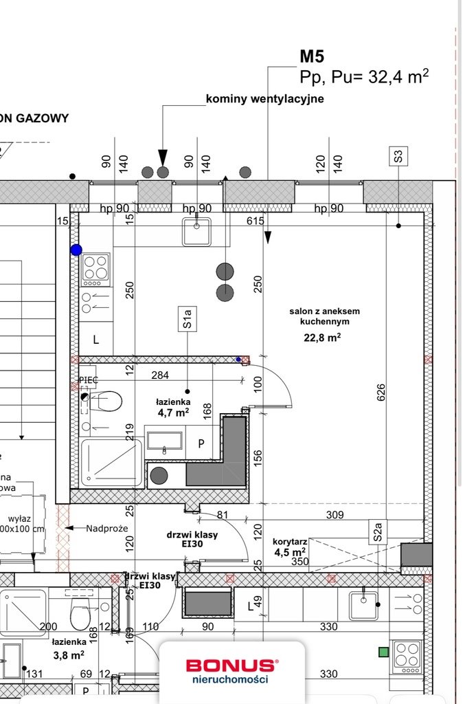
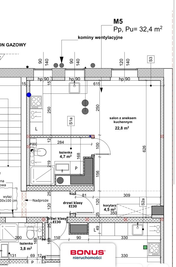
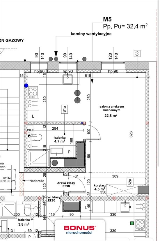
Na powierzchnię kawalerki (32,4 m2) składają się:
Ogrzewanie: gazowe, piec dwuobiegowy /CO,CW/
OPŁATY: czynsz ok 300 zł (zaliczki na wodę, FR) gaz i prąd wg zużycia
MEDIA: ciepła woda - z pieca gazowego, CO gazowe,
OKOLICA: liczne sklepy, komunikacja miejska: od 200 do 500 m, bary, restauracje, Galeria Kaskada 1200 m.
Kupujący nie płaci PCC.
W sumie inwestycja obejmuje 4 apartamenty 2 pokojowe od 28m2 do 36 m2 (ceny zaczynają się od 355000 zł) i kawalerkę.
Zapraszam do kontaktu.
Planujesz skredytować to marzenie? Zadzwoń. Pośredniczymy w transakcjach obrotu nieruchomościami i pomagamy uzyskać kredyt hipoteczny na terenie całej Polski. Posiadamy 8 oddziałów - w Szczecinie, Warszawie, Poznaniu, Gdańsku, Olsztynie, Rzeszowie i Lublinie. Nasi agenci bezpłatnie dojeżdżają do Klientów. Jesteś zainteresowany niezobowiązującym spotkaniem? Zadzwoń do nas już dziś. Treść niniejszego ogłoszenia nie stanowi oferty handlowej w rozumieniu Kodeksu Cywilnego. Treść ma charakter informacyjny i zalecamy ich osobistą weryfikację. Oferta wysłana z programu dla biur nieruchomości ASARI CRM (asaricrm.com)
Numer oferty: BON48633
Nr licencji zawodowej: 11681
Nowa inwestycja znanego dewelopera - adaptacja poddasza w kamienicy z 1930 roku, w centrum miasta, oddanie w sierpniu 2026.
Zamieszkaj w nowym mieszkaniu-stan deweloperski do wykończenia wg własnego uznania.
Na powierzchnię kawalerki (32,4 m2) składają się:
- salon z aneksem kuchennym 22,8 m2
- łazienka 3,8 m2
- korytarz 2,9 m2
Ogrzewanie: gazowe, piec dwuobiegowy /CO,CW/
OPŁATY: czynsz ok 300 zł (zaliczki na wodę, FR) gaz i prąd wg zużycia
MEDIA: ciepła woda - z pieca gazowego, CO gazowe,
OKOLICA: liczne sklepy, komunikacja miejska: od 200 do 500 m, bary, restauracje, Galeria Kaskada 1200 m.
Kupujący nie płaci PCC.
W sumie inwestycja obejmuje 4 apartamenty 2 pokojowe od 28m2 do 36 m2 (ceny zaczynają się od 355000 zł) i kawalerkę.
Zapraszam do kontaktu.
Planujesz skredytować to marzenie? Zadzwoń. Pośredniczymy w transakcjach obrotu nieruchomościami i pomagamy uzyskać kredyt hipoteczny na terenie całej Polski. Posiadamy 8 oddziałów - w Szczecinie, Warszawie, Poznaniu, Gdańsku, Olsztynie, Rzeszowie i Lublinie. Nasi agenci bezpłatnie dojeżdżają do Klientów. Jesteś zainteresowany niezobowiązującym spotkaniem? Zadzwoń do nas już dziś. Treść niniejszego ogłoszenia nie stanowi oferty handlowej w rozumieniu Kodeksu Cywilnego. Treść ma charakter informacyjny i zalecamy ich osobistą weryfikację. Oferta wysłana z programu dla biur nieruchomości ASARI CRM (asaricrm.com)
Numer oferty: BON48633
Nr licencji zawodowej: 11681
Statystyki ogłoszenia:
Podobne nieruchomości