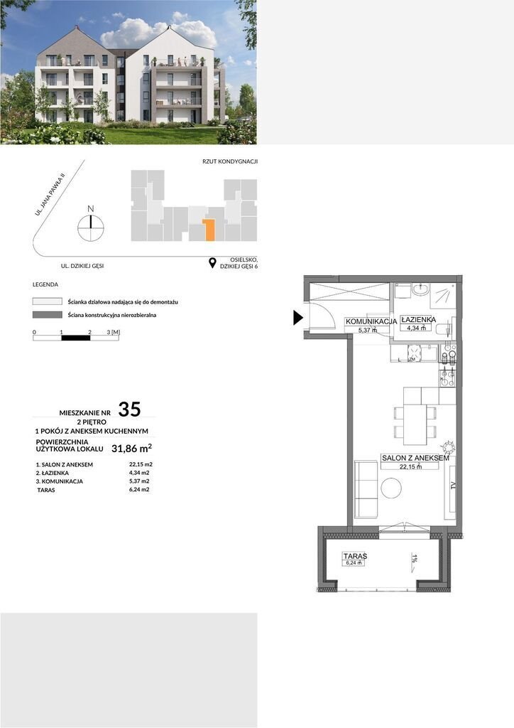
Przestronna kawalerka z dużym balkonem w Osielsku Osielsko, Dzikiej Gęsi - 31,74m2
320 574
zł
10 100 zł/m2
POWIERZCHNIA
31,74 m2
PIĘTRO
2 / 3
LICZBA POKOI
1
PARKING
miejsce parkingowe
Szczegóły oferty 12944/14150/OMS
- Kategoria Mieszkania na sprzedaż
- Lokalizacja kujawsko-pomorskie, Osielsko, Dzikiej Gęsi
- Powierzchnia całkowita31,74 m2
-
Cena
320 574 zł
- Cena za m2 10 100 zł/m2
- Liczba pokoi 1
- Piętro 2
- Liczba pięter w budynku 3
- Dostępne od31.12.2025r.
- Typ budynkublok
- Rok budowy 2025
- Materiał inny
- Kuchniaaneks kuchenny
- Informacje dodatkowe:
- winda, ogrzewanie centralne, miejsce parkingowe
- Okolica:
- szkoła, przedszkole, las
Lokalizacja
Opis oferty
Kawalerka o powierzchni prawie 32 m² z PRZESTRONNYM BALKONEM w Osielsku.
Mieszkanie dobrze doświetlone, zlokalizowane od południa.
Układ pomieszczeń:Salon z aneksem kuchennym Łazienka Przedpokój
Balkon o powierzchni ponad 4m²!
Inwestycja powstaje w spokojnej części Osielska, niedaleko Bydgoszczy.
W otoczeniu zieleni, a jednocześnie z dogodnym dojazdem do centrum miasta. Budynek charakteryzuje się nowoczesną, kameralną zabudową, oferuje mieszkania z dużymi balkonami oraz dostępem do miejsc parkingowych. Dodatkowym atutem jest bliskość terenów rekreacyjnych i infrastruktury handlowo-usługowej, co zapewnia wygodę codziennego życia.
Planowany termin zakończenia budowy to IV kwartał 2025 roku.
Potrzebujesz pomocy z wizualizacją, projektem albo wyceną pod klucz? Daj znać!
Chcesz poznać więcej szczegółów i umówić się na spotkanie?
Zapraszam do kontaktu!
Komórka lokatorska: 2 000zł/m² - 4 500zł/m²
Miejsce w hali garażowej: 39 000zł
Miejsce zewnętrzne: 20 000zł
Informacje zamieszczone w niniejszej publikacji mają charakter wyłącznie informacyjny i nie stanowią oferty handlowej w rozumieniu art. 66 § 1 Kodeksu cywilnego. Materiały, opisy, dane techniczne, ilustracje oraz wszelkie przykłady przedstawione w tekście służą jedynie celom poglądowym i mogą różnić się od rzeczywistego stanu, aktualnych warunków lub dostępności produktów i usług.
Zastrzegamy sobie prawo do wprowadzania zmian w treści, parametrach technicznych oraz innych informacjach bez wcześniejszego powiadomienia.
Wszelkie wiążące ustalenia dotyczące warunków współpracy, cen, dostępności lub specyfikacji produktów i usług następują wyłącznie na podstawie indywidualnych uzgodnień oraz podpisania stosownych umów.
https://simpledom.com.pl/inwestycja-3186-6425m2-31pokaż telefonpln-dzikiej-gesi-osielsko-kujawsko-pomorskie,166/14150/OI Oferta wysłana z programu dla biur nieruchomości ASARI CRM (asaricrm.com)
Numer oferty: 12944/14150/OMS
Mieszkanie dobrze doświetlone, zlokalizowane od południa.
Układ pomieszczeń:
Balkon o powierzchni ponad 4m²!
Inwestycja powstaje w spokojnej części Osielska, niedaleko Bydgoszczy.
W otoczeniu zieleni, a jednocześnie z dogodnym dojazdem do centrum miasta. Budynek charakteryzuje się nowoczesną, kameralną zabudową, oferuje mieszkania z dużymi balkonami oraz dostępem do miejsc parkingowych. Dodatkowym atutem jest bliskość terenów rekreacyjnych i infrastruktury handlowo-usługowej, co zapewnia wygodę codziennego życia.
Planowany termin zakończenia budowy to IV kwartał 2025 roku.
Potrzebujesz pomocy z wizualizacją, projektem albo wyceną pod klucz? Daj znać!
Chcesz poznać więcej szczegółów i umówić się na spotkanie?
Zapraszam do kontaktu!
Komórka lokatorska: 2 000zł/m² - 4 500zł/m²
Miejsce w hali garażowej: 39 000zł
Miejsce zewnętrzne: 20 000zł
Informacje zamieszczone w niniejszej publikacji mają charakter wyłącznie informacyjny i nie stanowią oferty handlowej w rozumieniu art. 66 § 1 Kodeksu cywilnego. Materiały, opisy, dane techniczne, ilustracje oraz wszelkie przykłady przedstawione w tekście służą jedynie celom poglądowym i mogą różnić się od rzeczywistego stanu, aktualnych warunków lub dostępności produktów i usług.
Zastrzegamy sobie prawo do wprowadzania zmian w treści, parametrach technicznych oraz innych informacjach bez wcześniejszego powiadomienia.
Wszelkie wiążące ustalenia dotyczące warunków współpracy, cen, dostępności lub specyfikacji produktów i usług następują wyłącznie na podstawie indywidualnych uzgodnień oraz podpisania stosownych umów.
https://simpledom.com.pl/inwestycja-3186-6425m2-31pokaż telefonpln-dzikiej-gesi-osielsko-kujawsko-pomorskie,166/14150/OI Oferta wysłana z programu dla biur nieruchomości ASARI CRM (asaricrm.com)
Numer oferty: 12944/14150/OMS
Statystyki ogłoszenia:
Podobne nieruchomości