ico powierzchnia

POWIERZCHNIA

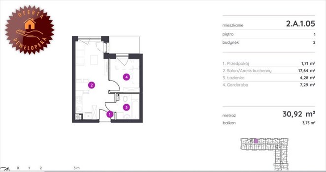
30,32 m2

ico pietro

PIĘTRO

1 / 4

ico liczba pokoi

LICZBA POKOI

1

ico parking

PARKING

garaż

Szczegóły oferty 104334

  • Kategoria Mieszkania na sprzedaż
  • Lokalizacja łódzkie, Łódź, Polesie, al. 1 Maja
  • Powierzchnia całkowita30,32 m2
  • Cena

    369 494 zł

    Reklama ico Sprawdź ratę Sprawdź ratę RSSO 6,71%
    na dz. 24.11.25
    trade ico trade ico trade
  • Cena za m2 12 186,48 zł/m2
  • Liczba pokoi 1
  • Piętro 1
  • Liczba pięter w budynku 4
  • Typ budynkuapartamentowiec
  • Rok budowy 2024
  • Forma własności własność
  • Materiał cegła
  • Kuchniaaneks
Informacje dodatkowe:
balkon, ogrzewanie miejskie, garaż

Lokalizacja

Łódź, Polesie, al. 1 Maja

Opis oferty

0% PROWIZJI!! Inwestycja od dewelopera, bez PCC 2%.

65 kompaktowych lokali mieszkalnych w dwóch 4-piętrowych budynkach wraz z miejscami postojowymi w podziemnych halach garażowychOsiedle zlokalizowane na zachodnim skraju Starego Polesia, w pobliżu zielonego kampusu Uniwersytetu Medycznego, Stadionu Żużlowego, Aquaparku Fala i Łódzkiego OrientariumSystem automatyki domowej Home Management SystemFiltry antysmogowe są w standardowym wyposażeniu każdego mieszkania

Osiedle będzie liczyć łącznie 265 kompaktowych lokali mieszkalnych w dwóch 4-piętrowych budynkach wraz z miejscami postojowymi w podziemnych halach garażowych. Oferta mieszkaniowa jest przeznaczona zarówno dla rodzin z dziećmi, par, singli, jak i seniorów. Z uwagi na lokalizację Murapol Osiedla Faktoria oraz zróżnicowane układy 1-, 2- lub 3-pokojowych mieszkań to również świetny wybór z punktu widzenia inwestycyjnego.

Inwestycja jest zlokalizowana u zbiegu al. 1 Maja, al. Włókniarzy (DK91), a także w pobliżu DW710 pozwalających sprawnie poruszać się po całej aglomeracji łódzkiej.Tuż za rogiem znajduje się szereg przystanków tramwajowych (linie 8, 16) i autobusowych (m.in. linie 43, 57, 60, 65, 72, 73, 77, 80, 86).W 20 min można dotrzeć do stacji kolejowej Łódź Kaliska, obsługującej zarówno kursy regionalne, jak i krajowe.

Dojazd do największego centrum handlowego w Polsce, czyli łódzkiej Manufaktury zajmuje zaledwie 10 min samochodem.W kilka minut jazdy autem dotrzemy także do innych galerii handlowych w okolicy: Pasaż Łódzki (8 min), Galeria Łódzka (10 min).Najbliższy sklep spożywczy znajduje się w odległości 600 metrów.Dzięki ważnym arteriom w pobliżu działają dwie stacje paliw.

sąsiedztwie inwestycji jest kampus Uniwersytetu Medycznego w Łodzi, w tym wydział nauk o zdrowiu, zakład medycyny sportowej, hala sportowa i basen uczelni, dom studencki oraz Uniwersytecki Szpital Kliniczny.Politechnika Łódzka znajduje się w odległości 6 min jazdy autem od inwestycji;

GORĄCO POLECAMY I ZAPRASZAMY DO OBEJRZENIA I ZAKUPU 

Jestem do Państwa dyspozycji 7 dni w tygodniu. 

Dominika Suchy 

www.onehouse.pl 

tel. kom.: +48 6pokaż telefon

Treść niniejszego ogłoszenia nie stanowi oferty handlowej w rozumieniu Kodeksu Cywilnego.

Oferta wysłana z programu IMO dla biur nieruchomości


Numer oferty: 104334
Nr licencji zawodowej: 19898

Statystyki ogłoszenia:

oko

Podobne nieruchomości