Sprzedaż 1-pokojowego mieszkania w Lądku-Zdroju Lądek-Zdrój, Słodowa - 33,8m2
POWIERZCHNIA
33,80 m2
PIĘTRO
1
LICZBA POKOI
1
PARKING
-
Szczegóły oferty 12091/3186/OMS Data dodania: 10 dni temu
- Kategoria Mieszkania na sprzedaż
- Lokalizacja dolnośląskie, Lądek-Zdrój, Słodowa
- Powierzchnia całkowita33,80 m2
-
Cena
163 000 zł
- Cena za m2 4 822,49 zł/m2
- Liczba pokoi 1
- Piętro 1
- Materiał inny
- Informacje dodatkowe:
- piwnica
Lokalizacja
Opis oferty
W lewym górnym rogu dokumentu
pieczęć podłużna Burmistrz Lądka-Zdroju
Ogłoszenie Nr IF.6840.19.1.2025.403 Burmistrza Lądka-Zdroju z dnia 13 lutego 2026 r.
o I przetargu ustnym nieograniczonym na sprzedaż lokalu mieszkalnego nr 4 położonego w budynku przy ul. Słodowej 37 w Lądku-Zdroju wraz z udziałem w częściach wspólnych budynku i gruntu
Burmistrz Lądka-Zdroju działając na podstawie art. 38 ust. 1 i 2 ustawy z dnia 21 sierpnia 1997 r. o gospodarce nieruchomościami (t.j. Dz.U. z 2024 r., poz. 1145 ze zm.) oraz Rozporządzenia Rady Ministrów z dnia 14 września 2004 r. w sprawie sposobu i trybu przeprowadzenia przetargów oraz rokowań na zbycie nieruchomości (t.j. Dz. U. z 2021 r., poz. 2213), ogłasza I ustny przetarg nieograniczony na sprzedaż niżej opisanej nieruchomości stanowiącej własność Gminy Lądek-Zdrój.
Lp. 1
Położenie nieruchomości
ul. Słodowa 37
Lądek-Zdrój
Nr działki
169/16
Obręb
obręb Stare Miasto
Powierzchnia
0,0522 ha
Księga Wieczysta
SW1K/001pokaż telefon
Opis nieruchomości
Przedmiotem sprzedaży jest samodzielny lokal mieszkalny nr 4 położony na I piętrze budynku mieszkalnego, wielorodzinnego przy ul. Słodowej 37 w Lądku-Zdroju, wraz z udziałem w częściach wspólnych budynku i współwłasności gruntu (działki nr 169/16 obręb Stare Miasto) wynoszącym 291/1 000.
Budynek posadowiony jest na działce nr 169/16, dla której prowadzona jest księga wieczysta nr SW1K/001pokaż telefon. Powierzchnia użytkowa budynku wynosi 156,83 m2. Budynek wpisany jest do ewidencji zabytków.
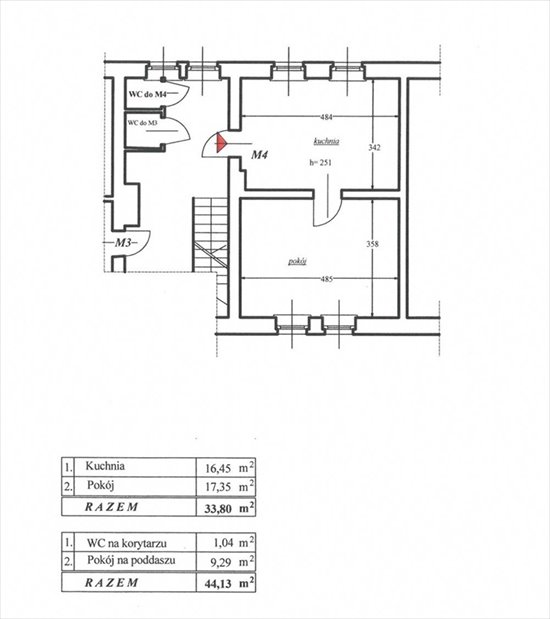
Powierzchnia lokalu: 33,80 m2
Skład lokalu: 1 pokój, kuchnia,
Pomieszczenia przynależne: 1 pokój na poddaszu o pow. użytkowej 9,29 m2, WC na korytarzu o pow. użytkowej 1,04 m2, 1 piwnica o pow. użytkowej 1,45 m2
Łączna powierzchnia lokalu wraz z pomieszczeniami przynależnymi:45,58 m3
Udział w częściach wspólnych budynku i gruntu:
291/1 000
Wyposażenie w instalacje: instalacja elektryczna 250V, instalacja wodno-kanalizacyjna, gazowa, brak wentylacji nawiewno-wywiewnej
Ogrzewanie istniejące: trzon kuchenny węglowy oraz piec kaflowy (do rozbiórki)
Stan techniczny lokalu: słaby
W przedmiotowym lokalu należy wykonać szereg remontów umożliwiających korzystanie z lokalu do celów mieszkaniowych. W lokalu okna są drewniane skrzynkowe, nadają się do wymiany. Drzwi drewniane płycinowe, stare. Podłogi drewniane, kryte w pokojach panelem, w kuchni PCV, a na poddaszu płytą malowaną. Ściany i sufity – malowane.
Dla przedmiotowego lokalu nie zostało wydane świadectwo charakterystyki energetycznej w myśl ustawy z dnia29 sierpnia 2014 r. o charakterystyce energetycznej budynków (t.j. Dz. U. z 2024 r., poz. 101).
Cena wywoławcza
163 000,00 zł
(sto sześćdziesiąt trzy tysiące złotych 00/100)
Wadium
17 000,00 zł
Przeznaczenie nieruchomości
Teren, na którym znajduje się budynek, w miejscowym planie zagospodarowania przestrzennego zatwierdzonym uchwałą Rady Miejskiej Lądka-Zdroju Nr XXXVI/247/13 z dnia 30 kwietnia 2013 r., w sprawie uchwalenia miejscowego planu zagospodarowania przestrzennego Lądka-Zdroju "Nowy Zdrój obszar A - Stare Miasto"(Dz.U. Woj. Dolnośląskiego z 2013 r., poz. 3873) oznaczony jest symbolem 10 MWU - przeznaczenie podstawowe: tereny zabudowy mieszkaniowej wielorodzinnej, tereny zabudowy mieszkaniowej wielorodzinnej z usługami.
Pełny tekst miejscowego planu zagospodarowania przestrzennego znajduje się w Biuletynie Informacji Publicznej Urzędu Miasta i Gminy Lądek-Zdrój na stronie:
https://bip.ladek.pl/menu-przedmiotowe/godpodarka-przestrzenna/plany-miejscowe/
Uwagi:
1) Zgodnie z decyzją nr 21/23 Wojewody Dolnośląskiego z dnia 29 marca 2023 r. o pozwoleniu na realizację inwestycji w zakresie budowli przeciwpowodziowych działka nr 169/16, obręb Stare Miasto w części o pow. 0,0054 ha podlega trwałemu ograniczeniu w korzystaniu. Cel ograniczenia – Lokalizowanie części budowli przeciwpowodziowej t.j. drenażu liniowego za murem brzegowym, odsadzki tylnej muru, palisady wsporczej, fundamentu schodów brzegowych – pod poziomem terenu. Trwałe ograniczenie z korzystania nieruchomością polegające na zakazie wznoszenia budowli oraz sadzeniu drzew, ze względu na zapewnienie stateczności konstrukcji budowli przeciw powodziowej.
2) Zgodnie z art. 169 ust. 1 ustawy z dnia 20 lipca 2017 r. Prawo wodne (t.j. Dz. U. z 2025 r., poz. 960 ze zm.) dla obszarów narażonych na niebezpieczeństwo powodzi wskazanych we wstępnej ocenie ryzyka powodziowego sporządza się mapy zagrożenia powodziowego. Część przedmiotowej nieruchomości na mapie zagrożenia powodziowego dostępnej na hydroportalu - publicznym portalu dotyczącym tematyki wodnej pod adresem http://mapy.isok.gov.pl, położona jest w części na obszarze, na którym prawdopodobieństwo wystąpienia powodzi jest średnie i wynosi 1% (raz na 100 lat) oraz w części na obszarze na którym prawdopodobieństwo wystąpienia powodzi jest niskie i wynosi 0,2% (raz na 500 lat).
Podatek VAT
Sprzedaż lokalu jest zwolniona od podatku od towarów i usług, na podstawie art. 43 ust.1 pkt 10 oraz art. 29 a ust. 8 ustawy z dnia 11 marca 2004 r. o podatku od towarów i usług (t.j. Dz. U. z 2025 r., poz. 775) w związku z tym, że od zasiedlenia lokalu upłynęło więcej niż dwa lata.
Obciążenia
Nie istnieją żadne niewykonane roszczenia prywatno - prawne osób trzecich, a nadto nie toczą się żadne postępowania administracyjne lub sądowe, których byłaby przedmiotem. Nabywca przejmuje nieruchomość w stanie istniejącym. Zbywca nie ponosi odpowiedzialności za wady ukryte nieruchomości, będącej przedmiotem przetargu.
Koszty umowy
Wszelkie koszty związane z zawarciem umowy notarialnej przenoszącej własność jak: taksa notarialna wraz z podatkiem VAT, opłaty sądowe i opłaty za wypisy aktu notarialnego obciążają nabywcę.
Nabywca przejmuje nieruchomość w stanie istniejącym
Nabywcę, od dnia nabycia nieruchomości, wiążą wszelkie uchwały podjęte wcześniej przez Wspólnotę Mieszkaniową. Do czasu podjęcia innych uchwał przez Wspólnotę Mieszkaniową dotychczasowy sposób zarządu odnosić się będzie do nabywcy niniejszego lokalu. Nabywca lokalu i współwłasności budynku ponosi wszystkie koszty i wydatki związane z utrzymaniem, eksploatacją i remontem lokalu, a także części wspólnych budynku i gruntu stosownie do wielkości posiadanych udziałów w częściach wspólnych.
Procedura sprzedaży
Niniejsze ogłoszenie wywiesza się na tablicy ogłoszeń w siedzibie Urzędu Miasta i Gminy Lądek-Zdrój przy ul. Rynek 31 od 13 lutego 2026 r. do 24 marca 2026 r., a także będzie ono podane do publicznej wiadomości przez ogłoszenie w prasie codziennej www.monitorurzedowy.pl oraz zamieszczenie na stronach internetowych tut. Urzędu w Biuletynie Informacji Publicznej w zakładce-Nieruchomości komunalne oraz na stronie www.ladek.pl w zakładce – Oferty inwestycyjne/ nieruchomości na sprzedaż.
Przed przystąpieniem do przetargu zaleca się, aby jego uczestnik zapoznał się z przedmiotem przetargu. Nieruchomość można obejrzeć po wcześniejszym, telefonicznym uzgodnieniu z Lądeckimi Usługami Komunalnymi Sp. z o.o. z/s przy ul. Fabrycznej Nr 7a w Lądku-Zdroju. Numer telefonu 74 pokaż telefon wew. 15.
Terminy poprzednich przetargów: 28.01.2026 r. – I ustny przetarg ograniczony.
PRZETARG ODBĘDZIE SIĘ
dnia 24 marca 2026 r. o godz. 11:00
w Urzędzie Miasta i Gminy Lądek-Zdrój, ul. Rynek 31- pokój nr 26 na II piętrze
Cena wywoławcza wynosi: 163 000,00 zł (sto sześćdziesiąt trzy tysiące złotych 00/100)
Wadium: 17 000,00 zł (siedemnaście tysięcy złotych 00/100)
Postąpienie minimalne: o wysokości postąpienia decydują uczestnicy przetargu, z tym, że postąpienie nie może wynosić mniej niż 1% ceny wywoławczej z zaokrągleniem w górę do pełnych dziesiątek złotych, tj. 1 630,00 zł (jeden tysiąc sześćset trzydzieści złotych 00/100).
1. Warunkiem przystąpienia do przetargu jest wpłacenie określonego w ogłoszeniu wadium w pieniądzu, z takim rozliczeniem, aby należna kwota znalazła się na koncie Urzędu Miasta i Gminy Lądek-Zdrój w GBS w Strzelinie Oddział w Lądku- Zdroju nr konta 39 9588 00pokaż telefon w nieprzekraczalnym terminie do 18 marca 2026 r. - włącznie. Na dowodzie wpłaty należy zaznaczyć "Przetarg – lokal mieszkalny ul. Słodowa 37/4, imię nazwisko/nazwa uczestnika przetargu.”
3. Wadium uczestnika, który wygrał przetarg zostanie zaliczone na poczet ceny sprzedaży. Pozostałym uczestnikom wadium zostanie zwrócone niezwłocznie, jednak nie później niż w ciągu 3 dni od dnia odpowiednio: odwołania, zamknięcia, unieważnienia przetargu lub jego zakończenia wynikiem negatywnym. Wadium przepada na rzecz Gminy Lądek-Zdrój, w razie uchylenia się uczestnika przetargu, który wygrał przetarg od zawarcia umowy sprzedaży w terminie podanym w zawiadomieniu.
4. W celu ustalenia listy uczestników przetargu osoby fizyczne zobowiązane są przedstawić komisji przetargowej dokument stwierdzający ich tożsamość i obywatelstwo, osoby fizyczne prowadzące działalność gospodarczą - aktualny wydruk z centralnej ewidencji i informacji o działalności gospodarczej, umowę spółki cywilnej.
5. W przypadku uczestnictwa w przetargu pełnomocnika reprezentującego osobę fizyczną należy okazać odpowiednie pełnomocnictwo (w oryginale lub kopii potwierdzonej za zgodność z oryginałem przez notariusza).
6. W przypadku uczestnictwa w przetargu osoby prawnej należy w dniu przetargu dostarczyć wypis z właściwego dla danego podmiotu rejestru. W przypadku reprezentowania osoby prawnej przez pełnomocnika należy okazać odpowiednie pełnomocnictwo (w oryginale lub kopii potwierdzonej za zgodność z oryginałem).
7. W przypadku uczestnictwa w przetargu jednego z małżonków zaleca się przedłożenie pisemnego oświadczenia woli drugiego małżonka o wyrażeniu zgody na nabycie nieruchomości ze środków pochodzących z majątku wspólnego lub złożenie przez osobę przystępującą do przetargu oświadczenia o woli nabycia nieruchomości z majątku osobistego – art. 37 § 1 ustawy z dnia 25 lutego 1964 r. Kodeks rodzinny i opiekuńczy (t.j. Dz.U. z 2023 r. poz. 2809 z późn. zm.).
8. Osoba będąca cudzoziemcem w rozumieniu ustawy z dnia 24 marca 1920 r. o nabywaniu nieruchomości przez cudzoziemców (t.j. Dz. U z 2017 r. poz. 2278) zobowiązana jest w dniu zawarcia umowy przeniesienia własności nieruchomości będącej przedmiotem przetargu, przedłożyć wydane na zasadach i w sytuacjach przewidzianych ustawą zezwolenie właściwego ministra na nabycie tej nieruchomości, chyba że zajdą przewidziane powołaną ustawą przesłanki wyłączające wymóg uzyskania takiego zezwolenia.
9. Przetarg może się odbyć, chociażby zakwalifikowano do przetargu tylko jednego oferenta spełniającego warunki określone w ogłoszeniu i jeżeli choć jeden uczestnik zaoferuje, co najmniej jedno postąpienie powyżej ceny wywoławczej. Po ustaniu zgłaszania postąpień przewodniczący komisji przetargowej wywołuje trzykrotnie ostatnią, najwyższą cenę i zamyka przetarg, a następnie ogłasza imię i nazwisko albo nazwę lub firmę osoby, która przetarg wygrała.
10. Uczestnik przetargu może zaskarżyć czynności związane z jego przeprowadzeniem do Burmistrza Lądka- Zdroju w terminie 7 dni od dnia ogłoszenia wyniku przetargu.
11. Ustalenie terminu zawarcia umowy notarialnej nastąpi do 21 dni licząc od daty przetargu. Burmistrz Lądka-Zdroju zastrzega sobie możliwość odwołania przetargu z uzasadnionej przyczyny oraz odstąpienia od zawarcia umowy w razie stwierdzenia, że przetarg został przeprowadzony z naruszeniem prawa.
12. Cena nieruchomości sprzedawanej w drodze przetargu podlega zapłacie nie później niż do dnia zawarcia umowy przenoszącej własność.
13. Dodatkowe informacje dotyczące nieruchomości oraz warunków jej sprzedaży jak również pełną treść ogłoszenia o przetargu można uzyskać, od poniedziałku do piątku w godzinach pracy Urzędu Miasta i Gminy Lądek-Zdrój, ul. Rynek 31 pokój nr 24, tel. 74 8pokaż telefon, geodeskontaktuj się.
W prawym dolnym rogu dokumentu pieczęć podłużna o treści
Z upoważnienia Burmistrza
Zastępca Burmistrza Lądka-Zdroju Kazimierz Szkudlarek
podpis nieczytelny”
Informację wytworzył: Justyna Pożarycka
Data wytworzenia: 13.02.2026 r.
SZKIC LOKALU MIESZKALNEGO
SZKIC I PIĘTRA BUDYNKU
SZKIC KONDYGNACJI PIWNIC
SZKIC PODDASZA
Kontakt:
Urząd Miasta i Gminy Lądek-Zdrój
tel: (74)pokaż telefon
geodeskontaktuj się
Numer oferty: 12091/3186/OMS
Statystyki ogłoszenia:
Podobne nieruchomości