Nowoczesne 36,5 m² w Bocianowie – idealne dla singla Bydgoszcz, Bocianowo, Hetmańska - 36,66m2
392 262
zł
10 700 zł/m2
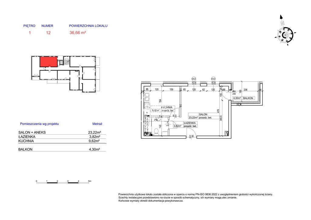
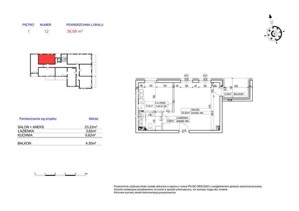
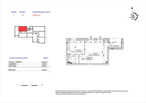
POWIERZCHNIA
36,66 m2
PIĘTRO
1 / 3
LICZBA POKOI
1
PARKING
-
Szczegóły oferty 14871/14150/OMS Data dodania: 28 dni temu
- Kategoria Mieszkania na sprzedaż
- Lokalizacja kujawsko-pomorskie, Bydgoszcz, Bocianowo, Hetmańska
- Powierzchnia całkowita36,66 m2
-
Cena
392 262 zł
- Cena za m2 10 700 zł/m2
- Liczba pokoi 1
- Piętro 1
- Liczba pięter w budynku 3
- Dostępne od31.05.2026r.
- Typ budynkublok
- Rok budowy 2026
- Materiał inny
- Informacje dodatkowe:
- winda
Lokalizacja
Opis oferty
Oferta wysłana z programu dla biur nieruchomości ASARI CRM (asaricrm.com)
Numer oferty: 14871/14150/OMS
Statystyki ogłoszenia:
Podobne nieruchomości