Lokal użytkowy na sprzedaż Łódź, Arturówek, Studencka - 902,0m2
Oferta na wyłączność
6 821 000
zł
7 562,08 zł/m2
POWIERZCHNIA
902,00 m2
PRZEZNACZENIE
hotel-pensjonat
PIĘTRO
-
Szczegóły oferty 932698018
- Kategoria Lokale użytkowe na sprzedaż
- Lokalizacja łódzkie, Łódź, Arturówek, Studencka
- Powierzchnia całkowita902 m2
-
Cena
6 821 000 zł
- Cena za m2 7 562,08 zł/m2
- Rok budowy 1896
- Przeznaczenie hotel-pensjonat
- Okolica:
- park, las, apteka, tramwaj, autobus, pkp, przedszkole, żłobek
Lokalizacja
Opis oferty
Mam przyjemność przedstawić państwu zabytkowy dworek z końca XIX wieku podłożowy w malowniczej okolicy w Łodzi przy ulicy Studenckiej.
To malownicze miejsce położone o kilka minut drogi od centrum miasta tworzy największy w Europie zwarty kompleks leśny, oferujący bez względu na porę roku, cisze i wypoczynek. Sieć turystycznych szlaków pieszych i rowerowych a takie stawy na rzece Bzurze zachęcają do aktywnego i sportowego spędzania czasu. Na terenie parku w odległości 3 km od Pałacu można podziwiać XVIII wieczny klasztor, gdzie latem organizowane sq koncerty organowe, nie cale 10 km dzieli hotel od terenów Międzynarodowych Targów Łódzkich.
Aktualna funkcja: obiekt mieszkalno-pensjonatowy.
Pow. działki ogółem: 3919 mkw.
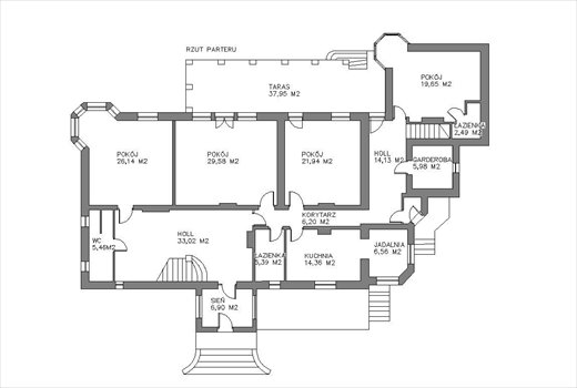
Powierzchnia budynku głównego łącznie 631 m2 (bez korytarzy i schodów).
Powierzchnia budynku gospodarczego 271 m2 (w tym stróżówka, stajnia, warsztat z kanałem, 4 garaże, wozownia, strych użytkowy).
Opis ogólny: budynek częściowo podpiwniczony, ściany murowane z cegły palonej, stropy drewniane i żelbetowe, więźba dachowa drewno, pokrycie blacha ocynk i miedziana, Ogrzewanie: lokalne c-o, olej opałowy.
Obiekt wpisany do rejestru zabytków (elewacja zewnętrzna).
Budynek główny powstał ok. 1896 roku. Po zniszczeniach odbudowany w roku 1984, rekonstrukcja baszty w 1992 roku, obecnie posiada 15 pokoi gościnnych z węzłem sanitarnymi oraz, gabinet, salon, sypialnię, kuchnię, saunę, mini barek w najniższej kondygnacji, dwa pomieszczenia gospodarcze wewnątrz budynku z oknem, łazienkę, dwie oddzielne toalety.
Obiekt usytuowany jest w parku-lesie nad stawem cieku rzeki Bzury, bez sąsiedniej bezpośredniej zabudowy.
Dojazd do posesji oświetloną ulicą asfaltową, także komunikacją miejską.
Jeśli zainteresowało Państwa ta wyjątkowa nieruchomość w fantastycznej okolicy, to zapraszam na prezentację!
Powyższa oferta ma charakter informacyjny i nie stanowi oferty handlowej w rozumieniu art. 66 §1 Kodeksu Cywilnego.
W swojej ofercie posiadamy również dodatkowe usługi takie jak: projektowanie i remonty wnętrz wraz z ich nadzorem, usługę zarządzania najmem oraz doradztwo kredytowe. Zapraszamy do kontaktu, chętnie udzielimy więcej informacji!
Numer oferty: 932698018
Osoba odpowiedzialna zawodowo: Jakub Figielski
Numer oferty: 932698018
Osoba odpowiedzialna zawodowo: Jakub Figielski
Statystyki ogłoszenia:
Podobne nieruchomości