Działka budowlana na sprzedaż Wrocław, Fabryczna - 1210,0m2
POWIERZCHNIA
1 210 m2
RODZAJ DZIAŁKI
budowlana
DROGA DOJAZDOWA
-
Szczegóły oferty 164/7250/OGS Data dodania: dzisiaj
- Kategoria Działki i grunty na sprzedaż
- Lokalizacja dolnośląskie, Wrocław, Fabryczna
-
Powierzchnia
całkowita 1 210 m2
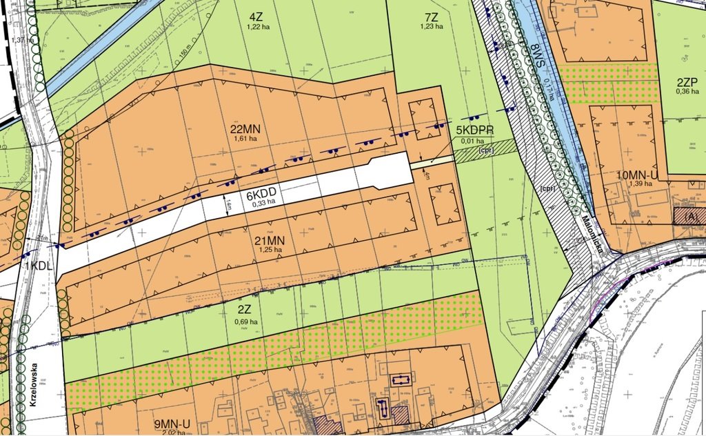
Sprawdź MPZP
- Powierzchnia działki1 210 m2
-
Cena
484 000 zł
- Cena za m2 400 zł/m2
- Rodzaj działki budowlana
- Kształt działki prostokąt
- Mediawoda, prąd
- Ogrodzenie działkibrak
Lokalizacja
Opis oferty
Miejsce na Twój dom – odkryj potencjał tej działki!
Lokalizacja: Wrocław, Fabryczna – Marszowice
Oferujemy działkę budowlaną o powierzchni 1210 m², objętą miejscowym planem zagospodarowania przestrzennego (MPZP), który przewiduje zabudowę mieszkaniową jednorodzinną. To doskonała propozycja zarówno dla osób poszukujących miejsca na budowę wymarzonego domu.
Atuty nieruchomości:
1. Doskonała lokalizacja – zachodnia część Wrocławia, szybki dojazd do centrum (ok. 20 minut).
2. Dogodna komunikacja – w pobliżu liczne linie autobusowe oraz szybki dostęp do Autostradowej Obwodnicy Wrocławia (AOW), co zapewnia sprawne połączenie w każdym kierunku.
3. Bliskość natury – zaledwie 1 km do Lasu Mokrzańskiego, idealnego na spacery i rekreację.
4. Sąsiedztwo – spokojna okolica z zabudową jednorodzinną, dużo zieleni i kameralny charakter osiedla.
5. Dostęp do mediów – woda, prąd oraz kanalizacja znajdują się w głównej ulicy Marszowickiej (kilkadziesiąt metrów od działki).
Działka o regularnym, prostokątnym kształcie oraz płaskim terenie daje szerokie możliwości aranżacyjne i inwestycyjne.
Więcej informacji, porady ekspertów oraz inne atrakcyjne oferty znajdziesz na naszej stronie internetowej.
Marcin Korczowski
T: 782pokaż telefon
Biuro SWN
ul. Ukraińska 1
54-401 Wrocław
T: 71/pokaż telefon
Zobacz więcej ofert na naszej stronie.
Oferta wysłana z programu dla biur nieruchomości ASARI CRM (asaricrm.com)
Numer oferty: 164/7250/OGS
Statystyki ogłoszenia:
Podobne nieruchomości