Działki nad rzeką w Ujeździe – 650 m² i więcej! Ujazd - 650,0m2
Oferta na wyłączność
143 000 zł 220 zł/m2POWIERZCHNIA
650 m2
RODZAJ DZIAŁKI
inna
DROGA DOJAZDOWA
-
Szczegóły oferty ZUR-GS-4134
- Kategoria Działki i grunty na sprzedaż
- Lokalizacja opolskie, Ujazd
-
Powierzchnia
całkowita 650 m2
Sprawdź MPZP
-
Cena
143 000 zł
- Cena za m2 220 zł/m2
- Rodzaj działki inna
- Ogrodzenie działkiinne
Lokalizacja
Opis oferty
|
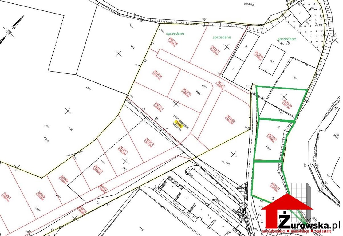
Polecamy Państwu do sprzedaży trzy działki o powierzchni od 650 m2 do 1100 m2 ,położonych koło boiska w miejscowości Ujazd.Działki mają bezpośredni dostęp do linii brzegowej rzeki Kłodnicy w
Ciche i spokojne miejsce, media w drodze.
W Miejscowym Planie Zagospodarowania Przestrzennego posiada symbol 1U, co oznacza zabudowę usługową z dopuszczeniem zabudowy mieszkaniowej jednorodzinnej.
Zostały jeszcze tylko dwie działki przy linii brzegowej! Zapraszam!
Cena do negocjacji.
Zapraszam na prezentację.
Współpracujemy z Opolskim Centrum Kredytowo-Leasingowym zapewniając fachową obsługę doradcy finansowego, który znajdzie dla naszych Klientów najkorzystniejszy kredyt hipoteczny i załatwi nieodpłatnie wszystkie formalności związane z uzyskaniem kredytu.
Podane wyżej informacje zostały pozyskane od właściciela nieruchomości i nie stanowią oferty określonej w art. 66 i następnych Kodeksu Cywilnego, mają one charakter wyłącznie informacyjny.
Aktualny stan prawny i faktyczny może podlegać aktualizacji.
::LINK DO STRONY |
https://www.zurowska.com.pl/oferta/920770
::KONTAKT DO AGENTA |
Beata Juda |
501pokaż telefon |
b.juda@skontaktuj się
Pośrednik odpowiedzialny zawodowo za wykonanie umowy pośrednictwa: Ewa Żurowska (licencja nr: 7292)
|
Oferta wysłana z systemu BCK Galactica
Numer oferty: ZUR-GS-4134
Statystyki ogłoszenia:
Podobne nieruchomości