Działka inwestycyjna pod domy jednorodzinne, 17 598 m² Stary Borek, Stary Borek - 17598,0m2
POWIERZCHNIA
17 598 m2
RODZAJ DZIAŁKI
budowlana
DROGA DOJAZDOWA
polna
Szczegóły oferty 23470
- Kategoria Działki i grunty na sprzedaż
- Lokalizacja zachodniopomorskie, Stary Borek, Stary Borek
-
Powierzchnia
całkowita 17 598 m2
Sprawdź MPZP
-
Cena
2 111 760 zł
- Cena za m2 120 zł/m2
- Rodzaj działki budowlana
- Forma własności własność
- Mediawoda
- Kanalizacjabrak
- Droga dojazdowapolna
- Ogrodzenie działkibrak
Lokalizacja
Opis oferty
Stary Borek - na sprzedaż teren inwestycyjny pod zabudowę domkami jednorodzinnymi.
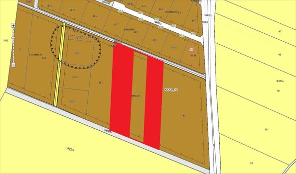
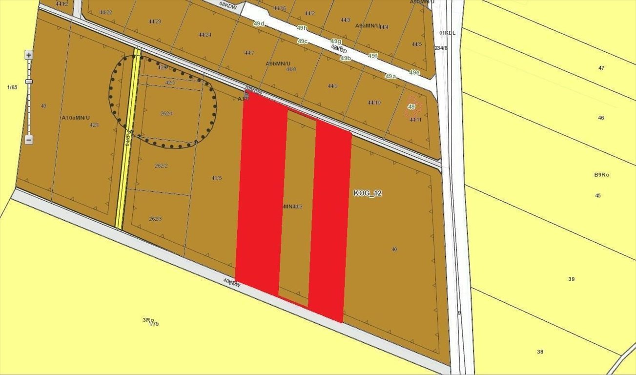
Teren składa się z dwóch niezabudowanych działek budowlanych oddalonych od siebie o ok. 40 m (nie leżących obok siebie) o łącznej powierzchni 1,7598 ha
(pow. pierwszej działki 10.007 m2 i pow. drugiej działki 7.591 m2)
Lokalizacja:
Stary Borek cicha i spokojna miejscowość z dogodnym dojazdem do turystycznego Grzybowa położona ok. 3 km od morza.
Działka położona w kompleksie innych działek budowlanych, oddalona ok. 150 m od głównej drogi Stary Borek - Grzybowo.
Kształt pierwszej działki prostokątny o wymiarach:
długość 213 m x 37 m szerokość
Kształt drugiej działki prostokątny o wymiarach:
długość 213 m x 49 m szerokość
Uzbrojenie terenu:
- woda przy działce
- kanalizacja, woda, gaz i kabel telefoniczny w ulicy głównej ok. 150 m od działki
- prąd ok. 220 m przy wybudowanym budynku przy głównej drodze lub ok. 80 m w linii prostej przez sąsiadującą działki.
Stan prawny:
grunt własność.
Cena do negocjacji.
Funkcja działki w planie zagospodarowywania:
Dla terenu funkcjonalnego oznaczonego na rysunku planu miejscowego symbolem A10a MN/U i A10b MN/U obowiązują następujące ustalenia:
1) przeznaczenie terenu - teren zabudowy mieszkaniowej jednorodzinnej z usługami;
2) zasady zagospodarowania terenu:
a) zabudowa jednorodzinna wolnostojąca, garaż wbudowany, wolnostojący lub połączony z budynkiem gospodarczym; budynek usług i zabudowa gospodarczo-garażowa w tylnej części działki;
b) dopuszcza się lokalizację budynku usługowego jako wolnostojącego w głębi działki lub dobudowanego do budynku mieszkalnego o powierzchni zabudowy do 200 m2;
3) parametry i wskaźniki kształtowania zabudowy oraz zagospodarowania terenu:
a) linie zabudowy nieprzekraczalne 5,0 m, 10,0 m i 12,5 m od linii rozgraniczającej z drogą;
b) maksymalna powierzchnia zabudowy w stosunku do powierzchni działki do 25% powierzchni działki;
c) minimalna powierzchnia terenu biologicznie czynna w stosunku do powierzchni działki 60%; d) wysokość budynku mieszkalnego jednorodzinnego - do 2 kondygnacji (druga kondygnacja w stromym dachu), kalenica główna do 9,0 m; usługowego do 5,0 m; e) geometria dachu budynku mieszkalnego jednorodzinnego - dach dwu lub wielospadowy o kącie nachylenia od 30o do 50o, kalenica główna o długości min. 50% długości dłuższej osi budynku i równoległa do niej; dla pozostałej zabudowy dach dwu lub wielospadowy o kącie nachylenia od 20o do 35o; f) zabudowę garażową i gospodarczą, ogrodzenie działki oraz kolorystykę budynków i pokrycia dachowego (dachów stromych) należy wykonać zgodnie z 7 ustaleń planu miejscowego;
4) zasady ochrony środowiska i przyrody tereny zgodnie z rysunkiem planu miejscowego znajdują się w obszarze specjalnej ochrony ptaków Natura 2000 Wybrzeże Trzebiatowskie (PLB320010). Obowiązują warunki ochrony zgodnie z 9 ustaleń planu miejscowego;
5) zasady ochrony dziedzictwa kulturowego i zabytków na części terenów zgodnie z rysunkiem planu miejscowego, znajduje się strefa W III ograniczonej ochrony stanowisk archeologicznych, polegającej na prowadzeniu interwencyjnych badań archeologicznych w przypadku podejmowania prac ziemnych. Strefa W III obejmuje stanowiska ujęte w ewidencji odpowiedniego organu ds. ochrony zabytków. Obowiązują warunki ochrony zgodnie z 10 ustaleń planu miejscowego;
6) zasady ochrony według przepisów odrębnych jednostka znajduje się w obszarze oraz terenie górniczym Kołobrzeg II utworzonym dla złoża leczniczych wód mineralnych. Obowiązują warunki ochrony zgodnie z 9 ustaleń planu miejscowego; 7) zasady i warunki podziału nieruchomości zachowuje się istniejące wydzielenia działek z możliwością nowych wydzieleń i regulacją granic do parametrów określonych w 11 ustaleń planu miejscowego z uwzględnieniem zakazu wjazdu z drogi powiatowej; min. powierzchnia nowo wydzielanych działek 0,25 ha, min. szerokość frontu działek przyległych do drogi 35,0 m z których jest wjazd;
8) zasady obsługi komunikacyjnej:
a) dojazd z przyległych istniejących dróg z tym, że należy poszerzyć istniejącą drogę (08KDW) o pas szerokości 5,0 m;
b) dążyć do zapewnienia niezbędnej ilości miejsc postojowych samochodów dla mieszkańców i korzystających z usług zgodnie z warunkami ogólnymi zawartymi w 15 ustaleń planu miejscowego;
9) zasady obsługi w infrastrukturę techniczną podłączenie do istniejących sieci; dodatkowe zgodnie z warunkami ogólnymi zawartymi w 16 ustaleń planu miejscowego;
10) ustalenia dotyczące stawek procentowych ustala się stawkę służącą naliczaniu jednorazowej opłaty z tytułu wzrostu wartości nieruchomości, o której mowa w art. 36 ust. 4 ustawy o planowaniu i zagospodarowaniu przestrzennym w wysokości 30%.
Przedstawione informacje nie stanowią oferty w rozumieniu przepisów Kodeksu Cywilnego. Dane dotyczące nieruchomości oparte są na informacjach uzyskanych od właściciela nieruchomości i mogą różnic się od stanu faktycznego. Podane ceny i czynsze mogą ulec zmianie. Zalecamy osobiste zapoznanie się ze stanem nieruchomości. Zapraszamy !
Oferta wysłana z programu IMO dla biur nieruchomości
Numer oferty: 23470
Nr licencji zawodowej: 578
Statystyki ogłoszenia:
Podobne nieruchomości