Działka inwestycyjna 1,26ha przy drodze krajowej 94 Opole, Malina - 12697,0m2
1 500 000
zł
118,14 zł/m2
POWIERZCHNIA
12 697 m2
RODZAJ DZIAŁKI
inna
DROGA DOJAZDOWA
-
Szczegóły oferty 16207
- Kategoria Działki i grunty na sprzedaż
- Lokalizacja opolskie, Opole, Malina
-
Powierzchnia
całkowita 12 697 m2
Sprawdź MPZP
-
Cena
1 500 000 zł
- Cena za m2 118,14 zł/m2
- Rodzaj działki inna
Lokalizacja
Opis oferty
Zobacz już dziś działkę idealną dla inwestorów planujących budowę budynku usługowego.
Lokalizacja:
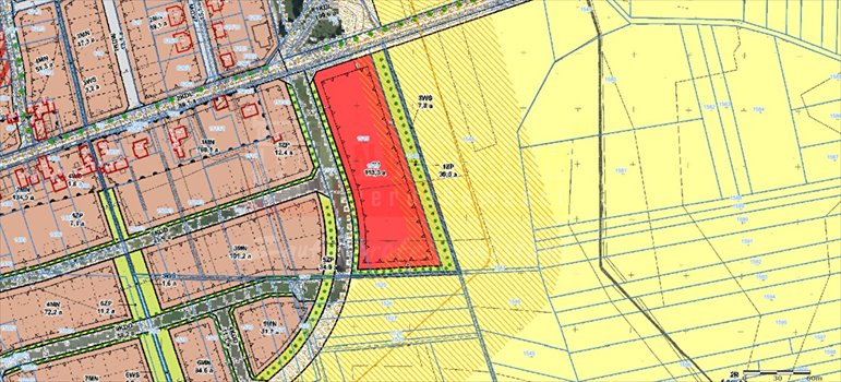
Działka położona jest w Opolu w dzielnicy Malina. Wielkim atutem tej działki jest to, że jest zlokalizowana zaraz przy wyjeździe z Opola na drogę krajową 94, co sprawia, że pomimo bliskości miasta mamy także dostęp do jednej z najważniejszych dróg krajowych w regionie.
Dzielnica Malina jest jedną z najprężniej rozwijających się dzielnic Opola, bądź jednym z pierwszych inwestorów, którzy wyrobią sobie tam imię.
Dane ogólne działki:
Działka ma powierzchnię 12 697m² (ok. 1,26ha). Jest ona objęta Planem Zagospodarowania Przestrzennego z przeznaczeniem na usługi.
Działka jest w kształcie zbliżonym do regularnego prostokąta.
Wszystkie media znajdują się w drodze.
Cena do negocjacji.
Kontakt w sprawie oferty: Wiktor Kruszelnicki (agent pod nadzorem licencji 9322), tel. 512pokaż telefon
Numer oferty: 16207
Numer oferty: 16207
Statystyki ogłoszenia:
Podobne nieruchomości