Działka komercyjna 2,1 ha z planem usługowym w Mstowie Mstów, Mstów - 21157,0m2
POWIERZCHNIA
21 157 m2
RODZAJ DZIAŁKI
inna
DROGA DOJAZDOWA
inne
Szczegóły oferty 10474-188
- Kategoria Działki i grunty na sprzedaż
- Lokalizacja śląskie, Mstów, Mstów
-
Powierzchnia
całkowita 21 157 m2
Sprawdź MPZP
-
Cena
3 068 000 zł
- Cena za m2 145,01 zł/m2
- Rodzaj działki inna
- Mediaprąd
- Droga dojazdowainne
- Ogrodzenie działkibrak
Lokalizacja
Opis oferty
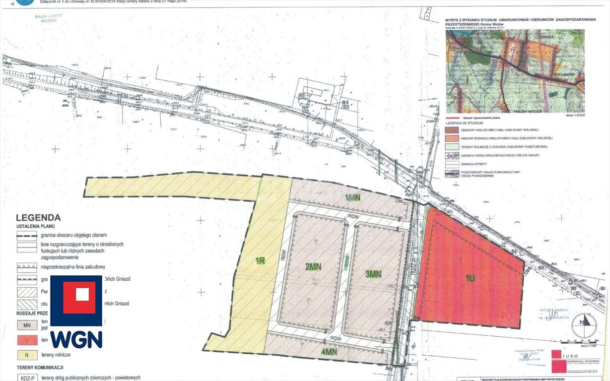
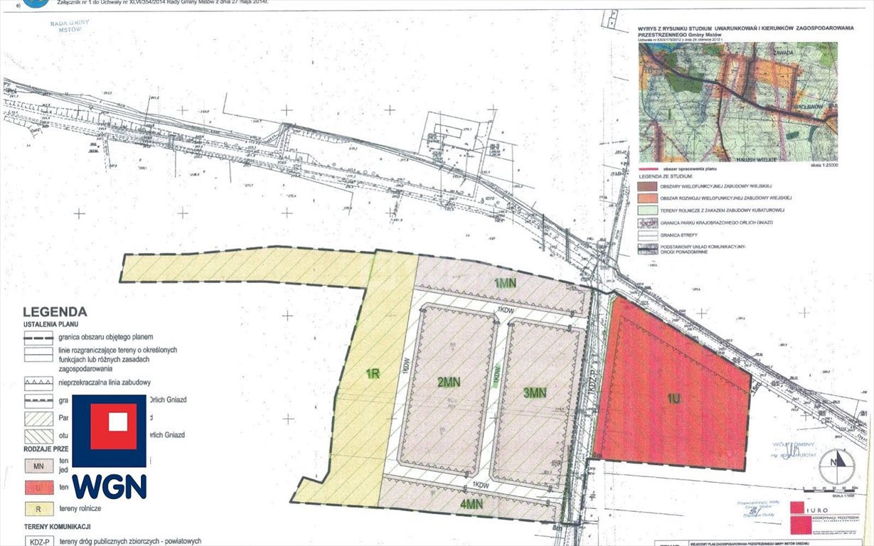
Mstów, działka komercyjna na sprzedaż.
Oferujemy do sprzedaży działkę w Zawadzie o powierzchni 2ha 1577m2.
W roku 2014 został uchwalony plan zagospodarowania przestrzennego wg którego działka oznaczona jest symbolem 1U.
Przeznaczenie podstawowe: tereny pod zabudowę usługową.
Przeznaczenie dopuszczalne: zabudowa mieszkaniowa, garaże, urządzenia infrastruktury technicznej (w tym farmy fotowoltaiczne), stacja benzynowa, komunikacja, parkingi, obiekty małej architektury oraz zieleń urządzona.
Gaz i woda w drodze, prąd w działce.
Zapraszamy!
WGN Nieruchomości
ul. Kopernika 10/12
42-217 Częstochowa
www.czestochowa.wgn.pl
www.hiszpania-wgn.pl
Oferta specjalna biura WGN
Dzwoniąc pytaj o numer oferty 10474 biura 188 z systemu inetonline.pl
Numer oferty: 10474-188
Statystyki ogłoszenia:
Podobne nieruchomości