Działka pod dom jednorodzinny z mediami i możliwością podziału Magdalenka, Konieczna - 3561,0m2
POWIERZCHNIA
3 561 m2
RODZAJ DZIAŁKI
budowlana
DROGA DOJAZDOWA
asfaltowa
Szczegóły oferty EMP-GS-7671
- Kategoria Działki i grunty na sprzedaż
- Lokalizacja mazowieckie, Magdalenka, Konieczna
-
Powierzchnia
całkowita 3 561 m2
Sprawdź MPZP
-
Cena
2 136 600 zł
- Cena za m2 600 zł/m2
- Rodzaj działki budowlana
- Kształt działki trapez
- Droga dojazdowaasfaltowa
- Ogrodzenie działkibrak
Lokalizacja
Opis oferty
Do działki dojedziesz wklejając w Google Maps 52.099796, 20.914139
https://maps.app.goo.gl/jAdi4hwEAu6zzM5o7
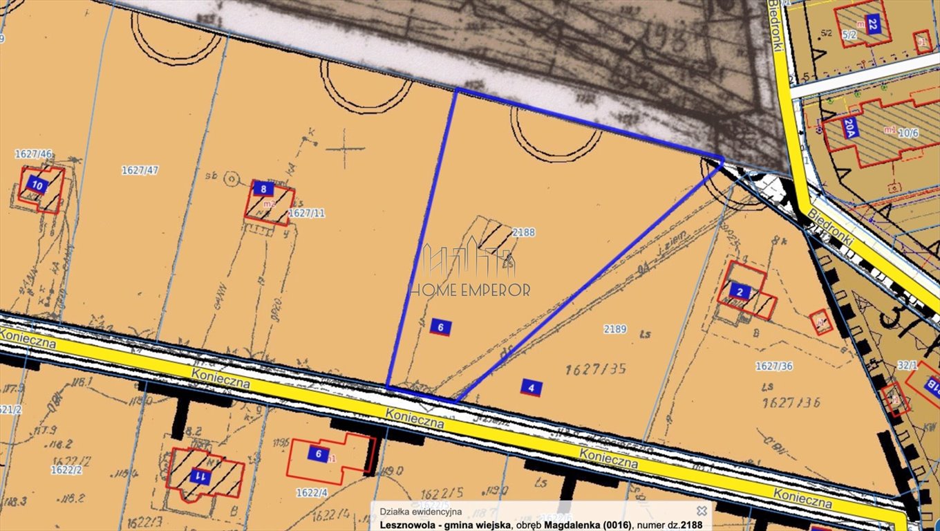
Magdalenka, ulica Konieczna
numer ewidencyjny 2188
Media:
prąd, gaz - w ulicy przy działce
woda, kanalizacja - projektowane sieci
Wymiary
18m x 90m
Działka jest objęta miejscowym planem zagospodarowania przestrzennego pod zabudowę mieszkaniową.
Ustalenia planu (symbol 2 MNe):
- zabudowa mieszkaniowa jednorodzinna ekstensywna na działkach zadrzewionych i zalesionych, wyłącznie w formie domów wolnostojących
- usługi nieuciążliwe, bytowe, wbudowane w budynkach mieszkalnych, jako funkcja uzupełniająca
- maksymalna intensywność zabudowy netto na poziomie 0,2
- minimalna powierzchnię działki wielkości 1800 m 2 , z tolerancją do 10%
- maksymalny procent zabudowy 20%
- minimalny wskaźnik powierzchni biologicznie czynnej 75%
- minimalna szerokość frontu działek budowlanych 25 metrów
- dopuszcza się realizację na jednej działce budowlanej najwyżej jednego budynku mieszkalnego jednorodzinnego.
PKP Nowa Iwiczna - 6,8km
Istnieje możliwość podziału działki na dwie mniejsze.
Zapraszam do kontaktu
Maciej Adamczyk
883pokaż telefon
Biuro pobiera prowizję za pośrednictwo w nabyciu nieruchomości.
Opis oferty zawarty na stronie internetowej sporządzany jest na podstawie oględzin nieruchomości oraz informacji uzyskanych od właściciela, może podlegać aktualizacji i nie stanowi oferty określonej w art. 66 i następnych K.C.
Oferta wysłana z systemu Galactica Virgo
Numer oferty: EMP-GS-7671
Statystyki ogłoszenia:
Podobne nieruchomości