Działka budowlana na sprzedaż Łoziska - 1405,0m2
779 775
zł
555 zł/m2
POWIERZCHNIA
1 405 m2
RODZAJ DZIAŁKI
budowlana
DROGA DOJAZDOWA
utwardzona
Szczegóły oferty 99/14264/OGS
- Kategoria Działki i grunty na sprzedaż
- Lokalizacja mazowieckie, Łoziska
-
Powierzchnia
całkowita 1 405 m2
Sprawdź MPZP
- Powierzchnia działki1 405 m2
-
Cena
779 775 zł
- Cena za m2 555 zł/m2
- Rodzaj działki budowlana
- Forma własności własność
- Kształt działki prostokąt
- Mediagaz, woda, prąd
- Droga dojazdowautwardzona
- Ogrodzenie działkibrak
- Okolica:
- przedszkole, las
Lokalizacja
Opis oferty
OKAZJA! Idealna działka budowlana, wszystkie media, światłowód
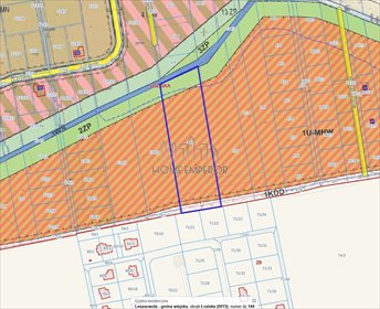
Dane techniczne: Bardzo atrakcyjna działka o powierzchni 1405 m2 idealna dla dewelopera lub indywidualnego inwestora położona w Łoziskach na terenie gminy Lesznowola przy ul. Złotych Łanów. Dojazd do działki oświetloną i utwardzoną drogą.
Kształt- prostokąt, teren płaski. Dostępne media: gaz, energia elektryczna, woda, światłowód bezpośrednio przy działce w ulicy Złotych Łanów.
Teren jest objęty Miejscowym Planem Zagospodarowania Przestrzennego – oznaczony jako tereny zabudowy mieszkaniowej jednorodzinnej w formie domów wolnostojących i dwulokalowych.
Dodatkowe informacje: Szerokość frontu działki ok. 38m głębokość ok. 35m.
Lokalizacja: Atrakcyjnie położona działka we wsi Łoziska w gminie Lesznowola. Komfortowy i szybki dojazd do wszystkich dzielnic Warszawy jak również bardzo dobre położenie względem krajowej sieci komunikacyjnej zapewniają trasy S-2 i nowo otwarta S-7. To miejsce idealne do życia jak i do prowadzenia biznesu. Do najbliższej placówki szkolno-przedszkolnej i sklepu ok. 800m. Doskonała lokalizacja.
---
Przedstawiona wyżej propozycja nie jest ofertą handlową w rozumieniu przepisów prawa lecz ma charakter informacyjny. Villa Mia dokłada starań, aby treści przedstawione w naszych ofertach były aktualne i rzetelne. Dane dotyczące ofert uzyskano na podstawie oświadczeń Sprzedających.
Jako Agencja Nieruchomości pobieramy prowizję.
Oferta wysłana z programu dla biur nieruchomości ASARI CRM (asaricrm.com)
Numer oferty: 99/14264/OGS
Dane techniczne: Bardzo atrakcyjna działka o powierzchni 1405 m2 idealna dla dewelopera lub indywidualnego inwestora położona w Łoziskach na terenie gminy Lesznowola przy ul. Złotych Łanów. Dojazd do działki oświetloną i utwardzoną drogą.
Kształt- prostokąt, teren płaski. Dostępne media: gaz, energia elektryczna, woda, światłowód bezpośrednio przy działce w ulicy Złotych Łanów.
Teren jest objęty Miejscowym Planem Zagospodarowania Przestrzennego – oznaczony jako tereny zabudowy mieszkaniowej jednorodzinnej w formie domów wolnostojących i dwulokalowych.
Dodatkowe informacje: Szerokość frontu działki ok. 38m głębokość ok. 35m.
Lokalizacja: Atrakcyjnie położona działka we wsi Łoziska w gminie Lesznowola. Komfortowy i szybki dojazd do wszystkich dzielnic Warszawy jak również bardzo dobre położenie względem krajowej sieci komunikacyjnej zapewniają trasy S-2 i nowo otwarta S-7. To miejsce idealne do życia jak i do prowadzenia biznesu. Do najbliższej placówki szkolno-przedszkolnej i sklepu ok. 800m. Doskonała lokalizacja.
---
Przedstawiona wyżej propozycja nie jest ofertą handlową w rozumieniu przepisów prawa lecz ma charakter informacyjny. Villa Mia dokłada starań, aby treści przedstawione w naszych ofertach były aktualne i rzetelne. Dane dotyczące ofert uzyskano na podstawie oświadczeń Sprzedających.
Jako Agencja Nieruchomości pobieramy prowizję.
Oferta wysłana z programu dla biur nieruchomości ASARI CRM (asaricrm.com)
Numer oferty: 99/14264/OGS
Statystyki ogłoszenia:
Podobne nieruchomości