Działka inwestycyjna na sprzedaż Łódź, Stanisława Dubois - 13663,0m2
4 500 000
zł
329,36 zł/m2
POWIERZCHNIA
13 663 m2
RODZAJ DZIAŁKI
inwestycyjna
DROGA DOJAZDOWA
asfaltowa
Szczegóły oferty 22/18433/OGS Data dodania: 6 dni temu
- Kategoria Działki i grunty na sprzedaż
- Lokalizacja łódzkie, Łódź, Stanisława Dubois
-
Powierzchnia
całkowita 13 663 m2
Sprawdź MPZP
- Powierzchnia działki13 663 m2
-
Cena
4 500 000 zł
- Cena za m2 329,36 zł/m2
- Dostępne od30.11.2025r.
- Rodzaj działki inwestycyjna
- Forma własności własność
- Kształt działki nieregularny
- Mediagaz, woda, prąd
- Droga dojazdowaasfaltowa
- Ogrodzenie działkibrak
- Okolica:
- las, park
Lokalizacja
Opis oferty
Nowoczesny teren inwestycyjny w sercu łódzkiej strefy technologii – Dubois / Bionanopark
Szukasz miejsca, które realnie pracuje na wartość Twojej inwestycji?
Poznaj teren przy ul. Stanisława Dubois – wyjątkową przestrzeń położoną w sercu Bionanoparku, jednego z najbardziej innowacyjnych punktów na mapie Łodzi.
To tu łączy się nauka, biznes i nowoczesne technologie. Bionanopark oferuje zaplecze badawcze, inkubacyjne i inwestycyjne, przyciągając firmy z branż high-tech, med-tech, IT oraz sektorów przyszłości.
Otoczenie, które inspiruje do rozwoju. W sąsiednich budynkach działają nowoczesne biura, instytucje publiczne i firmy wykorzystujące potencjał tej lokalizacji – m.in. Wojewódzki Fundusz Ochrony Środowiska i Gospodarki Wodnej.
To miejsce, gdzie biznes rozkwita dzięki sprzyjającej infrastrukturze i energii otoczenia.
Dojazd
Zarówno samochodem, jak i komunikacją — szybki, wygodny i bezproblemowy. Teren jest znakomicie skomunikowany z centrum Łodzi i najważniejszymi punktami miasta.
Ten obszar to gotowe środowisko dla działalności gospodarczej i biurowej. Działa tu wiele firm usługowych i technologicznych, co potwierdza atrakcyjność lokalizacji oraz dostęp do funkcjonalnej infrastruktury.
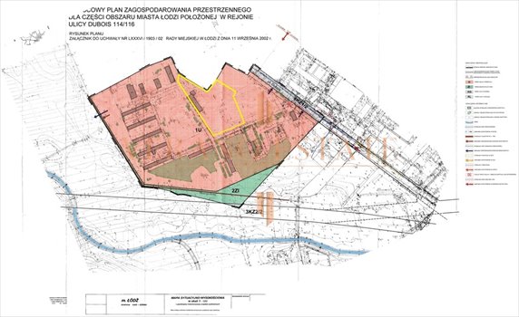
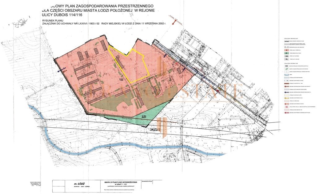
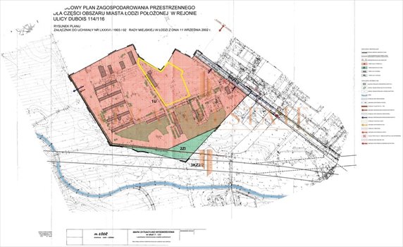
Cały teren jest objęty obowiązującym MPZP – Plan 31, który jasno określa przeznaczenie: zabudowa usługowa.
Daje to inwestorowi pewność i stabilność planistyczną – możesz działać szybko i bez niespodzianek.
Dostęp do pełnej infrastruktury technicznej Media dostępne w drodze:
Gotowy teren pod nowoczesną inwestycję usługową, biurową lub technologiczną.
Lokalizacja, potencjał i środowisko biznesowe sprawiają, że to miejsce pracuje na Twoją korzyść już od pierwszego dnia.
Możliwości inwestycyjne
Lokalizacja w strefie o profilu naukowo-technicznym pozwala na realizację projektów o wysokiej rentowności i dużym potencjale rozwoju.
Możliwe kierunki zabudowy i funkcje:
A. Zabudowa biurowa
Najważniejsze atuty nieruchomości
Zapraszam do kontaktu w celu uzyskania pełnej dokumentacji oraz omówienia potencjału inwestycji.
Maciej Olejnik
501pokaż telefon
Ogłoszenie ma charakter informacyjny i nie stanowi oferty w rozumieniu art. 66 § 1 Kodeksu cywilnego Z pasją do nieruchomości. Z troską o Twój spokój. Verano Estate powstało z myślą o klientach, którzy oczekują czegoś więcej niż standardowej obsługi. Od początku naszym celem było stworzenie marki, która łączy profesjonalizm i skuteczność z prawdziwą kulturą współpracy. Niniejsze ogłoszenie jest wyłącznie informacją i nie stanowi oferty w rozumieniu art. 66 § 1 Kodeksu Cywilnego Oferta wysłana z programu dla biur nieruchomości ASARI CRM (asaricrm.com)
Numer oferty: 22/18433/OGS
Szukasz miejsca, które realnie pracuje na wartość Twojej inwestycji?
Poznaj teren przy ul. Stanisława Dubois – wyjątkową przestrzeń położoną w sercu Bionanoparku, jednego z najbardziej innowacyjnych punktów na mapie Łodzi.
To tu łączy się nauka, biznes i nowoczesne technologie. Bionanopark oferuje zaplecze badawcze, inkubacyjne i inwestycyjne, przyciągając firmy z branż high-tech, med-tech, IT oraz sektorów przyszłości.
Otoczenie, które inspiruje do rozwoju. W sąsiednich budynkach działają nowoczesne biura, instytucje publiczne i firmy wykorzystujące potencjał tej lokalizacji – m.in. Wojewódzki Fundusz Ochrony Środowiska i Gospodarki Wodnej.
To miejsce, gdzie biznes rozkwita dzięki sprzyjającej infrastrukturze i energii otoczenia.
Dojazd
Zarówno samochodem, jak i komunikacją — szybki, wygodny i bezproblemowy. Teren jest znakomicie skomunikowany z centrum Łodzi i najważniejszymi punktami miasta.
Ten obszar to gotowe środowisko dla działalności gospodarczej i biurowej. Działa tu wiele firm usługowych i technologicznych, co potwierdza atrakcyjność lokalizacji oraz dostęp do funkcjonalnej infrastruktury.
Cały teren jest objęty obowiązującym MPZP – Plan 31, który jasno określa przeznaczenie: zabudowa usługowa.
Daje to inwestorowi pewność i stabilność planistyczną – możesz działać szybko i bez niespodzianek.
Dostęp do pełnej infrastruktury technicznej Media dostępne w drodze:
- woda
- prąd
- kanalizacja
- gaz
Gotowy teren pod nowoczesną inwestycję usługową, biurową lub technologiczną.
Lokalizacja, potencjał i środowisko biznesowe sprawiają, że to miejsce pracuje na Twoją korzyść już od pierwszego dnia.
Możliwości inwestycyjne
Lokalizacja w strefie o profilu naukowo-technicznym pozwala na realizację projektów o wysokiej rentowności i dużym potencjale rozwoju.
Możliwe kierunki zabudowy i funkcje:
A. Zabudowa biurowa
- budynki biurowe klasy B+ / A,
- siedziby firm technologicznych, centrów naukowo-rozwojowych, startupów, inkubatorów,
- biura operacyjne i call-center.
- firmy doradcze, kancelarie, centra usług wspólnych,
- firmy szkoleniowe i edukacyjne,
- obiekty instytucjonalne związane z administracją lub działalnością publiczną.
- laboratoria, centra rozwojowe, infrastruktura testowa,
- firmy z sektora life-science, biotechnologii, IT, elektroniki.
- obiekty usługowe obsługujące użytkowników strefy: gastronomia, usługi podstawowe,
- budynki magazynowo-techniczne o nieuciążliwym charakterze,
- parkingi naziemne lub garaże.
Najważniejsze atuty nieruchomości
- lokalizacja w jednej z najważniejszych stref technologicznych Łodzi – Bionanopark,
- objęcie działki aktualnym MPZP – pewność i przewidywalność procesu inwestycyjnego,
- pełne uzbrojenie w media w drodze,
- otoczenie podmiotów biznesowych i instytucji publicznych,
- doskonała komunikacja z centrum miasta i kluczowymi węzłami transportowymi,
- możliwość realizacji szerokiego spektrum projektów usługowych, biurowych i technologicznych.
Zapraszam do kontaktu w celu uzyskania pełnej dokumentacji oraz omówienia potencjału inwestycji.
Maciej Olejnik
501pokaż telefon
Ogłoszenie ma charakter informacyjny i nie stanowi oferty w rozumieniu art. 66 § 1 Kodeksu cywilnego Z pasją do nieruchomości. Z troską o Twój spokój. Verano Estate powstało z myślą o klientach, którzy oczekują czegoś więcej niż standardowej obsługi. Od początku naszym celem było stworzenie marki, która łączy profesjonalizm i skuteczność z prawdziwą kulturą współpracy. Niniejsze ogłoszenie jest wyłącznie informacją i nie stanowi oferty w rozumieniu art. 66 § 1 Kodeksu Cywilnego Oferta wysłana z programu dla biur nieruchomości ASARI CRM (asaricrm.com)
Numer oferty: 22/18433/OGS
Statystyki ogłoszenia:
Podobne nieruchomości