Działka inwestycyjna 31 000 m² w Kamionce z mediami Kamionka - 31000,0m2
2 700 000
zł
87,10 zł/m2
POWIERZCHNIA
31 000 m2
RODZAJ DZIAŁKI
budowlana
DROGA DOJAZDOWA
-
Szczegóły oferty 749159598
- Kategoria Działki i grunty na sprzedaż
- Lokalizacja lubelskie, Kamionka
-
Powierzchnia
całkowita 31 000 m2
Sprawdź MPZP
-
Cena
2 700 000 zł
- Cena za m2 87,10 zł/m2
- Rodzaj działki budowlana
- Ogrodzenie działkibrak
Lokalizacja
Opis oferty
Na sprzedaż działka budowlana o powierzchni 31000 m², zlokalizowana w Kamionce. Idealna do zabudowy inwestycyjnej w spokojnej okolicy, blisko centrum miasta, z dobrym dojazdem.
Szczegóły działki:
- Powierzchnia: 30100 m²
- Szerokość:189 m
- Długość: 222 m
- Kształt: prostokąt
- Media: prąd, gaz
- Dojazd: utwardzony
Informacje:
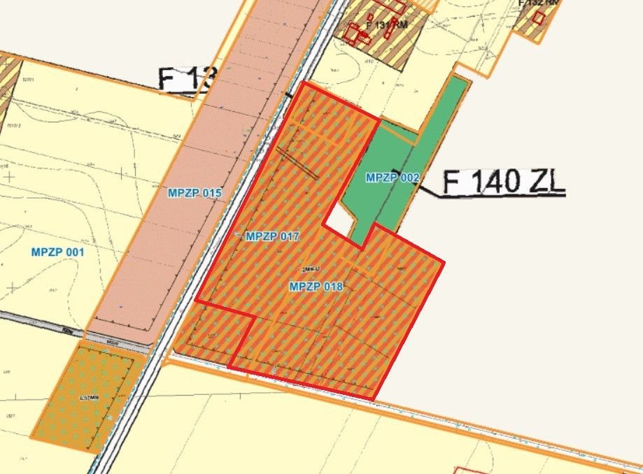
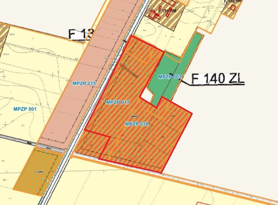
- Przeznaczenie w miejscowym planie zagospodarowania przestrzennego: MN-U
Dla terenów oznaczonych symbolem MN-U ustala się:
1) przeznaczenie terenu: teren zabudowy mieszkaniowej jednorodzinnej lub usług;
2) przeznaczenie wykluczone: teren usług handlu wielkopowierzchniowego, teren usług edukacji, teren
usług kultu religijnego, teren usług bezpieczeństwa i porządku publicznego;
3) na terenach wymienionych w ust. 3, ustala się:
a) lokalizację budynków mieszkalnych, budynków usługowych, budynków mieszkalno- usługowych,
b) lokalizację budynków gospodarczych, gospodarczo-garażowych, garażowych,
c) dopuszczenie lokalizacji budowli takich m.in. jak place zabaw, altany ogrodowe, wiaty, urządzenia
infrastruktury technicznej niezbędnej do obsługi terenów jako lokalnych systemów uzbrojenia, oczka wodne, dojścia, dojazdy, miejsca do parkowania, zieleń urządzona, obiekty dla potrzeb sportu i codziennej rekreacji i inne niezbędne dla funkcjonowania terenów
Lokalizacja: 1500 m od Kamionki
Cena: 2.700 000 PLN
*jeśli potrzebujesz pomocy eksperta w dobraniu finansowania zakupu nieruchomości, skontaktuj się z opiekunem oferty.
Ofertę przygotował/a i prezentuje:
Imię i nazwisko
Tomasz Warakomski tel.
Licencjonowany Pośrednik Nieruchomości
Numer Licencji:
Franczewska Nieruchomości
Zapraszam do kontaktu oraz na prezentację nieruchomości!
Treść niniejszego ogłoszenia nie stanowi oferty handlowej w rozumieniu Kodeksu Cywilnego, ale jest zaproszeniem do współpracy. Dokładamy wszelkich starań, aby każda z ofert była rzetelnie sprawdzona oraz aktualna.
W ofercie nie są przedstawione koszty obsługi transakcji, która wykonywana jest w profesjonalny sposób i zapewnia Państwu pełne bezpieczeństwo. Więcej unikalnych ofert w podobnych kryteriach znajdą Państwo na naszej stronie.
Numer oferty: 749159598
Statystyki ogłoszenia:
Podobne nieruchomości