Działka budowlana na sprzedaż Giby - 2411,0m2
490 000
zł
203,24 zł/m2
POWIERZCHNIA
2 411 m2
RODZAJ DZIAŁKI
budowlana
DROGA DOJAZDOWA
-
Szczegóły oferty TB#880360670
- Kategoria Działki i grunty na sprzedaż
- Lokalizacja podlaskie, Giby
-
Powierzchnia
całkowita 2 411 m2
Sprawdź MPZP
-
Cena
490 000 zł
- Cena za m2 203,24 zł/m2
- Rodzaj działki budowlana
- Rok budowy 1
Lokalizacja
Opis oferty
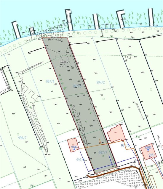
Do kupienia działka budowlana 2 411 m2, położona w Gibach, powiat sejneński, Pojezierze Wschodniosuwalskie. Dodatkowo 1/3 udziału w korcie tenisowym.
Działka tuż przy jeziorze Gieret, ogrodzona z dwóch dłuższych boków, z bezpośrednim dostępem do drogi publicznej. Na działce rosą pojedyncze drzewa: sosny i brzozy. Jest prąd i woda, kanalizacja w trakcie doprowadzania.
Wymiary działki to 20,66x118,41x124,92x20,21m. Możliwość zabudowy jednorodzinnej.
Działka nieobjęta planem urządzenia lasu, brak dodatkowych ograniczeń leśnych.
Dojazd do centrum Sejn samochodem zajmuje 8 min. Dojazd do Suwałk 30 min.
W bliskiej okolicy sklepy spożywczo-przemysłowe, bank, hala sportowa, stadion, agroturystka.
Dostępna pełna dokumentacja (zgody, warunki przyłączenia prądu, zaświadczenia urzędowe).
Świetna propozycja dla osób ceniących ciszę i spokój oraz bezpośredni dostęp do akwenów wodnych.
Zapraszam do obejrzenia na miejscu, zadzwoń od razu i umów się na spotkanie! Oferta biura nieruchomości, więcej propozycji na naszej stronie topbrokers(kropka)pl
Numer oferty: TB#880360670
Osoba odpowiedzialna zawodowo: Aldona Corbrejaud
Działka tuż przy jeziorze Gieret, ogrodzona z dwóch dłuższych boków, z bezpośrednim dostępem do drogi publicznej. Na działce rosą pojedyncze drzewa: sosny i brzozy. Jest prąd i woda, kanalizacja w trakcie doprowadzania.
Wymiary działki to 20,66x118,41x124,92x20,21m. Możliwość zabudowy jednorodzinnej.
Działka nieobjęta planem urządzenia lasu, brak dodatkowych ograniczeń leśnych.
Dojazd do centrum Sejn samochodem zajmuje 8 min. Dojazd do Suwałk 30 min.
W bliskiej okolicy sklepy spożywczo-przemysłowe, bank, hala sportowa, stadion, agroturystka.
Dostępna pełna dokumentacja (zgody, warunki przyłączenia prądu, zaświadczenia urzędowe).
Świetna propozycja dla osób ceniących ciszę i spokój oraz bezpośredni dostęp do akwenów wodnych.
Zapraszam do obejrzenia na miejscu, zadzwoń od razu i umów się na spotkanie! Oferta biura nieruchomości, więcej propozycji na naszej stronie topbrokers(kropka)pl
Numer oferty: TB#880360670
Osoba odpowiedzialna zawodowo: Aldona Corbrejaud
Statystyki ogłoszenia:
Podobne nieruchomości