Działka pod zabudowę szeregową w Charzynie, 3011 m² Charzyno, Wojska Polskiego - 3011,0m2
Oferta na wyłączność
481 760 zł 160 zł/m2POWIERZCHNIA
3 011 m2
RODZAJ DZIAŁKI
budowlana
DROGA DOJAZDOWA
-
Szczegóły oferty 85-GS-Dzj9ONuoY8
- Kategoria Działki i grunty na sprzedaż
- Lokalizacja zachodniopomorskie, Charzyno, Wojska Polskiego
-
Powierzchnia
całkowita 3 011 m2
Sprawdź MPZP
-
Cena
481 760 zł
- Cena za m2 160 zł/m2
- Rodzaj działki budowlana
- Ogrodzenie działkiinne
Lokalizacja
Opis oferty
Wyobraź sobie miejsce, w którym poranny śpiew ptaków zastępuje gwar miasta, a jednocześnie w zaledwie kilkanaście minut możesz znaleźć się nad morzem. Właśnie takie warunki oferuje ta działka w Charzynie – miejscowości, która zyskuje coraz większe uznanie zarówno wśród mieszkańców, jak i inwestorów.
Lokalizacja
Charzyno, gmina Siemyśl, województwo zachodniopomorskie. Spokojna, zielona okolica – a przy tym tylko około 2 km od węzła drogi ekspresowej S6, co zapewnia doskonały dojazd. Brak uciążliwego hałasu drogowego sprawia, że to miejsce sprzyja tworzeniu komfortowej przestrzeni do życia.
Parametry działki
numer: 100/2
powierzchnia: 3011 m²
status: działka niezabudowana, wydane warunki zabudowy
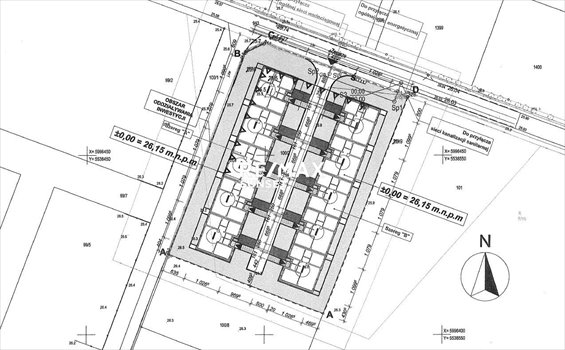
Potencjał inwestycyjny
To teren z ogromnymi możliwościami. Obecne warunki zabudowy przewidują budowę 10 domów jednorodzinnych w zabudowie szeregowej (2 szeregi po 5 budynków), a układ można dostosować do własnej koncepcji. W projekcie uwzględniono drogę wewnętrzną oraz pełną infrastrukturę techniczną.
Najważniejsze parametry:
powierzchnia zabudowy: do 30% powierzchni działki
szerokość elewacji frontowej: do 8 m dla każdego segmentu
wysokość do okapu/gzymsu/attyki: do 6 m
wysokość kalenicy: do 10 m (maksymalnie 2 kondygnacje)
dachy dwu- lub wielospadowe, nachylenie 25°–45°
Infrastruktura i dojazd
Bezpośredni wjazd z drogi publicznej, z możliwością dodatkowego zjazdu z drogi wewnętrznej. Media dostępne na warunkach gestorów (woda, kanalizacja, prąd).
Dlaczego warto
To propozycja dla inwestora, który chce połączyć atuty bliskości Kołobrzegu z ciszą i przestrzenią zielonych terenów. Wydane warunki zabudowy skracają czas rozpoczęcia inwestycji, a lokalizacja daje gwarancję, że przyszli mieszkańcy docenią zarówno komfort codziennego życia, jak i dostęp do pełnej infrastruktury miasta.
Cena
160 zł/m²
Łącznie 481 760 zł za 3011 m²
Zapraszam na prezentację, również online:
W RE/MAX Sunset kupujący nie płaci prowizji!
Marcin Donhöffner - RE/MAX Sunset
Tel.504pokaż telefon
Sprzedaż zaczyna się od dobrego Agenta. Porozmawiajmy.
Kołobrzeg, Szczecin, Świnoujście
Oferta dodana z propertly.io
Nr oferty w biurze: 85-GS-Dzj9ONuoY8
Numer oferty: 85-GS-Dzj9ONuoY8
Numer oferty: 85-GS-Dzj9ONuoY8
Statystyki ogłoszenia:
Podobne nieruchomości