Informacje dodatkowe:
plac zabaw, winda, przyłącze internetowe, przyłącze telewizyjne, garaż
Okolica:
szkoła, park / las, centrum handlowe, sklep spożywczy, przedszkole, autobus, plac zabaw, apteka, żłobek

Lokalizacja

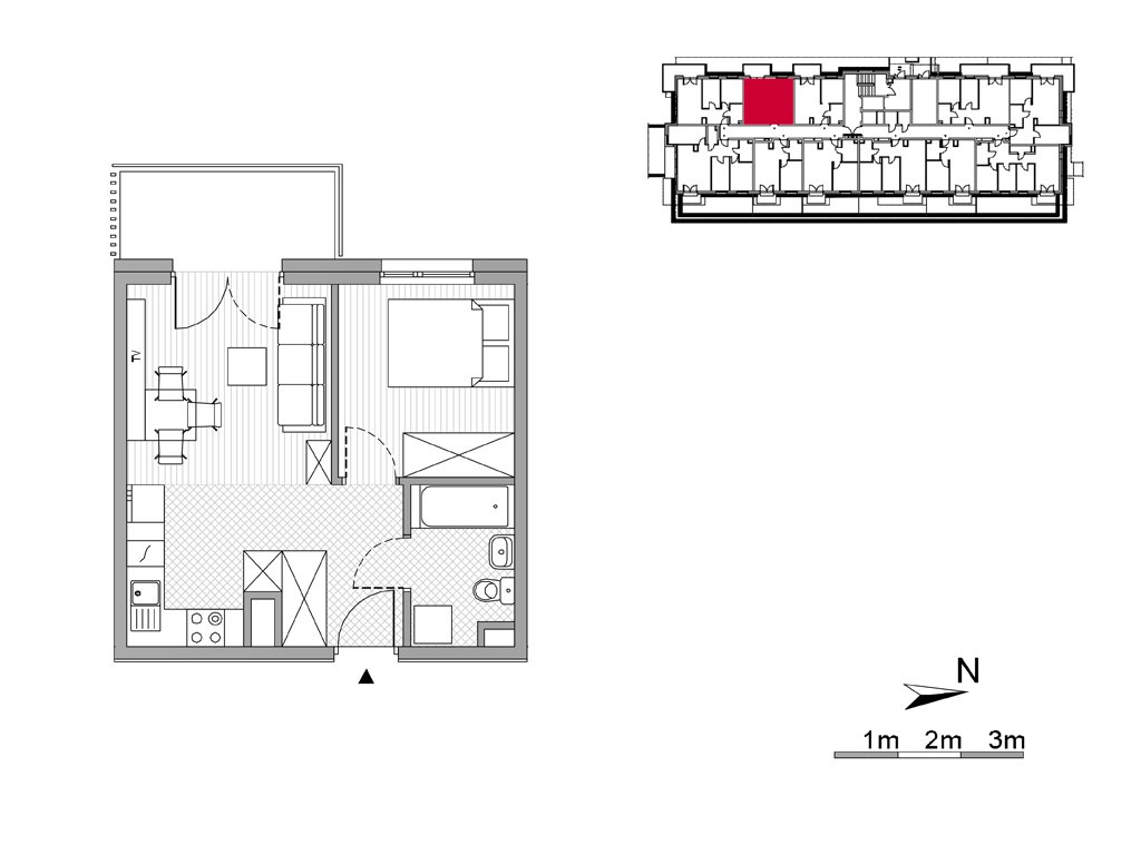
Kraków, Mistrzejowice, Os. Piastów 77

Opis oferty

Ul. Powstańców/os. Piastów budynek D, E oraz F to kolejny etap dobrze znanej i cenionej inwestycji, realizowanej w obrębie krakowskich Mistrzejowic. Północno-wschodnia część miasta harmonijnie łączy rozległe tereny zielone, idealne na spacery i aktywny wypoczynek, z doskonałą komunikacją miejską. W pobliżu znajduje się pętla tramwajowa oraz nowoczesny przystanek kolejowy, który umożliwi szybki dojazd do Dworca Głównego w zaledwie 8 minut. Stale podnosząc standard wykończenia, ze szczególną dbałością o wykonanie, zaprojektowaliśmy nowoczesne, dziewięciopiętrowe budynki o szerokiej gamie metrażowej mieszkań: 32m2 -72m2. W podziemiu umieściliśmy indywidualne boksy garażowe oraz komórki lokatorskie, a dodatkową wygodę w parkowaniu zapewni parking zewnętrzny. Dla wygody przyszłych mieszkańców na terenie osiedla, wybudowano pawilon handlowo – usługowy, gdzie znajdują się takie usługi jak przedszkole i żłobek. Mnogość udogodnień tj. urządzony plac zabaw, lokale usługowe oraz wszelkiego rodzaju placówki dydaktyczne, znajdujące się w najbliższym otoczeniu inwestycji, pozwolą na bezproblemowe i sprawne załatwienie codziennych spraw.
Numer oferty: 10

Statystyki ogłoszenia:

oko

Inne mieszkania dostępne w tej inwestycji

Filtruj oferty x Resetuj filtry
-
-
-
Rzut
Nr ref.
Piętro
Pokoje
Powierzchnia Pow.
Cena
1 2 3 48,77 m2 682 780 zł ul. Powstańców/os. Piastów bud F - 1 - Kraków, Mistrzejowice, Os. Piastów 77, 48.77m2
1 0 3 48,77 m2 682 780 zł ul. Powstańców/os. Piastów bud F - 1 - Kraków, Mistrzejowice, Os. Piastów 77, 48.77m2
100 8 2 37,58 m2 590 006 zł ul. Powstańców/os. Piastów bud F - 100 - Kraków, Mistrzejowice, Os. Piastów 77, 37.58m2
101 8 3 50,48 m2 716 816 zł ul. Powstańców/os. Piastów bud F - 101 - Kraków, Mistrzejowice, Os. Piastów 77, 50.48m2
102 8 2 42,04 m2 643 212 zł ul. Powstańców/os. Piastów bud F - 102 - Kraków, Mistrzejowice, Os. Piastów 77, 42.04m2
103 8 2 36,85 m2 582 230 zł ul. Powstańców/os. Piastów bud F - 103 - Kraków, Mistrzejowice, Os. Piastów 77, 36.85m2
106 8 2 33,58 m2 543 996 zł ul. Powstańców/os. Piastów bud F - 106 - Kraków, Mistrzejowice, Os. Piastów 77, 33.58m2
107 8 2 33,58 m2 543 996 zł ul. Powstańców/os. Piastów bud F - 107 - Kraków, Mistrzejowice, Os. Piastów 77, 33.58m2
108 9 2 34,68 m2 558 348 zł ul. Powstańców/os. Piastów bud F - 108 - Kraków, Mistrzejowice, Os. Piastów 77, 34.68m2
109 9 3 49,16 m2 707 904 zł ul. Powstańców/os. Piastów bud F - 109 - Kraków, Mistrzejowice, Os. Piastów 77, 49.16m2
11 0 2 33,19 m2 524 402 zł ul. Powstańców/os. Piastów bud F - 11 - Kraków, Mistrzejowice, Os. Piastów 77, 33.19m2
111 9 4 59,05 m2 REZERWACJA ul. Powstańców/os. Piastów bud F - 111 - Kraków, Mistrzejowice, Os. Piastów 77, 59.05m2
112 9 2 37,58 m2 590 006 zł ul. Powstańców/os. Piastów bud F - 112 - Kraków, Mistrzejowice, Os. Piastów 77, 37.58m2
113 9 3 50,48 m2 716 816 zł ul. Powstańców/os. Piastów bud F - 113 - Kraków, Mistrzejowice, Os. Piastów 77, 50.48m2
114 9 2 42,04 m2 643 212 zł ul. Powstańców/os. Piastów bud F - 114 - Kraków, Mistrzejowice, Os. Piastów 77, 42.04m2
114 9 2 42,04 m2 643 212 zł ul. Powstańców/os. Piastów bud F - 114 - Kraków, Mistrzejowice, Os. Piastów 77, 42.04m2
115 9 2 36,85 m2 582 230 zł ul. Powstańców/os. Piastów bud F - 115 - Kraków, Mistrzejowice, Os. Piastów 77, 36.85m2
118 9 2 33,58 m2 543 996 zł ul. Powstańców/os. Piastów bud F - 118 - Kraków, Mistrzejowice, Os. Piastów 77, 33.58m2
119 9 2 33,58 m2 543 996 zł ul. Powstańców/os. Piastów bud F - 119 - Kraków, Mistrzejowice, Os. Piastów 77, 33.58m2
12 1 2 34,68 m2 551 412 zł ul. Powstańców/os. Piastów bud F - 12 - Kraków, Mistrzejowice, Os. Piastów 77, 34.68m2
13 1 3 49,16 m2 698 072 zł ul. Powstańców/os. Piastów bud F - 13 - Kraków, Mistrzejowice, Os. Piastów 77, 49.16m2
14 1 3 51,52 m2 721 280 zł ul. Powstańców/os. Piastów bud F - 14 - Kraków, Mistrzejowice, Os. Piastów 77, 51.52m2
15 1 4 59,05 m2 814 890 zł ul. Powstańców/os. Piastów bud F - 15 - Kraków, Mistrzejowice, Os. Piastów 77, 59.05m2
16 1 2 37,58 m2 582 490 zł ul. Powstańców/os. Piastów bud F - 16 - Kraków, Mistrzejowice, Os. Piastów 77, 37.58m2
17 1 3 50,48 m2 706 720 zł ul. Powstańców/os. Piastów bud F - 17 - Kraków, Mistrzejowice, Os. Piastów 77, 50.48m2
18 1 2 42,04 m2 634 804 zł ul. Powstańców/os. Piastów bud F - 18 - Kraków, Mistrzejowice, Os. Piastów 77, 42.04m2
19 1 2 36,85 m2 REZERWACJA ul. Powstańców/os. Piastów bud F - 19 - Kraków, Mistrzejowice, Os. Piastów 77, 36.85m2
2 0 3 51,12 m2 705 456 zł ul. Powstańców/os. Piastów bud F - 2 - Kraków, Mistrzejowice, Os. Piastów 77, 51.12m2
20 1 4 69,06 m2 897 780 zł ul. Powstańców/os. Piastów bud F - 20 - Kraków, Mistrzejowice, Os. Piastów 77, 69.06m2
22 1 2 33,58 m2 537 280 zł ul. Powstańców/os. Piastów bud F - 22 - Kraków, Mistrzejowice, Os. Piastów 77, 33.58m2
23 1 2 33,58 m2 537 280 zł ul. Powstańców/os. Piastów bud F - 23 - Kraków, Mistrzejowice, Os. Piastów 77, 33.58m2
24 2 2 34,68 m2 551 412 zł ul. Powstańców/os. Piastów bud F - 24 - Kraków, Mistrzejowice, Os. Piastów 77, 34.68m2
25 2 3 49,16 m2 698 072 zł ul. Powstańców/os. Piastów bud F - 25 - Kraków, Mistrzejowice, Os. Piastów 77, 49.16m2
26 2 3 51,52 m2 721 280 zł ul. Powstańców/os. Piastów bud F - 26 - Kraków, Mistrzejowice, Os. Piastów 77, 51.52m2
27 2 4 59,05 m2 814 890 zł ul. Powstańców/os. Piastów bud F - 27 - Kraków, Mistrzejowice, Os. Piastów 77, 59.05m2
28 2 2 37,58 m2 582 490 zł ul. Powstańców/os. Piastów bud F - 28 - Kraków, Mistrzejowice, Os. Piastów 77, 37.58m2
29 2 3 50,48 m2 706 720 zł ul. Powstańców/os. Piastów bud F - 29 - Kraków, Mistrzejowice, Os. Piastów 77, 50.48m2
3 0 4 58,47 m2 801 039 zł ul. Powstańców/os. Piastów bud F - 3 - Kraków, Mistrzejowice, Os. Piastów 77, 58.47m2
30 2 2 42,04 m2 634 804 zł ul. Powstańców/os. Piastów bud F - 30 - Kraków, Mistrzejowice, Os. Piastów 77, 42.04m2
31 2 2 36,85 m2 574 860 zł ul. Powstańców/os. Piastów bud F - 31 - Kraków, Mistrzejowice, Os. Piastów 77, 36.85m2
34 2 2 33,58 m2 537 280 zł ul. Powstańców/os. Piastów bud F - 34 - Kraków, Mistrzejowice, Os. Piastów 77, 33.58m2
35 2 2 33,58 m2 537 280 zł ul. Powstańców/os. Piastów bud F - 35 - Kraków, Mistrzejowice, Os. Piastów 77, 33.58m2
36 3 2 34,68 m2 551 412 zł ul. Powstańców/os. Piastów bud F - 36 - Kraków, Mistrzejowice, Os. Piastów 77, 34.68m2
37 3 3 49,16 m2 698 072 zł ul. Powstańców/os. Piastów bud F - 37 - Kraków, Mistrzejowice, Os. Piastów 77, 49.16m2
38 3 3 51,52 m2 REZERWACJA ul. Powstańców/os. Piastów bud F - 38 - Kraków, Mistrzejowice, Os. Piastów 77, 51.52m2
39 3 4 59,05 m2 814 890 zł ul. Powstańców/os. Piastów bud F - 39 - Kraków, Mistrzejowice, Os. Piastów 77, 59.05m2
4 0 2 37,25 m2 573 650 zł ul. Powstańców/os. Piastów bud F - 4 - Kraków, Mistrzejowice, Os. Piastów 77, 37.25m2
40 3 2 37,58 m2 582 490 zł ul. Powstańców/os. Piastów bud F - 40 - Kraków, Mistrzejowice, Os. Piastów 77, 37.58m2
41 3 3 50,48 m2 REZERWACJA ul. Powstańców/os. Piastów bud F - 41 - Kraków, Mistrzejowice, Os. Piastów 77, 50.48m2
42 3 2 42,04 m2 634 804 zł ul. Powstańców/os. Piastów bud F - 42 - Kraków, Mistrzejowice, Os. Piastów 77, 42.04m2
43 3 2 36,85 m2 574 860 zł ul. Powstańców/os. Piastów bud F - 43 - Kraków, Mistrzejowice, Os. Piastów 77, 36.85m2
46 3 2 33,58 m2 537 280 zł ul. Powstańców/os. Piastów bud F - 46 - Kraków, Mistrzejowice, Os. Piastów 77, 33.58m2
47 3 2 33,58 m2 537 280 zł ul. Powstańców/os. Piastów bud F - 47 - Kraków, Mistrzejowice, Os. Piastów 77, 33.58m2
48 4 2 34,68 m2 554 880 zł ul. Powstańców/os. Piastów bud F - 48 - Kraków, Mistrzejowice, Os. Piastów 77, 34.68m2
49 4 3 49,16 m2 702 988 zł ul. Powstańców/os. Piastów bud F - 49 - Kraków, Mistrzejowice, Os. Piastów 77, 49.16m2
5 0 3 50,05 m2 REZERWACJA ul. Powstańców/os. Piastów bud F - 5 - Kraków, Mistrzejowice, Os. Piastów 77, 50.05m2
50 4 3 51,52 m2 726 432 zł ul. Powstańców/os. Piastów bud F - 50 - Kraków, Mistrzejowice, Os. Piastów 77, 51.52m2
51 4 4 59,05 m2 820 795 zł ul. Powstańców/os. Piastów bud F - 51 - Kraków, Mistrzejowice, Os. Piastów 77, 59.05m2
52 4 2 37,58 m2 586 248 zł ul. Powstańców/os. Piastów bud F - 52 - Kraków, Mistrzejowice, Os. Piastów 77, 37.58m2
53 4 3 50,48 m2 711 768 zł ul. Powstańców/os. Piastów bud F - 53 - Kraków, Mistrzejowice, Os. Piastów 77, 50.48m2
54 4 2 42,04 m2 639 008 zł ul. Powstańców/os. Piastów bud F - 54 - Kraków, Mistrzejowice, Os. Piastów 77, 42.04m2
55 4 2 36,85 m2 578 545 zł ul. Powstańców/os. Piastów bud F - 55 - Kraków, Mistrzejowice, Os. Piastów 77, 36.85m2
56 4 4 69,06 m2 904 686 zł ul. Powstańców/os. Piastów bud F - 56 - Kraków, Mistrzejowice, Os. Piastów 77, 69.06m2
57 4 3 45,10 m2 REZERWACJA ul. Powstańców/os. Piastów bud F - 57 - Kraków, Mistrzejowice, Os. Piastów 77, 45.1m2
58 4 2 33,58 m2 540 638 zł ul. Powstańców/os. Piastów bud F - 58 - Kraków, Mistrzejowice, Os. Piastów 77, 33.58m2
59 4 2 33,58 m2 540 638 zł ul. Powstańców/os. Piastów bud F - 59 - Kraków, Mistrzejowice, Os. Piastów 77, 33.58m2
60 5 2 34,68 m2 554 880 zł ul. Powstańców/os. Piastów bud F - 60 - Kraków, Mistrzejowice, Os. Piastów 77, 34.68m2
61 5 3 49,16 m2 702 988 zł ul. Powstańców/os. Piastów bud F - 61 - Kraków, Mistrzejowice, Os. Piastów 77, 49.16m2
62 5 3 51,52 m2 726 432 zł ul. Powstańców/os. Piastów bud F - 62 - Kraków, Mistrzejowice, Os. Piastów 77, 51.52m2
63 5 4 59,05 m2 REZERWACJA ul. Powstańców/os. Piastów bud F - 63 - Kraków, Mistrzejowice, Os. Piastów 77, 59.05m2
64 5 2 37,58 m2 586 248 zł ul. Powstańców/os. Piastów bud F - 64 - Kraków, Mistrzejowice, Os. Piastów 77, 37.58m2
65 5 3 50,48 m2 711 768 zł ul. Powstańców/os. Piastów bud F - 65 - Kraków, Mistrzejowice, Os. Piastów 77, 50.48m2
67 5 2 36,85 m2 578 545 zł ul. Powstańców/os. Piastów bud F - 67 - Kraków, Mistrzejowice, Os. Piastów 77, 36.85m2
68 5 4 69,06 m2 REZERWACJA ul. Powstańców/os. Piastów bud F - 68 - Kraków, Mistrzejowice, Os. Piastów 77, 69.06m2
7 0 2 36,49 m2 565 595 zł ul. Powstańców/os. Piastów bud F - 7 - Kraków, Mistrzejowice, Os. Piastów 77, 36.49m2
70 5 2 33,58 m2 540 638 zł ul. Powstańców/os. Piastów bud F - 70 - Kraków, Mistrzejowice, Os. Piastów 77, 33.58m2
71 5 2 33,58 m2 540 638 zł ul. Powstańców/os. Piastów bud F - 71 - Kraków, Mistrzejowice, Os. Piastów 77, 33.58m2
72 6 2 34,68 m2 554 880 zł ul. Powstańców/os. Piastów bud F - 72 - Kraków, Mistrzejowice, Os. Piastów 77, 34.68m2
73 6 3 49,16 m2 702 988 zł ul. Powstańców/os. Piastów bud F - 73 - Kraków, Mistrzejowice, Os. Piastów 77, 49.16m2
74 6 3 51,52 m2 726 432 zł ul. Powstańców/os. Piastów bud F - 74 - Kraków, Mistrzejowice, Os. Piastów 77, 51.52m2
75 6 4 59,05 m2 820 795 zł ul. Powstańców/os. Piastów bud F - 75 - Kraków, Mistrzejowice, Os. Piastów 77, 59.05m2
76 6 2 37,58 m2 586 248 zł ul. Powstańców/os. Piastów bud F - 76 - Kraków, Mistrzejowice, Os. Piastów 77, 37.58m2
77 6 3 50,48 m2 711 768 zł ul. Powstańców/os. Piastów bud F - 77 - Kraków, Mistrzejowice, Os. Piastów 77, 50.48m2
78 6 2 42,04 m2 639 008 zł ul. Powstańców/os. Piastów bud F - 78 - Kraków, Mistrzejowice, Os. Piastów 77, 42.04m2
79 6 2 36,85 m2 578 545 zł ul. Powstańców/os. Piastów bud F - 79 - Kraków, Mistrzejowice, Os. Piastów 77, 36.85m2
8 0 4 68,62 m2 REZERWACJA ul. Powstańców/os. Piastów bud F - 8 - Kraków, Mistrzejowice, Os. Piastów 77, 68.62m2
82 6 2 33,58 m2 540 638 zł ul. Powstańców/os. Piastów bud F - 82 - Kraków, Mistrzejowice, Os. Piastów 77, 33.58m2
83 6 2 33,58 m2 540 638 zł ul. Powstańców/os. Piastów bud F - 83 - Kraków, Mistrzejowice, Os. Piastów 77, 33.58m2
84 7 2 34,68 m2 558 348 zł ul. Powstańców/os. Piastów bud F - 84 - Kraków, Mistrzejowice, Os. Piastów 77, 34.68m2
85 2 3 49,16 m2 707 904 zł ul. Powstańców/os. Piastów bud F - 85 - Kraków, Mistrzejowice, Os. Piastów 77, 49.16m2
86 7 3 51,52 m2 731 584 zł ul. Powstańców/os. Piastów bud F - 86 - Kraków, Mistrzejowice, Os. Piastów 77, 51.52m2
87 7 4 59,05 m2 826 700 zł ul. Powstańców/os. Piastów bud F - 87 - Kraków, Mistrzejowice, Os. Piastów 77, 59.05m2
88 7 2 37,58 m2 590 006 zł ul. Powstańców/os. Piastów bud F - 88 - Kraków, Mistrzejowice, Os. Piastów 77, 37.58m2
89 7 3 50,48 m2 716 816 zł ul. Powstańców/os. Piastów bud F - 89 - Kraków, Mistrzejowice, Os. Piastów 77, 50.48m2
9 0 3 44,63 m2 REZERWACJA ul. Powstańców/os. Piastów bud F - 9 - Kraków, Mistrzejowice, Os. Piastów 77, 44.63m2
90 7 2 42,04 m2 643 212 zł ul. Powstańców/os. Piastów bud F - 90 - Kraków, Mistrzejowice, Os. Piastów 77, 42.04m2
91 7 2 36,85 m2 582 230 zł ul. Powstańców/os. Piastów bud F - 91 - Kraków, Mistrzejowice, Os. Piastów 77, 36.85m2
92 7 4 69,06 m2 REZERWACJA ul. Powstańców/os. Piastów bud F - 92 - Kraków, Mistrzejowice, Os. Piastów 77, 69.06m2
94 7 2 33,58 m2 543 996 zł ul. Powstańców/os. Piastów bud F - 94 - Kraków, Mistrzejowice, Os. Piastów 77, 33.58m2
95 7 2 33,58 m2 543 996 zł ul. Powstańców/os. Piastów bud F - 95 - Kraków, Mistrzejowice, Os. Piastów 77, 33.58m2
96 8 2 34,68 m2 558 348 zł ul. Powstańców/os. Piastów bud F - 96 - Kraków, Mistrzejowice, Os. Piastów 77, 34.68m2
97 8 3 49,16 m2 707 904 zł ul. Powstańców/os. Piastów bud F - 97 - Kraków, Mistrzejowice, Os. Piastów 77, 49.16m2
99 8 4 59,05 m2 826 700 zł ul. Powstańców/os. Piastów bud F - 99 - Kraków, Mistrzejowice, Os. Piastów 77, 59.05m2

Podobne nieruchomości