Lokal użytkowy na wynajem Kraków, Kazimierz, Starowiślna - 191,0m2
11 300
zł
59,16 zł/m2
POWIERZCHNIA
191,00 m2
PRZEZNACZENIE
usługi
PIĘTRO
parter
Szczegóły oferty 283672 Data dodania: wczoraj
- Kategoria Lokale użytkowe na wynajem
- Lokalizacja małopolskie, Kraków, Kazimierz, Starowiślna
- Powierzchnia całkowita191 m2
-
Cena
11 300 zł
- Cena za m2 59,16 zł/m2
- Piętro Parter
- Rok budowy 1
- Przeznaczenie usługi
Lokalizacja
Opis oferty
**Lokal usługowy do wynajęcia | ul. Starowiślna | 191 m² | 2 witryny
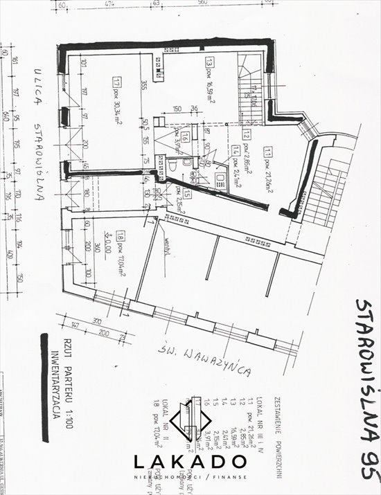
Do wynajęcia atrakcyjny lokal usługowy o łącznej powierzchni ok. 191 m², położony przy jednej z najbardziej ruchliwych ulic Krakowa - ul. Starowiślnej
UKŁAD
Lokal dwupoziomowy:
Parter:ok. 80 m², wys. 3,10 m
* jedna przestronna sala „na przestrzał” kamienicy
* 2 duże witryny i 2 niezależne wejścia od ulicy
* Przyziemie: ok. 111 m², wys. 2,80 m
* sala ok. 41 m² z oknami na podwórze
* sala ok. 70 m² bez okien
* możliwość połączenia pomieszczeń
STANDARD I MEDIA
* 2 łazienki (parter + przyziemie, standard gastronomiczny)
* stolarka z litego drewna mahoniowego
* szyby antywłamaniowe P3+, kraty w oknach od podwórza
* drzwi antywłamaniowe
* energia 230V i 380V (siła)
* instalacja wodno-kanalizacyjna w wielu punktach
* wentylacja grawitacyjna i mechaniczna
* osobny pion wentylacyjny fi 150
* doprowadzony gaz
**PRZEZNACZENIE**
Usługi, handel, biuro, gabinety, fitness, szkoła, showroom, **lekka gastronomia** (do uzgodnienia).
**KOSZTY**
* Czynsz:11 300 zł netto / miesiąc
* VAT
* opłaty do Wspólnoty ok. 700 zł / miesiąc
* media wg zużycia
ATUTY
✔ prestiżowa lokalizacja
✔ bardzo dobra ekspozycja
✔ elastyczny układ
✔ lokal gotowy do użytkowania
Biuro Nieruchomości LAKADO
ul. Monte Cassino 6/6
opiekun oferty: Rafał Potoczny
tel. 790pokaż telefon
Numer oferty: 283672
Osoba odpowiedzialna zawodowo: Rafał Potoczny
Do wynajęcia atrakcyjny lokal usługowy o łącznej powierzchni ok. 191 m², położony przy jednej z najbardziej ruchliwych ulic Krakowa - ul. Starowiślnej
UKŁAD
Lokal dwupoziomowy:
Parter:ok. 80 m², wys. 3,10 m
* jedna przestronna sala „na przestrzał” kamienicy
* 2 duże witryny i 2 niezależne wejścia od ulicy
* Przyziemie: ok. 111 m², wys. 2,80 m
* sala ok. 41 m² z oknami na podwórze
* sala ok. 70 m² bez okien
* możliwość połączenia pomieszczeń
STANDARD I MEDIA
* 2 łazienki (parter + przyziemie, standard gastronomiczny)
* stolarka z litego drewna mahoniowego
* szyby antywłamaniowe P3+, kraty w oknach od podwórza
* drzwi antywłamaniowe
* energia 230V i 380V (siła)
* instalacja wodno-kanalizacyjna w wielu punktach
* wentylacja grawitacyjna i mechaniczna
* osobny pion wentylacyjny fi 150
* doprowadzony gaz
**PRZEZNACZENIE**
Usługi, handel, biuro, gabinety, fitness, szkoła, showroom, **lekka gastronomia** (do uzgodnienia).
**KOSZTY**
* Czynsz:11 300 zł netto / miesiąc
* VAT
* opłaty do Wspólnoty ok. 700 zł / miesiąc
* media wg zużycia
ATUTY
✔ prestiżowa lokalizacja
✔ bardzo dobra ekspozycja
✔ elastyczny układ
✔ lokal gotowy do użytkowania
Biuro Nieruchomości LAKADO
ul. Monte Cassino 6/6
opiekun oferty: Rafał Potoczny
tel. 790pokaż telefon
Numer oferty: 283672
Osoba odpowiedzialna zawodowo: Rafał Potoczny
Statystyki ogłoszenia:
Podobne nieruchomości