Lokal użytkowy na wynajem Lublin, ul. Mełgiewska - 1000,0m2
28 000
zł
28 zł/m2
POWIERZCHNIA
1000,00 m2
PRZEZNACZENIE
magazyn
PIĘTRO
-
Szczegóły oferty 4826/PMW/MAX
- Kategoria Lokale użytkowe na wynajem
- Lokalizacja lubelskie, Lublin, ul. Mełgiewska
- Powierzchnia całkowita1 000 m2
-
Cena
28 000 zł
- Cena za m2 28 zł/m2
- Rok budowy 0
- Przeznaczenie magazyn, warsztat, hala, centrum dystrybucyjne, produkcja, inne
Lokalizacja
Opis oferty
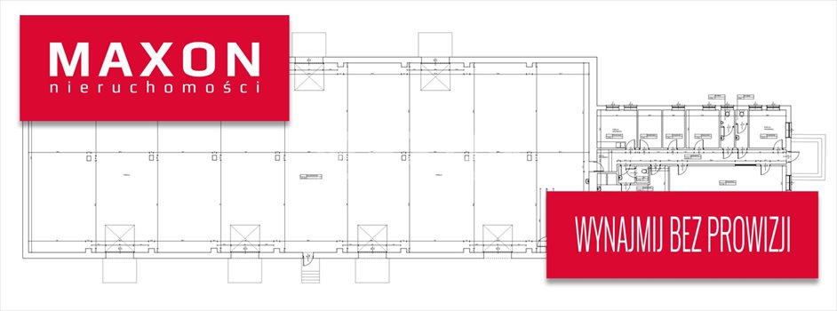
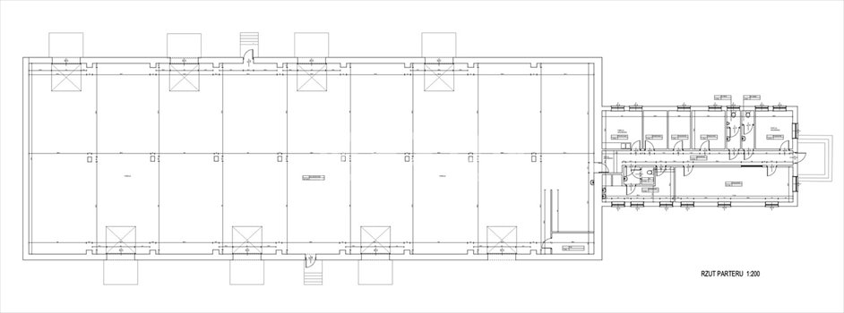
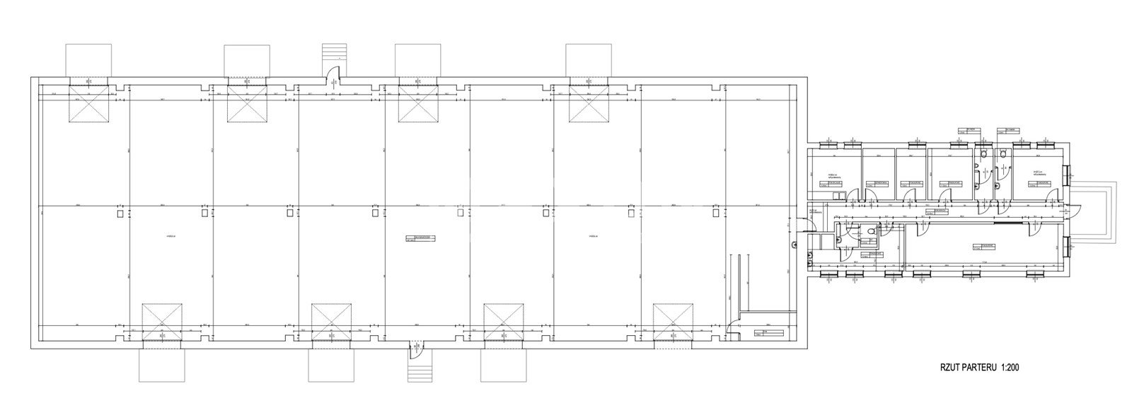
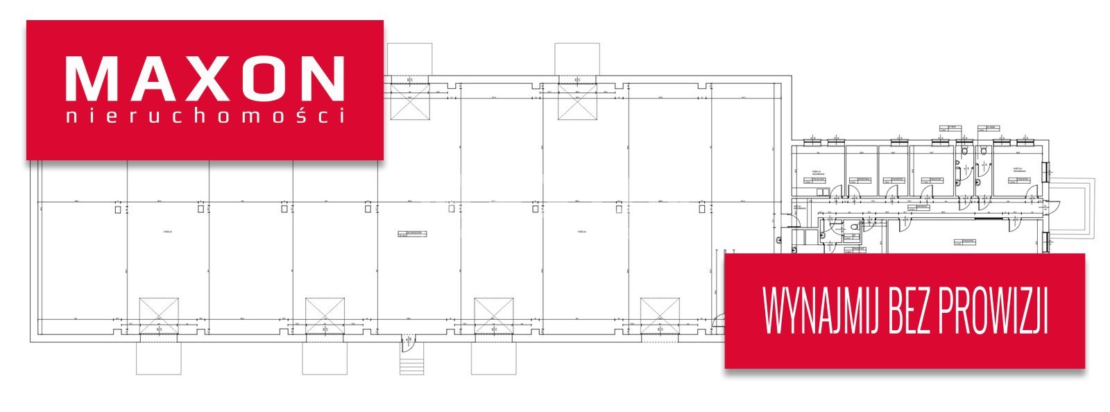
Mamy przyjemność zaprezentować Państwu moduł magazynowy oferujący ok. 1 000 mkw. powierzchni magazynowej wysokiego składowania wraz z ok. 180 mkw. powierzchni biurowo-socjalnej.
Powierzchnia magazynowa spełni oczekiwania najemców ceniących sobie wysoki standard i funkcjonalność:
Lb. doków hydraulicznych: 7Lb. bram z poziomu "zero": 1Wysokość składowania: 10 mPosadzka: bezpyłowa 5 000 kg/mkw Powierzchnia jest dostępną od 01-01-2026 roku na min. 3 letni okres najmu.
Podana cena jest stawką wyjściową za mkw. powierzchni magazynowej i biurowej, do której doliczone zostaną koszty eksploatacyjne oraz media. Dla najemców przewidziane są zachęty finansowe pozwalające na znaczące obniżenie kosztów najmu!
Zapraszamy do kontaktu i na prezentację modułu.
Warunki handlowe
Min. okres najmu (lat) : 3
Standard
Wysokość składowania : 10,00 m
Posadzka : Bezpyłowa
Nośność posadzki kg/mkw. : 5 000 kg/m2
Rampy rozładunkowe : Nie
Cross-dock : Tak
Świetliki : Tak
Bezpieczeństwo
Kontrola dostępu : Tak
Tryskacze : Tak
Bezpieczeństwo budynku
Monitoring : Tak
Ochrona : Tak
Informacje o budynku
Powierzchnia całkowita : 1 180 mkw.
Powierzchnia magazynowa : 1 000 mkw.
Powierzchnia biurowa : 180 mkw.
Dojazd dla TIR : Tak
Plac manewrowy : Tak
Parking TIR : Tak
Media i wyposażenie
Ogrzewanie : Gazowe,
Świadectwo charakterystyki energetycznej
Więcej podobnych ofert nieruchomości na maxon.pl
Link do oferty: http://komercja.maxon.pl/oferta/powierzchniamagazynowa-wynajem-lublin-4826-PMW-MAX
Nasze usługi świadczymy w oparciu o umowę pośrednictwa, która gwarantuje Państwu bezpieczeństwo transakcji oraz pełną opiekę naszego doradcy przez cały okres trwania współpracy. Za wykonaną usługę pobieramy wynagrodzenie zgodnie z warunkami uzgodnionymi w zawartej umowie (za wyjątkiem umów zawartych w programie 0%).
Prezentowane oferty nie stanowią oferty w rozumieniu Kodeksu Cywilnego. Staramy się, aby informacje dotyczące oferowanych obiektów były możliwie dokładne, kompletne i aktualne. Ze względu na okoliczności, iż informacje te pochodzą od osób trzecich i część z nich nie zawsze daje się zweryfikować, MAXON Nieruchomości Sp. z o.o. nie ponosi odpowiedzialności za ich dokładność, kompletność i aktualność.
Numer oferty: 4826/PMW/MAX
Osoba odpowiedzialna zawodowo: Damian Rożek
Nr licencji zawodowej: 1
Numer oferty: 4826/PMW/MAX
Osoba odpowiedzialna zawodowo: Damian Rożek
Nr licencji zawodowej: 1
Statystyki ogłoszenia:
Podobne nieruchomości