Lokal użytkowy na wynajem Modlniczka - 400,0m2
POWIERZCHNIA
400,00 m2
PRZEZNACZENIE
-
PIĘTRO
parter / 2
Szczegóły oferty ZEF-LW-1159 Data dodania: 2 dni temu
- Kategoria Lokale użytkowe na wynajem
- Lokalizacja małopolskie, Modlniczka
- Powierzchnia całkowita400 m2
-
Cena
24 000 zł
- Cena za m2 60 zł/m2
- Piętro Parter
- Liczba pięter w budynku 2
- Informacje dodatkowe:
- klimatyzacja, ogrzewanie
Lokalizacja
Opis oferty
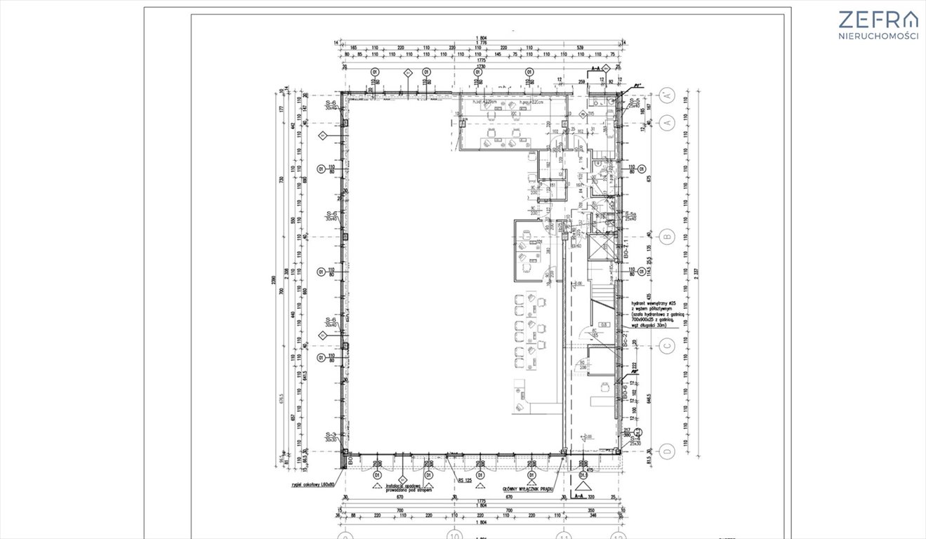
Lokal handlowo-usługowy 400m Modlniczka/obwodnica.
Lokal frontowy, z witryną na parterze o powierzchni około 400 m2 składa się z otwartej przestrzeni do własnej aranżacji, dwóch pokoi, toalet i zaplecza socjalnego.
Atuty:
- atrakcyjna lokalizacja
- duże witryny
- klimatyzacja
- duży parking ( 13 miejsc parkingowych w czynszu)
Idealne na działalność handlową, usługową, wystawową.
Lokalizacja: Modlniczka, obok obwodnicy.
Cena: 24 000 zł netto + media
Opłata eksploatacyjna :1600 zł (4zł - m2)
Masz więcej pytań? Chcesz obejrzeć? Zadzwoń!
Kontakt: Piotr Górak
tel: +48 7pokaż telefon
Oferta wysłana z systemu Galactica Virgo
Numer oferty: ZEF-LW-1159
Statystyki ogłoszenia:
Podobne nieruchomości