Lokal użytkowy na wynajem Gdynia, Orłowo, Jodłowa - 87,0m2
5 230
zł
60,11 zł/m2
POWIERZCHNIA
87,00 m2
PRZEZNACZENIE
inne
PIĘTRO
3 / 3
Szczegóły oferty 3M396878
- Kategoria Lokale użytkowe na wynajem
- Lokalizacja pomorskie, Gdynia, Orłowo, Jodłowa
- Powierzchnia całkowita87 m2
-
Cena
5 230 zł
- Cena za m2 60,11 zł/m2
- Piętro 3
- Liczba pięter w budynku 3
- Przeznaczenie inne
Lokalizacja
Opis oferty
Lokal komercyjny na wynajem - Gdynia Orłowo, ul. Jodłowa 1 | 87 m²
Szukasz przestrzeni, która łączy komfort, funkcjonalność i prestiżową lokalizację? Mamy dla Ciebie wyjątkowy lokal komercyjny przy ul. Jodłowej 1 w Gdyni Orłowie - gotowy, by stać się nowym miejscem Twojej działalności.
Lokalizacja:
Ul. Jodłowa to spokojna, boczna uliczka w samym sercu Orłowa - jednej z najbardziej pożądanych i reprezentacyjnych dzielnic Gdyni.
To miejsce z dala od hałaśliwych arterii, a jednocześnie z szybkim dostępem do centrum Gdyni, Sopotu i obwodnicy Trójmiasta.
W pobliżu znajdują się eleganckie wille, dużo zieleni, molo orłowskie, sklepy, punkty usługowe oraz przystanki komunikacji miejskiej i SKM.
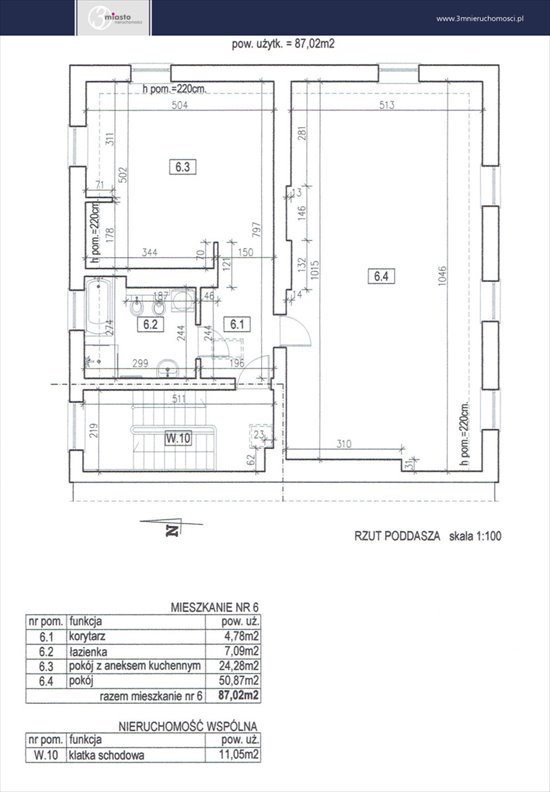
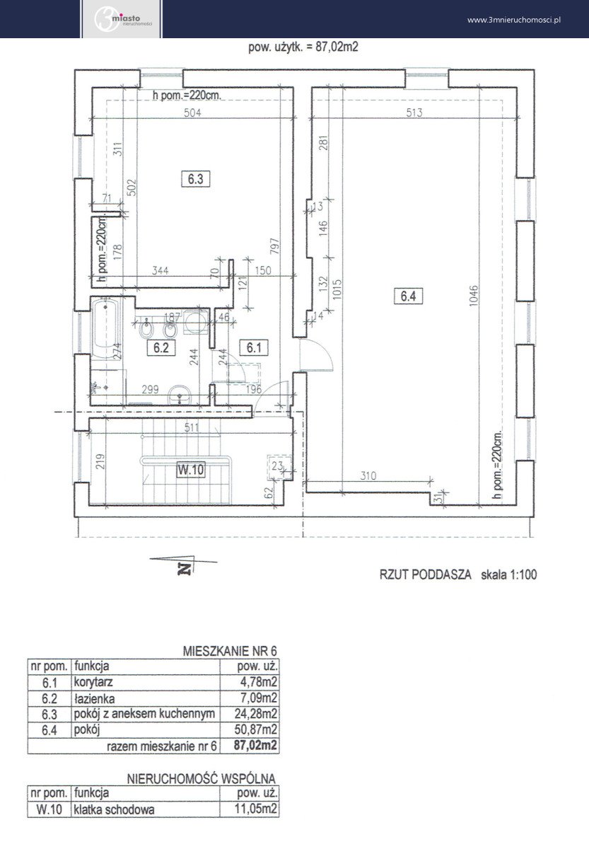
Powierzchnia i układ:
Całkowita powierzchnia lokalu to 87 m², w tym:
• Duży, otwarty pokój - 50 m²
• Mniejszy pokój - 25 m²
• Przestronna łazienka
Lokal w bardzo dobrym stanie technicznym - gotowy do natychmiastowego użytkowania.
Idealne przeznaczenie:
• Biuro (np. architektoniczne, reklamowe, informatyczne)
• Gabinety terapeutyczne lub lekarskie
• Lokal usługowy
• Studio fotograficzne lub projektowe
• Szkoła tańca, zajęcia ruchowe, przestrzeń kreatywna
Udogodnienia:
• Cicha i spokojna okolica - sprzyjająca pracy i skupieniu
• Bezpośredni dostęp z poziomu gruntu
• Dogodna możliwość parkowania przy budynku
• Kameralne sąsiedztwo
Warunki najmu:
• Czynsz: 5230 zł miesięcznie
• Kaucja: 10460 zł
• Wszystkie media wliczone w czynsz najmu
Jeśli szukasz przestrzeni z charakterem w jednej z najlepszych lokalizacji Gdyni - ten lokal będzie strzałem w dziesiątkę.
Zadzwoń lub napisz, aby umówić się na prezentację.
Zobacz lokal na żywo i sprawdź, jak może rozwinąć Twoją działalność.
Powyższa oferta ma charakter informacyjny i nie stanowi oferty handlowej w rozumieniu art. 66 §1 Kodeksu Cywilnego
Numer oferty: 3M396878
Szukasz przestrzeni, która łączy komfort, funkcjonalność i prestiżową lokalizację? Mamy dla Ciebie wyjątkowy lokal komercyjny przy ul. Jodłowej 1 w Gdyni Orłowie - gotowy, by stać się nowym miejscem Twojej działalności.
Lokalizacja:
Ul. Jodłowa to spokojna, boczna uliczka w samym sercu Orłowa - jednej z najbardziej pożądanych i reprezentacyjnych dzielnic Gdyni.
To miejsce z dala od hałaśliwych arterii, a jednocześnie z szybkim dostępem do centrum Gdyni, Sopotu i obwodnicy Trójmiasta.
W pobliżu znajdują się eleganckie wille, dużo zieleni, molo orłowskie, sklepy, punkty usługowe oraz przystanki komunikacji miejskiej i SKM.
Powierzchnia i układ:
Całkowita powierzchnia lokalu to 87 m², w tym:
• Duży, otwarty pokój - 50 m²
• Mniejszy pokój - 25 m²
• Przestronna łazienka
Lokal w bardzo dobrym stanie technicznym - gotowy do natychmiastowego użytkowania.
Idealne przeznaczenie:
• Biuro (np. architektoniczne, reklamowe, informatyczne)
• Gabinety terapeutyczne lub lekarskie
• Lokal usługowy
• Studio fotograficzne lub projektowe
• Szkoła tańca, zajęcia ruchowe, przestrzeń kreatywna
Udogodnienia:
• Cicha i spokojna okolica - sprzyjająca pracy i skupieniu
• Bezpośredni dostęp z poziomu gruntu
• Dogodna możliwość parkowania przy budynku
• Kameralne sąsiedztwo
Warunki najmu:
• Czynsz: 5230 zł miesięcznie
• Kaucja: 10460 zł
• Wszystkie media wliczone w czynsz najmu
Jeśli szukasz przestrzeni z charakterem w jednej z najlepszych lokalizacji Gdyni - ten lokal będzie strzałem w dziesiątkę.
Zadzwoń lub napisz, aby umówić się na prezentację.
Zobacz lokal na żywo i sprawdź, jak może rozwinąć Twoją działalność.
Powyższa oferta ma charakter informacyjny i nie stanowi oferty handlowej w rozumieniu art. 66 §1 Kodeksu Cywilnego
Numer oferty: 3M396878
Statystyki ogłoszenia:
Podobne nieruchomości