Nowoczesny lokal 112 m² na wynajem w Piastowie Białystok, Piasta, Warszawska - 111,9m2
8 393
zł
75 zł/m2
POWIERZCHNIA
111,90 m2
PRZEZNACZENIE
handel
PIĘTRO
parter / 6
Szczegóły oferty 2597/4158/OLW
- Kategoria Lokale użytkowe na wynajem
- Lokalizacja podlaskie, Białystok, Piasta, Warszawska
- Powierzchnia całkowita111,90 m2
-
Cena
8 393 zł
- Cena za m2 75 zł/m2
- Piętro Parter
- Liczba pięter w budynku 6
- Dostępne od1.10.2025r.
- Rok budowy 2026
- Forma własności własność
- Przeznaczenie handel, usługi
- Informacje dodatkowe:
- klimatyzacja, ochrona, sieć komputerowa
Lokalizacja
Opis oferty
Nowy lokal, świetna lokalizacja.
Przestronny i nowoczesny lokal użytkowy przeznaczony pod działalność handlową, usługową w miejscowości Białystok w dzielnicy Piasta.
Lokal położony na parterze w budynku czteropiętrowym.
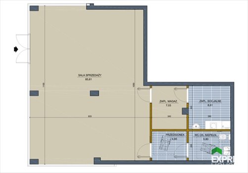
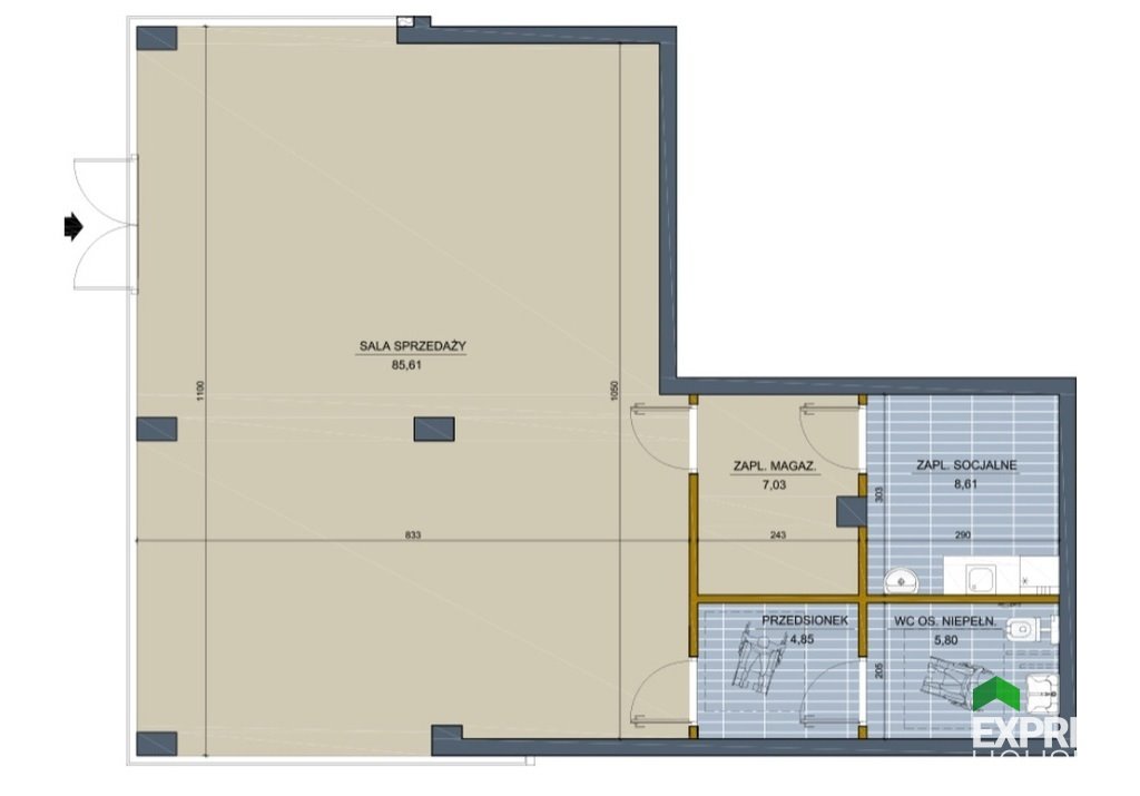
Na powierzchni 111.90 m2 znajdują się sala sprzedaży, zaplecze socjalne, zaplecze magazynowe, przedsionek oraz WC.
Wysokość lokalu: 2.8m2
Widok na: na ulicę, zabudowania niskie.
Okna wychodzące na: południe.
Komunikacja: linie autobusowe nr 2, 7, 8, 21
Dostępne media: prąd, siła, internet.
Przestrzeń jest przeznaczona do adaptacji pod dowolną działalność o charakterze handlowym, usługowym albo biurowym.
Termin ukończenia inwestycji IV kwartał 2026 roku.
Piękny lokal, super lokalizacja- zarezerwuj swój lokal już teraz.
Koszt najmu: 8400 PLN NETTO + czynsz administracyjny + opłaty licznikowe wg zużycia.
Wysokość kaucji zabezpieczającej: 8400 PLN
Numer oferty w biurze nieruchomości: 2597/4158/OLW
------ ZADZWOŃ JUŻ DZIŚ I UMÓW SIĘ NA BEZPŁATNĄ PREZENTACJĘ ------
------ WYNAJMUJ BEZPIECZNIE Z EXPRESS HOUSE ------ Oferta wysłana z programu dla biur nieruchomości ASARI CRM (asaricrm.com)
Numer oferty: 2597/4158/OLW
Przestronny i nowoczesny lokal użytkowy przeznaczony pod działalność handlową, usługową w miejscowości Białystok w dzielnicy Piasta.
Lokal położony na parterze w budynku czteropiętrowym.
Na powierzchni 111.90 m2 znajdują się sala sprzedaży, zaplecze socjalne, zaplecze magazynowe, przedsionek oraz WC.
Wysokość lokalu: 2.8m2
Widok na: na ulicę, zabudowania niskie.
Okna wychodzące na: południe.
Komunikacja: linie autobusowe nr 2, 7, 8, 21
Dostępne media: prąd, siła, internet.
Przestrzeń jest przeznaczona do adaptacji pod dowolną działalność o charakterze handlowym, usługowym albo biurowym.
Termin ukończenia inwestycji IV kwartał 2026 roku.
Piękny lokal, super lokalizacja- zarezerwuj swój lokal już teraz.
Koszt najmu: 8400 PLN NETTO + czynsz administracyjny + opłaty licznikowe wg zużycia.
Wysokość kaucji zabezpieczającej: 8400 PLN
Numer oferty w biurze nieruchomości: 2597/4158/OLW
------ ZADZWOŃ JUŻ DZIŚ I UMÓW SIĘ NA BEZPŁATNĄ PREZENTACJĘ ------
------ WYNAJMUJ BEZPIECZNIE Z EXPRESS HOUSE ------ Oferta wysłana z programu dla biur nieruchomości ASARI CRM (asaricrm.com)
Numer oferty: 2597/4158/OLW
Statystyki ogłoszenia: