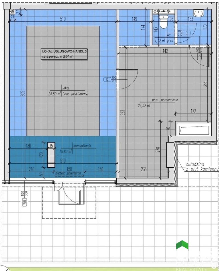
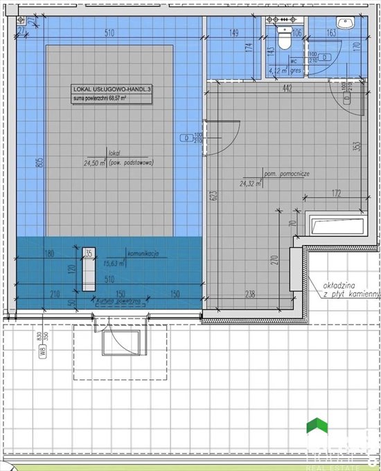
Lokal użytkowy na wynajem Białystok, Os. Piasta, Jana Klemensa Branickiego - 68,57m2
4 200
zł
61,25 zł/m2
POWIERZCHNIA
68,57 m2
PRZEZNACZENIE
handel
PIĘTRO
parter / 10
Szczegóły oferty 2608/4158/OLW
- Kategoria Lokale użytkowe na wynajem
- Lokalizacja podlaskie, Białystok, Os. Piasta, Jana Klemensa Branickiego
- Powierzchnia całkowita68,57 m2
-
Cena
4 200 zł
- Cena za m2 61,25 zł/m2
- Piętro Parter
- Liczba pięter w budynku 10
- Dostępne od4.01.2026r.
- Rok budowy 2015
- Forma własności własność
- Przeznaczenie handel, usługi
- Informacje dodatkowe:
- klimatyzacja, ochrona, sieć komputerowa
Lokalizacja
Opis oferty
Do wynajęcia lokal usługowo-handlowy – 68.57 m² – parter – prestiżowa lokalizacja.
Najważniejsze atuty nieruchomości:
Lokalizacja:
Prestiżowy apartamentowiec, bardzo dobrze widoczny i położony w bezpośrednim sąsiedztwie ulicy Orzeszkowej — lokal idealny pod usługi, handel, biuro, gabinet lub działalność kosmetyczno-medyczną.
Dostępność: od 31.01.2026 r.
Koszt najmu: 4200 PLN NETTO + czynsz administracyjny + opłaty licznikowe wg zużycia.
Wysokość kaucji zabezpieczającej: 4200 PLN
Zadzwoń i zapytaj nas o szczegóły.
Numer oferty w biurze nieruchomości: 2608/4158/OLW
------ ZADZWOŃ JUŻ DZIŚ I UMÓW SIĘ NA BEZPŁATNĄ PREZENTACJĘ ------
------ WYNAJMUJ BEZPIECZNIE Z EXPRESS HOUSE ------ Oferta wysłana z programu dla biur nieruchomości ASARI CRM (asaricrm.com)
Numer oferty: 2608/4158/OLW
Najważniejsze atuty nieruchomości:
- duża witryna – idealna ekspozycja dla Twojego biznesu
- otwarta przestrzeń dająca łatwą możliwość aranżacji
- wydzielone WC oraz pomieszczenie socjalne
- klimatyzacja zapewniająca komfort pracy
- nowoczesny budynek
- ogrzewanie centralne
- dojazd asfaltowy
- dostępne miejsca parkingowe (na ulicy w pobliżu lokalu)
Lokalizacja:
Prestiżowy apartamentowiec, bardzo dobrze widoczny i położony w bezpośrednim sąsiedztwie ulicy Orzeszkowej — lokal idealny pod usługi, handel, biuro, gabinet lub działalność kosmetyczno-medyczną.
Dostępność: od 31.01.2026 r.
Koszt najmu: 4200 PLN NETTO + czynsz administracyjny + opłaty licznikowe wg zużycia.
Wysokość kaucji zabezpieczającej: 4200 PLN
Zadzwoń i zapytaj nas o szczegóły.
Numer oferty w biurze nieruchomości: 2608/4158/OLW
------ ZADZWOŃ JUŻ DZIŚ I UMÓW SIĘ NA BEZPŁATNĄ PREZENTACJĘ ------
------ WYNAJMUJ BEZPIECZNIE Z EXPRESS HOUSE ------ Oferta wysłana z programu dla biur nieruchomości ASARI CRM (asaricrm.com)
Numer oferty: 2608/4158/OLW
Statystyki ogłoszenia:
Podobne nieruchomości