Lokal użytkowy na wynajem Warszawa, Praga-Południe, Kaleńska - 57,8m2
3 150
zł
54,50 zł/m2
POWIERZCHNIA
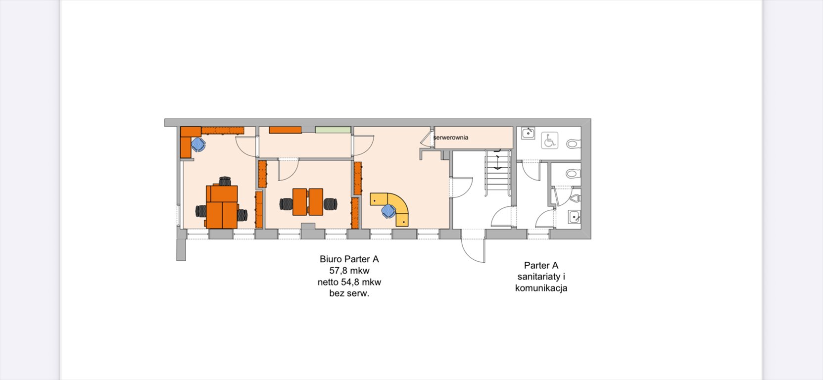
57,80 m2
PRZEZNACZENIE
biuro
PIĘTRO
parter / 1
Szczegóły
- Kategoria Lokale użytkowe na wynajem
- Lokalizacja mazowieckie, Warszawa, Praga-Południe, Kaleńska
- Powierzchnia całkowita57,80 m2
-
Cena
3 150 zł
-
Czynsz administracyjny
1 050 zł
- Cena za m2 54,50 zł/m2
- Liczba pomieszczeń 3
- Piętro Parter
- Liczba pięter w budynku 1
- Przeznaczenie biuro
- Informacje dodatkowe:
- instalacja p-poż., kanalizacja, klimatyzacja, ochrona, sieć komputerowa, wentylacja, zaplecze socjalne
- Okolica:
- autobus, tramwaj
Lokalizacja
Opis oferty
BIURO KALEŃSKA W POBLIZU RONDA WIATRACZNA
Klimatyczne biuro w budynku starej fabryki na Pradze Południe obok węzła Rondo Wiatraczna/
Powierzchnia 57,8 m2, trzy pokoje. Parter w budynku jednopiętrowym.
Teren monitorowany , łatwy dojazd, brak strefy płatnego parkowania, cicha lokalizacja.
Gotowe do wydania.
Czynsz 3150 PLN netto miesięcznie obejmuje:
Internet WIFI, biuro umeblowane dla 7 osób, z możliwością modyfikacji. Brak ograniczenia osób pracujących (lokal dla 5-10 osób), pełne okablowanie sieci komputerowej z dedykowana krosownicą,
Klimatyzacja.
Eksploatacja 1050 PLN obejmuje: system alarmowy z dozorem SOLID, korzystanie z łazienek i wc, woda ciepła i zimna, sprzątanie części wspólnych,
Codzienne wsparcie administratora budynku,
Ogrzewanie z własnej kotłowni,
Wywóz śmieci,
Sprzątanie terenu i parkingu,
Konserwacja klimatyzacji,
Tablica informacyjna przy wejściu,
Energia elektryczna,
Parking na terenie na życzenie dodatkowo płatny,
Zapraszamy Agencja Kowalewscy tel. 601pokaż telefon.
Niniejsze ogłoszenie nie stanowi oferty w świetle przepisów Kodeksu Cywilnego.
Statystyki ogłoszenia:
Podobne nieruchomości