ico powierzchnia

POWIERZCHNIA

57,91 m2

ico pietro

PIĘTRO

1 / 3

ico liczba pokoi

LICZBA POKOI

3

ico parking

PARKING

-

Szczegóły oferty 82726/6624/OMS Data dodania: dzisiaj

  • Kategoria Mieszkania na sprzedaż
  • Lokalizacja mazowieckie, Warszawa, Rembertów, Marsa
  • Powierzchnia całkowita57,91 m2
  • Cena

    750 000 zł

    Reklama ico Sprawdź ratę Sprawdź ratę RSSO 6,26% na dz. 16.02.26 trade ico trade ico trade
  • Czynsz administracyjny

    500 zł

  • Cena za m2 12 951,13 zł/m2
  • Liczba pokoi 3
  • Piętro 1
  • Liczba pięter w budynku 3
  • Typ budynkublok
  • Rok budowy 2016
  • Forma własności własność
  • Materiał pustak
  • Kuchniaaneks kuchenny
Informacje dodatkowe:
winda, ogrzewanie centralne, balkon, kablówka, internet

Lokalizacja

Warszawa, Rembertów, Marsa

Opis oferty

3-pokojowe mieszkanie zlokalizowane na  Rembertowie przy ul. Marsa

BUDYNEK/OSIEDLE
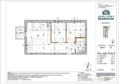
Mieszkanie znajduje się na 1  piętrze w 3  piętrowym budynku.

Rok budowy: 2026

NIERUCHOMOŚĆ
Mieszkanie o powierzchni  57,91m2 składa się z:
-salonu z aneksem kuchennym,
-dwóch pokoi,
-łazienki,
-holu.

Powierzchnia dodatkowa:
-balkon.

Mieszkanie własnościowe.

Dodatkowo płatne:
- miejsce postojowe na zewnątrz przy budynku w cenie 40 000 zł.

Ekspozycja okien- północny-zachód.

OKOLICA
Mieszkanie położone jest w nowej części Rembertowa, w rejonie ul. Marsa oraz ul. Płatnerskiej – w miejscu, które łączy spokój zielonej okolicy z wygodą miejskiej infrastruktury. To doskonale skomunikowana lokalizacja – stacja SKM znajduje się w zasięgu krótkiego spaceru, a przystanek autobusowy tuż przy budynku zapewnia szybkie i komfortowe połączenia z innymi częściami miasta.

Ogromnym atutem jest sąsiedztwo malowniczego rezerwatu przyrody, który stanowi idealne miejsce na codzienne spacery, jogging czy chwilę relaksu na świeżym powietrzu.

W najbliższej okolicy dostępne są sklepy spożywcze, w tym Żabka i Biedronka, zlokalizowane w kameralnym centrum handlowym. Niedaleko znajdują się także kolejne markety – Lidl i Biedronka – a także kilka piekarni oraz dodatkowe punkty usługowe i handlowe, które zapewniają pełną wygodę na co dzień.
Zapraszam na prezentację nieruchomości.

W razie zainteresowania prosimy o kontakt:
730pokaż telefon, 530pokaż telefon

Powyższa oferta ma charakter informacyjny i nie stanowi oferty handlowej w rozumieniu art. 66 §1 Kodeksu Cywilnego.

Bezpłatnie pomagamy znaleźć najkorzystniejszą na rynku ofertę kredytową.

Na życzenie w ramach prezentacji nieruchomości możliwość  przeprowadzenia przez firmę budowlaną oceny stanu mieszkania i wycenę remontu.

Oferta wysłana z programu dla biur nieruchomości ASARI CRM (asaricrm.com)


Numer oferty: 82726/6624/OMS

Statystyki ogłoszenia:

oko

Podobne nieruchomości