Mieszkanie trzypokojowe na sprzedaż Warszawa, Praga-Południe, Grochów - 63,18m2
1 017 170
zł
16 099,56 zł/m2
POWIERZCHNIA
63,18 m2
PIĘTRO
1 / 4
LICZBA POKOI
3
PARKING
miejsce parkingowe
Szczegóły oferty 37568/3685/OMS
- Kategoria Mieszkania na sprzedaż
- Lokalizacja mazowieckie, Warszawa, Praga-Południe, Grochów
- Powierzchnia całkowita63,18 m2
-
Cena
1 017 170 zł
- Cena za m2 16 099,56 zł/m2
- Liczba pokoi 3
- Piętro 1
- Liczba pięter w budynku 4
- Typ budynkuapartamentowiec
- Rok budowy 2025
- Materiał beton
- Kuchniaaneks kuchenny
- Informacje dodatkowe:
- ogrzewanie miejskie, balkon, miejsce parkingowe, ochrona
- Okolica:
- szkoła, przedszkole, park
Lokalizacja
Opis oferty
** Brak podatku 2% PCC **
*** 0% PROWIZJI OD KUPUJĄCEGO w tej inwestycji ***
Mam przyjemność zaoferować Państwu 3-pokojowe mieszkanie na 1 piętrze z balkonem w nowej inwestycji na Pradze Południe w odległości 500 m od planowanej stacji Metra Mińska.
To idealna propozycja dla osób ceniących nowoczesne wnętrza i funkcjonalny układ. Duże okna zapewniają doskonałe doświetlenie wnętrz, a przestronny balkon w kształcie litery L pozwala cieszyć się świeżym powietrzem i relaksem po długim dniu. Inwestycja znajduje się w pobliżu kluczowych węzłów komunikacyjnych, oferując łatwy dostęp do każdej części miasta.
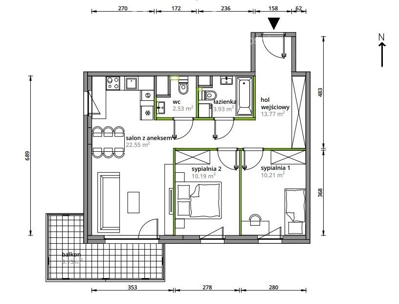
Mieszkanie składa się z:
- Pokoju dziennego z aneksem kuchennym (22,55 m2)
- Pokoju 1 (10,19 m2)
- Pokoju 2 (10,21 m2)
- Łazienki (3,93 m2)
- Toalety (2,53 m2)
- Przedpokoju (13,77 m2)
+ Balkon (9,15 m2)
Posiadam w swojej ofercie i chętnie zaprezentuję każde inne dostępne mieszkanie w tej inwestycji.
W ramach inwestycji dostępne są dodatkowo miejsca postojowe w garażu podziemnym (nieobowiązkowe) w cenie 40 000 zł, a także nieobowiązkowe komórki lokatorskie.
Życie na Pradze Południe to pełna wygoda – w zasięgu 15-minutowego spaceru znajdziesz wszystko, co jest kluczowe dla nowoczesnego stylu życia. Bliskość centrów handlowych, szkół, placówek medycznych oraz licznych atrakcji kulturalnych sprawia, że codzienne sprawy załatwisz szybko i sprawnie.
Inwestycja oferuje pełen wachlarz udogodnień:
Rozbudowana infrastruktura – szkoły, żłobki, przychodnie, sklepy i usługi w zasięgu ręki. Wszystko to razem tworzy budynek klasy premium. Aktywności w okolicy - w okolicy znajdują się liczne miejsca kulturalne i rozrywkowe, takie jak: Restauracje, Punkty usługowe, Sklepy, Hipermarket, Parki.
Świetna komunikacja miejska (przystanki tramwajowe i stacja PKP Warszawa Grochów) sprawia, że dojazd do śródmieścia trwa 10 minut.
Dla miłośników kulinariów dostępne są różnorodne restauracje i kawiarnie, a bliskość centrów handlowych zapewnia dostęp do ulubionych sklepów i usług.
Inwestycja oferuje również bezpieczeństwo i wygodę dla mieszkańców, w postaci punktu odbioru paczek czy stacji ładowania pojazdów elektrycznych i stref rekreacyjnych.
-------------------------------
Aby umówić się na prezentację, zapraszam do kontaktu:
Piotr Kostyra
Agent Nieruchomości
p.kostskontaktuj się
536pokaż telefon
-------------------------------
Jeżeli Twój zakup wiąże się ze sprzedażą innej nieruchomości daj znać! Bezpiecznie przeprowadzę Cię przez cały proces.
Finansując zakup nieruchomości kredytem warto wcześniej sprawdzić swoją zdolność kredytową. Nasi doradcy finansowi pomogą w organizacji wszystkich formalności niezbędnych do uzyskania kredytu oraz przygotują dla Państwa ofertę na bardzo preferencyjnych warunkach.
Powyższa oferta ma charakter informacyjny i nie jest ofertą w rozumieniu art. 66 par. 1 Kodeksu Cywilnego. Opis nieruchomości został sporządzony na podstawie informacji uzyskanych od właściciela i może być aktualizowany. Skontaktuj się z nami w celu zapoznania się ze szczegółami oferty.
Właścicielem ogłoszenia wraz z jego elementami jest Freedom Nieruchomości Sp. z o.o. lub podmioty współpracujące. Wszelkie prawa zastrzeżone. Kopiowanie, rozpowszechnianie oraz korzystanie z niniejszych materiałów w jakikolwiek inny sposób wykraczający poza dozwolony użytek określony przepisami ustawy z 4 lutego 1994 r. o prawie autorskim i prawach pokrewnych (Dz. U. 1994, nr 24 poz. 83 z późn. zm.) bez pisemnej zgody Freedom Nieruchomości Sp. z o.o. lub podmiotów współpracujących jest zabronione i może stanowić podstawę odpowiedzialności cywilnej oraz karnej. Ponadto niniejsze materiały stanowią tajemnicę przedsiębiorstwa Freedom Nieruchomości Sp. z o.o. lub podmiotów współpracujących w rozumieniu ustawy z dnia 16 kwietnia 1993 r. o zwalczaniu nieuczciwej konkurencji (Dz. U. z 2003 r., Nr 153, poz. 1503 z późn. zm.). "Właścicielem ogłoszenia wraz z jego elementami jest Freedom Nieruchomości Sp. z o.o. lub podmioty współpracujące. Wszelkie prawa zastrzeżone. Kopiowanie, rozpowszechnianie oraz korzystanie z niniejszych materiałów w jakikolwiek inny sposób wykraczający poza dozwolony użytek określony przepisami ustawy z 4 lutego 1994 r. o prawie autorskim i prawach pokrewnych (Dz. U. 1994, nr 24 poz. 83 z późn. zm.) bez pisemnej zgody Freedom Nieruchomości Sp. z o.o. lub podmiotów współpracujących jest zabronione i może stanowić podstawę odpowiedzialności cywilnej oraz karnej. Ponadto niniejsze materiały stanowią tajemnicę przedsiębiorstwa Freedom Nieruchomości Sp. z o.o. lub podmiotów współpracujących w rozumieniu ustawy z dnia 16 kwietnia 1993 r. o zwalczaniu nieuczciwej konkurencji (Dz. U. z 2003 r., Nr 153, poz. 1503 z późn. zm.). Niniejsze ogłoszenie nie stanowi oferty w rozumieniu Kodeksu Cywilnego, lecz ma charakter informacyjny." Oferta wysłana z programu dla biur nieruchomości ASARI CRM (asaricrm.com)
Numer oferty: 37568/3685/OMS
*** 0% PROWIZJI OD KUPUJĄCEGO w tej inwestycji ***
Mam przyjemność zaoferować Państwu 3-pokojowe mieszkanie na 1 piętrze z balkonem w nowej inwestycji na Pradze Południe w odległości 500 m od planowanej stacji Metra Mińska.
To idealna propozycja dla osób ceniących nowoczesne wnętrza i funkcjonalny układ. Duże okna zapewniają doskonałe doświetlenie wnętrz, a przestronny balkon w kształcie litery L pozwala cieszyć się świeżym powietrzem i relaksem po długim dniu. Inwestycja znajduje się w pobliżu kluczowych węzłów komunikacyjnych, oferując łatwy dostęp do każdej części miasta.
Mieszkanie składa się z:
- Pokoju dziennego z aneksem kuchennym (22,55 m2)
- Pokoju 1 (10,19 m2)
- Pokoju 2 (10,21 m2)
- Łazienki (3,93 m2)
- Toalety (2,53 m2)
- Przedpokoju (13,77 m2)
+ Balkon (9,15 m2)
Posiadam w swojej ofercie i chętnie zaprezentuję każde inne dostępne mieszkanie w tej inwestycji.
W ramach inwestycji dostępne są dodatkowo miejsca postojowe w garażu podziemnym (nieobowiązkowe) w cenie 40 000 zł, a także nieobowiązkowe komórki lokatorskie.
Życie na Pradze Południe to pełna wygoda – w zasięgu 15-minutowego spaceru znajdziesz wszystko, co jest kluczowe dla nowoczesnego stylu życia. Bliskość centrów handlowych, szkół, placówek medycznych oraz licznych atrakcji kulturalnych sprawia, że codzienne sprawy załatwisz szybko i sprawnie.
Inwestycja oferuje pełen wachlarz udogodnień:
Rozbudowana infrastruktura – szkoły, żłobki, przychodnie, sklepy i usługi w zasięgu ręki. Wszystko to razem tworzy budynek klasy premium. Aktywności w okolicy - w okolicy znajdują się liczne miejsca kulturalne i rozrywkowe, takie jak: Restauracje, Punkty usługowe, Sklepy, Hipermarket, Parki.
Świetna komunikacja miejska (przystanki tramwajowe i stacja PKP Warszawa Grochów) sprawia, że dojazd do śródmieścia trwa 10 minut.
Dla miłośników kulinariów dostępne są różnorodne restauracje i kawiarnie, a bliskość centrów handlowych zapewnia dostęp do ulubionych sklepów i usług.
Inwestycja oferuje również bezpieczeństwo i wygodę dla mieszkańców, w postaci punktu odbioru paczek czy stacji ładowania pojazdów elektrycznych i stref rekreacyjnych.
-------------------------------
Aby umówić się na prezentację, zapraszam do kontaktu:
Piotr Kostyra
Agent Nieruchomości
p.kostskontaktuj się
536pokaż telefon
-------------------------------
Jeżeli Twój zakup wiąże się ze sprzedażą innej nieruchomości daj znać! Bezpiecznie przeprowadzę Cię przez cały proces.
Finansując zakup nieruchomości kredytem warto wcześniej sprawdzić swoją zdolność kredytową. Nasi doradcy finansowi pomogą w organizacji wszystkich formalności niezbędnych do uzyskania kredytu oraz przygotują dla Państwa ofertę na bardzo preferencyjnych warunkach.
Powyższa oferta ma charakter informacyjny i nie jest ofertą w rozumieniu art. 66 par. 1 Kodeksu Cywilnego. Opis nieruchomości został sporządzony na podstawie informacji uzyskanych od właściciela i może być aktualizowany. Skontaktuj się z nami w celu zapoznania się ze szczegółami oferty.
Właścicielem ogłoszenia wraz z jego elementami jest Freedom Nieruchomości Sp. z o.o. lub podmioty współpracujące. Wszelkie prawa zastrzeżone. Kopiowanie, rozpowszechnianie oraz korzystanie z niniejszych materiałów w jakikolwiek inny sposób wykraczający poza dozwolony użytek określony przepisami ustawy z 4 lutego 1994 r. o prawie autorskim i prawach pokrewnych (Dz. U. 1994, nr 24 poz. 83 z późn. zm.) bez pisemnej zgody Freedom Nieruchomości Sp. z o.o. lub podmiotów współpracujących jest zabronione i może stanowić podstawę odpowiedzialności cywilnej oraz karnej. Ponadto niniejsze materiały stanowią tajemnicę przedsiębiorstwa Freedom Nieruchomości Sp. z o.o. lub podmiotów współpracujących w rozumieniu ustawy z dnia 16 kwietnia 1993 r. o zwalczaniu nieuczciwej konkurencji (Dz. U. z 2003 r., Nr 153, poz. 1503 z późn. zm.). "Właścicielem ogłoszenia wraz z jego elementami jest Freedom Nieruchomości Sp. z o.o. lub podmioty współpracujące. Wszelkie prawa zastrzeżone. Kopiowanie, rozpowszechnianie oraz korzystanie z niniejszych materiałów w jakikolwiek inny sposób wykraczający poza dozwolony użytek określony przepisami ustawy z 4 lutego 1994 r. o prawie autorskim i prawach pokrewnych (Dz. U. 1994, nr 24 poz. 83 z późn. zm.) bez pisemnej zgody Freedom Nieruchomości Sp. z o.o. lub podmiotów współpracujących jest zabronione i może stanowić podstawę odpowiedzialności cywilnej oraz karnej. Ponadto niniejsze materiały stanowią tajemnicę przedsiębiorstwa Freedom Nieruchomości Sp. z o.o. lub podmiotów współpracujących w rozumieniu ustawy z dnia 16 kwietnia 1993 r. o zwalczaniu nieuczciwej konkurencji (Dz. U. z 2003 r., Nr 153, poz. 1503 z późn. zm.). Niniejsze ogłoszenie nie stanowi oferty w rozumieniu Kodeksu Cywilnego, lecz ma charakter informacyjny." Oferta wysłana z programu dla biur nieruchomości ASARI CRM (asaricrm.com)
Numer oferty: 37568/3685/OMS
Statystyki ogłoszenia:
Podobne nieruchomości