Przestronne 3 pok. z balkonem, do remontu, Mokotów Warszawa, Mokotów, Podbipięty - 65,0m2
POWIERZCHNIA
65,00 m2
PIĘTRO
3 / 10
LICZBA POKOI
3
PARKING
-
Szczegóły oferty 893056
- Kategoria Mieszkania na sprzedaż
- Lokalizacja mazowieckie, Warszawa, Mokotów, Podbipięty
- Powierzchnia całkowita65 m2
-
Cena
910 000 zł
- Cena za m2 14 000 zł/m2
- Liczba pokoi 3
- Piętro 3
- Liczba pięter w budynku 10
- Typ budynkublok
- Rok budowy 1993
- Materiał inny
- Informacje dodatkowe:
- winda, piwnica, balkon
Lokalizacja
Opis oferty
PRZESTRONNE MIESZKANIE Z BALKONEM DO REMONTU
Winda | Piwnica | Dobrze doświetlone, dwustronne | Mokotów - 5 minut do metra | Potencjał aranżacyjny - w środku ściany możliwe do wyburzenia
*****
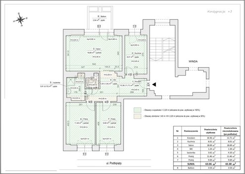
ROZKŁAD MIESZKANIA:
* Salon - 18,69 m², przestronny i jasny, z wyjściem na balkon
* oddzielna kuchnia - 8,01 m²
* dwie sypialnie - 11,46 m² oraz 9,69 m²
* łazienka - 3,61 m²
* WC - 1,24 m²
* korytarz - 10,36 m²
* balkon - 3,54 m²
Mieszkanie jest dwustronne, co zapewnia dobrą cyrkulację powietrza i naturalne światło przez cały dzień. Mieszkanie wymaga remontu, oprócz łazienek, które zostały wyremontowane.
LOKALIZACJA:
Ul. Podbipięty to spokojna i zielona część Mokotowa, z bardzo dobrą infrastrukturą miejską. W pobliżu znajdują się: sklepy, szkoły, przedszkola tereny zielone i rekreacyjne przystanki komunikacji miejskiej zapewniające szybki dojazd do centrum Warszawy. Metro w odległości 5 minu pieszo.
INFORMACJE DODATKOWE:
* Do mieszkania przynależy piwnica.
* Blok z windą.
* Wyremontowane klatki.
* Możliwy zakup na kredy, brak KW, ale jest możliwość założenia, grunty są uregulowane.
Serdecznie zapraszamy na prezentację!
——————————————
KONTAKT:
Aleksandra Rzodkiewicz: +48 7pokaż telefon
Przedstawiona wyżej oferta nie jest ofertą handlową w rozumieniu przepisów prawa, lecz ma charakter informacyjny. Partners International dokłada starań, aby treści przedstawione w naszych ofertach były aktualne i rzetelne. Dane dotyczące ofert uzyskano na podstawie oświadczeń Wynajmujących.
Jako biuro nieruchomości pobieramy wynagrodzenie w formie prowizji.
——————————————
CONTACT:
Aleksandra Rzodkiewicz: +48 7pokaż telefon
Outlined above proposal is not a commercial offer for the purposes of the law but is informative. All data relating to real estate was obtained on the basis of statements from the Landlords.
——————————————
SPACIOUS APARTMENT WITH BALCONY FOR RENOVATION
Elevator | Basement | Well-lit, double-sided | Mokotów - 5 minutes to the subway | Design potential - interior walls can be demolished
*****
APARTMENT LAYOUT:
* Living room - 18.69 m², spacious and bright, with access to the balcony
* Separate kitchen - 8.01 m²
* Two bedrooms - 11.46 m² and 9.69 m²
* Bathroom - 3.61 m²
* Toilet - 1.24 m²
* Hallway - 10.36 m²
* Balcony - 3.54 m²
The apartment is double-sided, which ensures good air circulation and natural light throughout the day. The apartment requires renovation.
LOCATION:
Podbipięty Street is a quiet and green part of Mokotów, with very good urban infrastructure. Nearby there are: shops, schools, kindergartens, green and recreational areas, public transport stops providing quick access to the center of Warsaw. The metro is a 5-minute walk away.
ADDITIONAL INFORMATION:
* The apartment includes a basement.
* Building with an elevator.
* Renovated staircases.
* Purchase on credit possible.
We cordially invite you to the presentation!
Numer oferty: 893056
Osoba odpowiedzialna zawodowo: Aleksandra Rzodkiewicz
Statystyki ogłoszenia:
Podobne nieruchomości