Mieszkanie trzypokojowe na sprzedaż Poznań, Wilda, ul. 28 Czerwca 1956 r. - 42,0m2
399 000
zł
9 500 zł/m2
POWIERZCHNIA
42,00 m2
PIĘTRO
parter
LICZBA POKOI
3
PARKING
-
Szczegóły Data dodania: 20 dni temu
- Kategoria Mieszkania na sprzedaż
- Lokalizacja wielkopolskie, Poznań, Wilda, ul. 28 Czerwca 1956 r.
- Powierzchnia całkowita42 m2
-
Cena
399 000 zł
- Cena za m2 9 500 zł/m2
- Liczba pokoi 3
- Piętro Parter
- Typ budynkuinny
- Materiał cegła
Lokalizacja
Opis oferty
Zachęcam do zapoznania się z ofertą sprzedaży lokalu mieszkalnego jednorodzinnego w lokalizacji: Poznań, ul. 28 Czerwca 1956r./271.
Mieszkanie obecnie wynajmowane za około 3 000 zł miesięcznie. To idealna propozycja zarówno dla inwestora, jak i dla osób poszukujących lokalu do własnego zamieszkania.
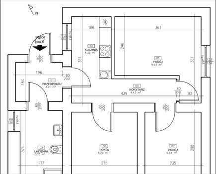
Układ mieszkania:
przedpokój o powierzchni: 3,21 m2kuchnia o powierzchni: 4,32 m2łazienka z WC o powierzchni: 5,73 m2pokój nr 1 o powierzchni: 8,20 m2pokój nr 2 o powierzchni: 6,94 m2pokój nr 3 o powierzchni: 9,93 m2ogród
Informacje techniczne:
Ogrzewanie: wspólna instalacja grzewcza w kamienicyBudynek murowany, oparty na zewnętrznych i wewnętrznych ścianach konstrukcyjnychŚciany nośne: cegła ceramiczna na zaprawie wapienno-piaskowejGrubość ścian: zewnętrzne 30–60 cm, wewnętrzne z cegły pełnej\
Instalacje:
wodno-kanalizacyjnaelektrycznacentralnego ogrzewaniatelekomunikacyjna
Dodatkowe informacje:
Lokal sprzedawany jako pełne prawo własnościIdealne pod wynajem lub zamieszkanieSpokojna i dobrze skomunikowana okolica PoznaniaW pobliżu: sklepy, przystanki komunikacji miejskiej, szkoła i tereny rekreacyjne
Zainteresowanych proszę o kontakt:
Dagmara Żak tel. 5.7.1.0.2.3.6.3.3
Statystyki ogłoszenia:
Podobne nieruchomości