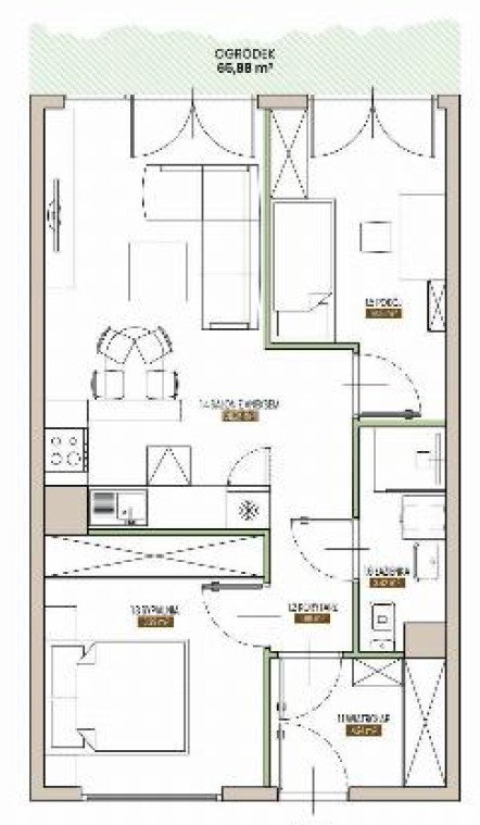
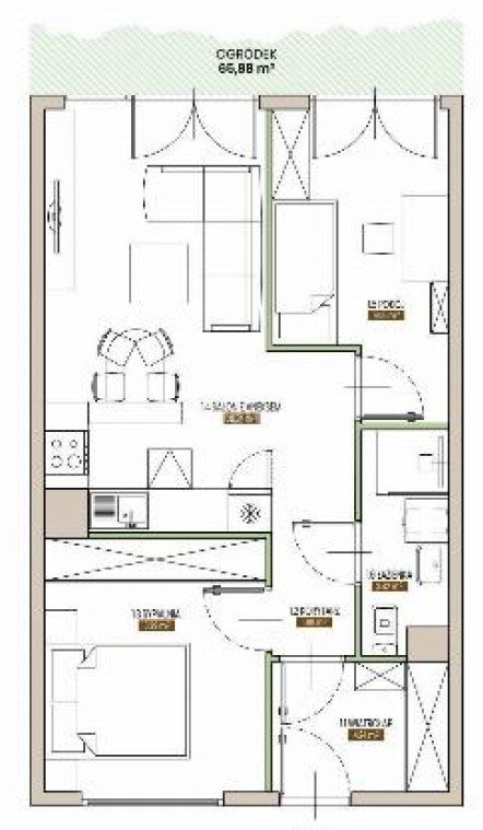
Mieszkanie trzypokojowe na sprzedaż Kraków, Nowa Huta, Sasanek - 51,0m2
590 000
zł
11 568,63 zł/m2
POWIERZCHNIA
51,00 m2
PIĘTRO
parter / 1
LICZBA POKOI
3
PARKING
-
Szczegóły oferty EX957634
- Kategoria Mieszkania na sprzedaż
- Lokalizacja małopolskie, Kraków, Nowa Huta, Sasanek
- Powierzchnia całkowita51 m2
-
Cena
590 000 zł
- Cena za m2 11 568,63 zł/m2
- Liczba pokoi 3
- Piętro Parter
- Liczba pięter w budynku 1
- Typ budynkublok
- Rok budowy 2025
- Materiał inny
- Okolica:
- autobus
Lokalizacja
Opis oferty
M17
Nie płacisz PCC 2%
OD DEWELOPERA - Nie płacisz prowizji biura !!
Do sprzedaży 3-pokojowe mieszkanie 51 m2 w zielonej okolicy Nowej Huty. Plus duży ogródek 67 m2
ODBIÓR MIESZKAŃ: II KWARTAŁ 2025 r.
Inwestycja położona w dzielnicy Nowa Huta w Krakowie przy ul. Szymańskiego. To nowoczesna architektura położona na terenie zagospodarowanym niską zabudową. Nieruchomości położone są w otoczeniu terenów otwartych oraz luźnej zabudowy mieszkaniowej. W pobliżu znajdują się pojedyncze obiekty usługowe i stacja paliw.
LOKALIZACJA:
W odległości ok. 350 m przebiega ulica Igołomska stanowiąca część drogi krajowej nr 79. W pobliżu inwestycji dostępna będzie komunikacja miejska - przystanek autobusowy, który będzie znajdował się bezpośrednio przy osiedlu, umożliwi mieszkańcom dogodny dojazd do pracy, szkoły czy centrum. Pętla tramwajowa oddalona o ok. 1,5 km umożliwia bezpieczny i szybki transport do każdego miejsca w Krakowie. Dodatkowym atutem inwestycji jest bliskość obwodnicy miasta, przebiegająca nieopodal naszej inwestycji, co pozwoli na jeszcze szybszą komunikację w dowolnym kierunku.
We wrześniu 2023 roku PKP Polskie Linie Kolejowe podpisały umowy na zaprojektowanie i wybudowanie przystanków kolejowych Kraków Kościelniki i Kraków Przylasek, które mają być gotowe pod koniec 2024 roku. Dwa nowe obiekty zlokalizowane przy linii kolejowej 95 Kraków Mydlinki - Podłęże.
Odległość ok. 16,2 km od ścisłego centrum Krakowa
Ok. 8,5 km od Placu Centralnego
ODPOCZYNEK I REKREACJA:
a) Centrum Wielkoskalowych Plenerowych Wydarzeń Kulturalnych „Błonia 2.0.” - przestrzeni dla aktywności kulturalnej i fizycznej. W tym: ciągi pieszo-rowerowe, sale sportowe, lokale gastronomiczne, infrastruktura sportowa w postaci kortów tenisowych, pól do mini golfa, skate parku oraz wiele więcej.
b) Park Naukowo-Technologiczny „Branice”,
c) Centrum Rekreacji i Wypoczynku „Przylasek Rusiecki” - kąpielisko i odpoczynek na łonie natury,
d) Forty: ,,Grębałów”, ,,Krzesławice”, ,,Park Przy Forcie”,
e) Park Miejski
f) ,,Zielony Jar Wandy”.
KOMUNIKACJA:
Przystanek autobusowy w odległości ok. 300 m
Przystanek tramwajowy 2 km
Dogodny dojazd do pracy, szkoły i centrum miasta
Planowana ukończenie północnej obwodnicy miasta, zapewniająca szybką komunikację w dowolnym kierunku
POLECAM !!!
Jeżeli podoba Ci się to mieszkanie - nie czekaj aż inni Cię ubiegną, zadzwoń !!
Piotr Bosak 506pokaż telefon , Licencja PFRN nr 25071.
W ofercie mamy też niepublikowane mieszkania ( w przygotowaniu, remoncie, spadek). Chętnie przedstawię oferty osobiście lub przez telefon.
ZAPRASZAM serdecznie na spotkanie - odpowiem na wszystkie pytania i przekażę szczegóły.
Eksperci finansowi naszej firmy szybko pomogą w uzyskaniu najlepszego na rynku kredytu - bez opłat i dodatkowych prowizji.
Zamieszczona oferta nie stanowi oferty w rozumieniu Kodeksu Cywilnego, a dane w niej zawarte mają jedynie charakter informacyjny i mogą podlegać aktualizacji.
Zainteresowany? Zadzwoń teraz i umów się na spotkanie online
Numer oferty: EX957634
Osoba odpowiedzialna zawodowo: Piotr Bosak
Numer oferty: EX957634
Osoba odpowiedzialna zawodowo: Piotr Bosak
Statystyki ogłoszenia:
Podobne nieruchomości